Eladó családi ház Gyál 118 000 000 Ft

Leírás

Csak a Fodor ingatlan kínálatában.
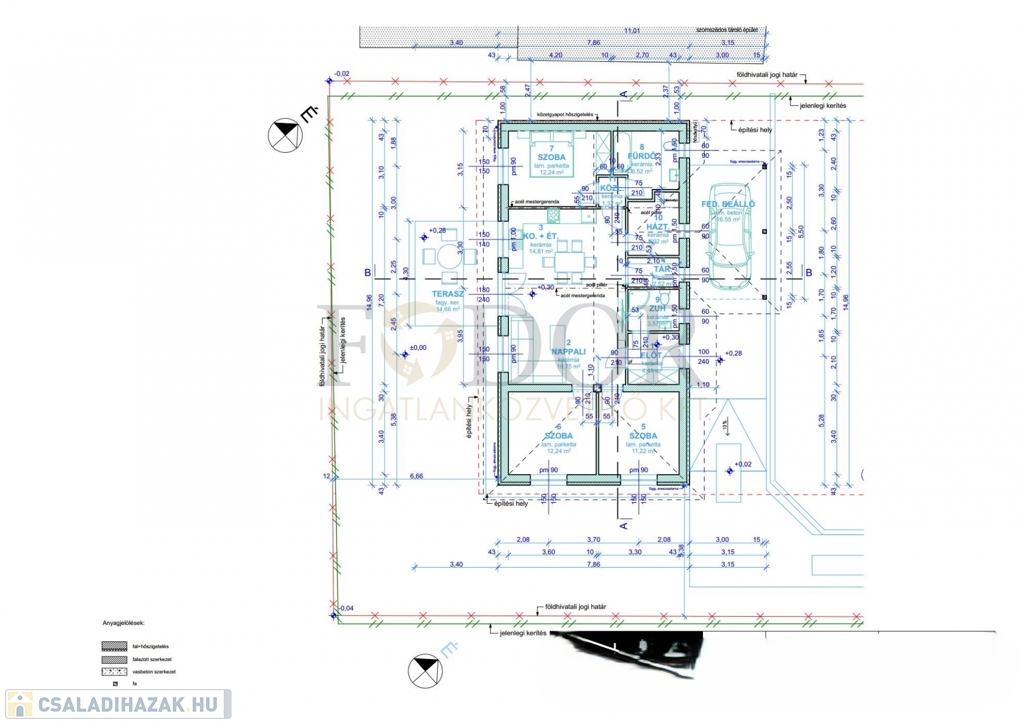
Gyál csendes mellékutcájában kínálok eladásra 93,64 nm-es Amerikai-konyhás nappali +3 szobás, dupla fürdőszobás, fedett gépkocsi beállós földszintes Új építésű önálló családi házat.
Megemelt műszaki tartalommal felszerelt ingatlan kerül kivitelezésre: 30-as főfalak, 10 cm-es tégla válaszfalak, 12 cm homlokzati szigetelés, teljes riasztó rendszer kialakítása, elektromos nagykapu, viacolorral burkolt személyi és kocsibeálló, alumínium elektromos redőnyök, helységenként 1 db szúnyoghálóval, elektromos autótöltésnek előkészítés, napelem előkészítés, H tarifás villanyóra.
A lakás fűtése Daikin Levegő-víz Hőszivattyús fűtéssel készül, amely 230 l-es melegvíz tartályt is tartalmaz. A lakás hűtése 1 db inverteres hűtő-fűtő klímával megoldott.
A 825 nm-es telekre 2db önálló családi ház került kialakításra, Az utcafront felől egy 50 m2-es önálló kis házikó áll. A hátsó ingatlan egy külön bejáraton érhető el, kerítéssel teljesen le van választva. A privát szféra adott. Az ingatlanhoz tartozó telekterület 464 m2. Jogilag rendezett, osztatlan közös tulajdonban van, telekhasználati megállapodással rendelkezik.
Ritka az ilyen adottságú telek, hatalmas terek és egész napos benapozottság jellemzi. Minden ingatlanhoz kerítéssel leválasztott telek terület tartozik. Az építkezés elkezdődött, foglalja le, és kövesse nyomon leendő háza épülését, alakítsa belső elrendezését saját igényei szerint. Várható átadás 2026. II. negyedév.
A hirdetésben szereplő vételár kulcsrakész állapotra vonatkozik. Burkolatok, szaniterek, beltéri ajtók választhatóak.
Megbízható, tőkeerős kivitelező, nem az első építkezése, precíz, minőségi anyagokkal és emberi erőforrással dolgozik. Referencia házak a közelben.
Bővebb információért és részletes tájékoztatásért keressen bizalommal.
Műszaki:
• 30-as főfal + 12 cm homlokzati szigetelés
• 10 cm válaszfalak
• fafödém, felette 30 cm ásvány vagy üveggyapot szigetelés
• Vasbeton sávalap
• fehér, műanyag tokos, 3 rétegű thermo üveges külső nyílászárók
• elektromos alumínium redőnyök
• Levegő-víz hőszivattyú
• padlófűtésaz egész házban, fürdőben + törölköző szárítós radiátorral kiegészítve
• Barna Terrán cserép
Tulajdonságok:
• amerikai konyhás világos nappali
• 3 db hálószoba
• 2 db fürdő / 2wc
• Saját privát telekterület
• Riasztó rendszer
• elektromos kapu
AZ INGATLAN KIVITELEZŐJE CÉG, KAMATTÁMOGATOTT HITEL, BABAVÁRÓ TÁMOGTÁS, CSOK
PLUSZ, ILLETÉK MENTESSÉG, 3 %-OS OTTHON START HITEL IGÉNYELHETŐ.
IRODÁNK INGYENES HITEL ÜGYINTÉZÉSSEL, TANÁCSADÁSSAL, SZÁMOS BANK
AJÁNLATÁVAL ÉS AZ ÚJ CSOK FOLYÓSÍTÁSÁVAL VÁRJA ÜGYFELEIT

Családi ház részletei

Ár: 118 000 000 Ft
Méret: 94 négyzetméter
Azonosító: 11579911
Irodai azonosító: 345332
Telek: 464 négyzetméter
Ingatlan állapota: Kitűnő
Jelleg: családi ház
Építőanyag: Tégla
Komfort fokozat: Összkomfort
Kor: Új építésű
Egész szobák: 4

Egyéb jellemzők

  • Terasz

Így keressen családi házat négy egyszerű lépésben. Csupán 2 perc, kötelezettségek nélkül!

Szűkítse a családi házak
listáját
Válassza ki a megfelelő
családi házat
Írjon a hirdetőnek
Várjon a visszahívásra