Eladó családi ház Gyál 112 990 000 Ft

Leírás

ELADÓ ÚJ ÉPÍTÉSŰ, MODERN IKERHÁZ GyÁLON – PRÉMIUM MINŐSÉG, MAGAS MŰSZAKI TARTALOM!!!

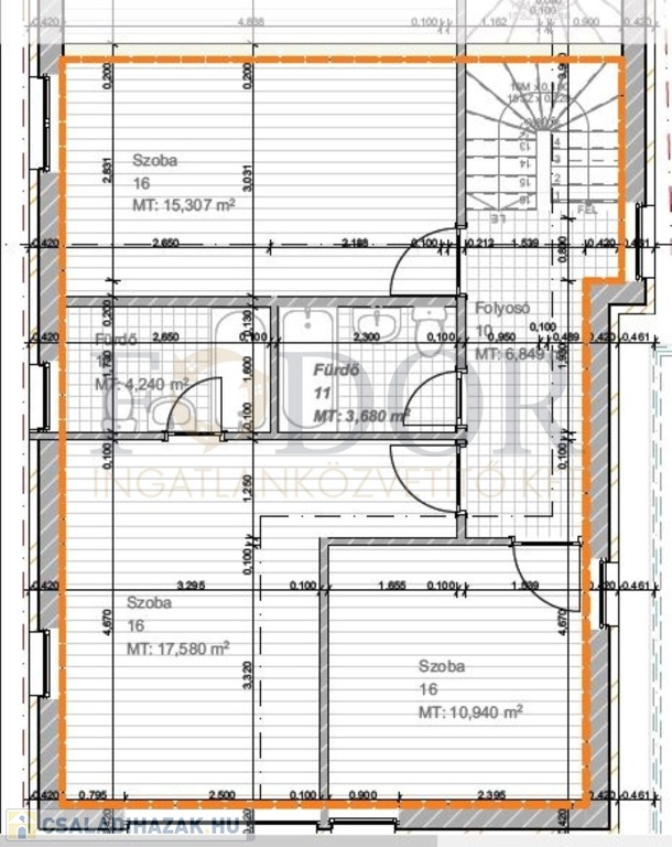
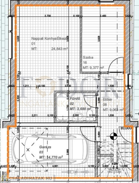
Gyál, Gyálszőlő városrészében, csendes és családias környezetben eladásra kínálunk egy belső kétszintes, 121,87- m²-es, 136,87 m²-es amerikai konyhás nappali + 4 hálószobás ikerházat, amely a 2025-ös szigorú környezetvédelmi és energetikai elvárásoknak teljes mértékben megfelel!

Fedezze fel ezt a lenyűgöző, kétszintes ikerházat, amely Gyál csendes mellékutcájában várja új tulajdonosát. A két lakás külön bejárattal, saját utcafronttal és egyedi telek-résszel rendelkezik, garantálva a privát életérzést.

A lakás jellemzői:
• Hasznos lakóterület: 105,5-121,18 m² – Tágas amerikai konyhás nappalik, 4 külön be-járatú hálószoba és gardróbszoba.
• Két szint, két fürdőszoba, 8,95 m²-es terasz és 9,96 m²-es terasz a pihenéshez.
• Szintenként padlófűtés, fürdőszobákban törölközőszárítós radiátorok.
• 16 m²-es szekcionált garázs ajtó + motorral az árban.
• Kertkapcsolatos nappali a pihenés és a szórakozás jegyében.
• Hőszivattyús rendszer, modern energia hatékony megoldások: A lakások még jobb komfortjának érdekében a fűtéshez/hűtéshez kiegészítő oldafali fan coil is kapcsolódik emeleten lakószobákban, földszinten nappaliban

Minőségi kivitelezés, prémium alapanyagok:
• Leier 30 cm-es főfal + 12 cm homlokzati szigetelés a maximális energiahatékonyságért.
• Fischer hőszivattyú + 240 L melegvíztároló a fűtéshez és a meleg vízhez.
• Prémium kategóriás Kömmerling 3 rétegű, 6 légkamrás hő- és hangszigetelt nyílászárók kívül barna, belűről fehér színben a kellemes belső klímáért.
• Alumínium manuális redőnyök és szúnyoghálók, kívül barna, belűről fehér színben.
• Térkövezett kocsibejáró és személyi bejáró, az egész ház körül.

A jelű lakás br:121 m2, 8,95 m2 terasz, 16,37 m2 garázs, 201 m2 privát telekterület 112.990.000 MFt.

B jelű lakás br:136 m2, 9,96 m2 terasz, 15,69 m2 garázs, 360 m2 privát telekterület 129.990.000 MFt.

Ügyvéd által ellenjegyzett használati megosztással kerülnek értékesítésre az ingatlanok!!!

Környék:
• Kiváló infrastruktúra: Minden fontos szolgáltatás, iskola, bevásárlóközpont, és tő-megközlekedési lehetőség pár perc sétára.


Ne hagyja ki ezt a páratlan lehetőséget!

Az ingatlan várható átadása 2026. I. negyedév.

Az ár a kulcsrakész állapotra vonatkozik, az Ön igényei szerint választhatóak burkolatok, szaniterek, és beltéri ajtók.

Keressen minket bizalommal, és kérjen bővebb tájékoztatást!
Finanszírozás:

• A projekt kamattámogatott hitellel, CSOK és Babaváró támogatással is elérhető!

• Irodánk ingyenes hitelügyintézést és tanácsadást biztosít, segítünk a legjobb banki ajánlatok kiválasztásában.

Családi ház részletei

Ár: 112 990 000 Ft
Méret: 121 négyzetméter
Azonosító: 11608724
Irodai azonosító: 344734
Telek: 201 négyzetméter
Ingatlan állapota: Kitűnő
Jelleg: ikerház
Építőanyag: Tégla
Komfort fokozat: Dupla komfort
Kor: Új építésű
Egész szobák: 5

Egyéb jellemzők

  • Garázs
  • Terasz

Így keressen családi házat négy egyszerű lépésben. Csupán 2 perc, kötelezettségek nélkül!

Szűkítse a családi házak
listáját
Válassza ki a megfelelő
családi házat
Írjon a hirdetőnek
Várjon a visszahívásra