Eladó családi ház Gönyű 72 900 000 Ft

Leírás


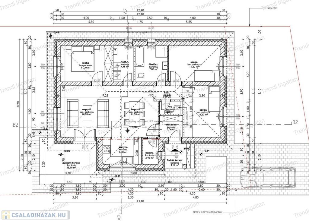
Gönyű mellékutcájában új építésű nettó 91 nm-es nappali + 3 szobás családi ház 15,18 nm-es terasszal 900 nm-es telken eladó. 

A remek elosztású házban amerikai konyhás nappali, 3 szoba, fürdőszoba WC-vel, háztartási helyiség, kamra, közlekedő, előtér található. A nappaliból 15,18 nm-es terasz nyílik.

A ház 30-as falazóelemből, 20 cm-es homlokzati szigeteléssel, 3 rétegű műanyag nyílászárókkal kerül kivitelezésre. Az ingatlan fűtését és melegvíz ellátását kondenzációs kazán biztosítja padlófűtéssel. Az ár 1 db klíma előkészítését tartalmazza. Felár ellenében hőszivattyús fűtés, kerti csap, riasztó előkészítés, térkövezés kérhető.

Fűtéskész átadás várható ideje: 2026 ősz 

Az ingatlan fűtéskész ára: 72.900.000 Ft. Kulcsrakész befejezés kérhető.

Az ár tartalmazza a telek árát is. Az ajánlat nem tartalmazza a gáz kiépítését, melynek ára 1.200.000 Ft.

Bővebb információkért forduljon hozzám bizalommal.

Hétköznap és hétvégén is várom hívását!

Díjmentes, bankfüggetlen hitelügyintézéssel állunk rendelkezésére.

A hirdetésben feltüntetett kép illusztráció. Referenciát, azonos, építés alatt lévő házról tudunk mutatni.

Családi ház részletei

Ár: 72 900 000 Ft
Méret: 98 négyzetméter
Azonosító: 11574629
Irodai azonosító: 196400805
Telek: 900 négyzetméter
Ingatlan állapota: Kitűnő
Jelleg: családi ház
Építőanyag: Tégla
Komfort fokozat: Összkomfort
Kor: Új építésű
Egész szobák: 4

Így keressen családi házat négy egyszerű lépésben. Csupán 2 perc, kötelezettségek nélkül!

Szűkítse a családi házak
listáját
Válassza ki a megfelelő
családi házat
Írjon a hirdetőnek
Várjon a visszahívásra