Eladó családi ház Gönc 22 900 000 Ft

Leírás


Ragadja meg ezt a kiváló lehetőséget Gönc szívében!

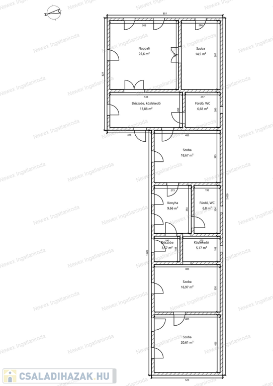
Irodai, rendelői célra is alkalmas, 142 m2-es, 5 szobával rendelkező felújítandó családi ház eladó.

Nagy telek, sok helyiség, kellemes környezet, kiváló lokáció jellemzi az ingatlant.

Gönc szerepel a FALUSI CSOK listán, így kihasználhatja ezt a lehetőséget is!

Amennyiben BABAVÁRÓRA, HITELRE, FALUSI CSOK-ra van szüksége a vásárláshoz, irodánk díjmentesen intézi Önnek!

 

Ne hagyja ki ezt a remek lehetőséget! További részletek, időpontegyeztetés telefonon.

+36306761004

Családi ház részletei

Ár: 22 900 000 Ft
Méret: 142 négyzetméter
Azonosító: 11523464
Irodai azonosító: 698900598
Telek: 1401 négyzetméter
Ingatlan állapota: Felújítandó
Jelleg: családi ház
Építőanyag: Kérdezzen rá a hirdetőtől »
Fűtés jellege: Konvektoros
Komfort fokozat: Dupla komfort
Egész szobák: 5

Így keressen családi házat négy egyszerű lépésben. Csupán 2 perc, kötelezettségek nélkül!

Szűkítse a családi házak
listáját
Válassza ki a megfelelő
családi házat
Írjon a hirdetőnek
Várjon a visszahívásra