Eladó családi ház Gödöllő 249 000 000 Ft

Leírás


Gödöllő keresett kastélyhoz közeli részén, nagyon jó lokációnál, magas műszaki tartalommal épült, letisztult mediterrán stílusú, A+ energetikai besorolású,  nappali + 4 szobás, duplagarázsos családi ház eladó!

Az ingatlan ideális választás azok számára, akik kompromisszumok nélkül keresnek modern, energiatakarékos, tágas otthont nyugodt, mégis kiváló infrastruktúrájú környezetben.

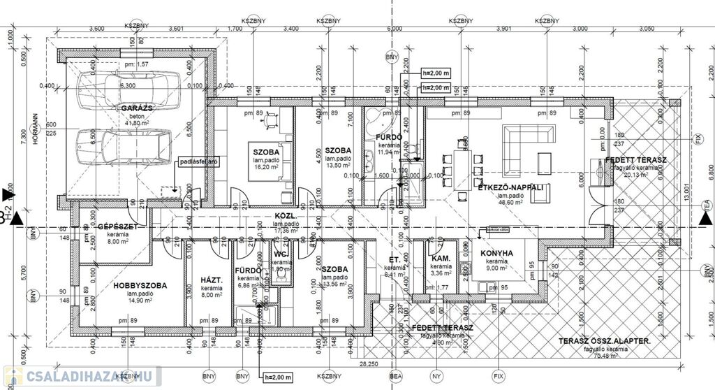
Elosztás: 

- előtér,

- amerikai konyhás, étkezős nappali,

- kamra,

- közlekedő,

- 4db kényelmes méretű szoba,

- háztartási helyiség,

- két igényes fürdőszoba,

- vendégmosdó,

- gépészeti helyiség,

- 41nm-es dupla garázs (autótöltési lehetőséggel)

- tágas teraszok (összesen 70nm, ebből 20-25 fedett)

- részben pakolható padlás.

Műszaki tartalom:

- 30-as tégla falazat + 12 cm grafit szigetelés, 

- lábazaton 8cm, aljzaton 10 cm XPS,

- alumínium, rejtett tokos elektromos redőnyök,

- kívül-belül színezett műanyag nyílászárók,

- gránit párkányok, esővíz szikkasztók kialakítva,

- Leier betoncserépfedés,

- szeglemezes tetőszerkezet,

- fafödémen 25 cm fújt cellulóz szigetelés,

- A+ energetikai besorolás,

- Stiebel Eltron prémium hőszivattyús hűtő–fűtő rendszer padló- és mennyezeti fűtéssel,

- hővisszanyerős szellőztető rendszer,

- minimális rezsi, nincs gázszámla, alacsony villanyszámla,

- 3×25A, 3 fázis + külön H tarifa,

- Hörmann elektromos kapu,

- Hörmann hőszigetelt elektromos garázsajtó,

- kamerás kaputelefon,

- minden szobában TV és vezetékes Internet (LAN) csatlakozó

Belső tér:

- magasfényű fehér konyhabútor AEG gépekkel

- nagy munkapult, gránit mosogató

- nappaliban fózolt laminált parketta

- mindkét fürdőben épített zuhanyzó

- Geberit beépített WC-k

- nagyobb fürdőben duplamosdó + sarokkád

A modern, beépített konyhabútor, a kerti tároló és a játszótér a vételár részét képezi.

Telek és környezet:

- 19m széles, 961nm-es telek,

- utcafronton gondozásmentes WPC kerítés,

- beépített öntözőrendszer,

- alu vázas kerti tároló,

- gyerekeknek kialakított játszótér

- barátságos, kulturált szomszédok.

Elhelyezkedés:

Nagyon jó keresett környék, szomszédok barátságosak.

Busz, HÉV, vonat, iskola, óvoda, kastélypark, közért 5–8 perc sétára, autópálya gyorsan elérhető.

Irányár: 249Mft

Hivatkozási szám: 2518251.

Megtekinthető telefonos időpont egyeztetés alapján:

Sápi Balázs +36 20 772-2429 sapibalazs@godolloi.hu  

GÖDÖLLŐ INGATLANKÖZPONT - www.godolloi.hu: Gödöllő és környéke legnagyobb ingatlan választéka /Gödöllő, Szada, Veresegyház, Kistarcsa, Kerepes, Erdőkertes, Fót, Dunakeszi/ eladó-kiadó családi ház, telek, lakás! Ingatlan építés és felújítás!

Családi ház részletei

Ár: 249 000 000 Ft
Méret: 221 négyzetméter
Azonosító: 11602153
Irodai azonosító: 2518251
Telek: 961 négyzetméter
Ingatlan állapota: Kitűnő
Jelleg: családi ház
Építőanyag: Tégla
Komfort fokozat: Dupla komfort
Egész szobák: 5

Így keressen családi házat négy egyszerű lépésben. Csupán 2 perc, kötelezettségek nélkül!

Szűkítse a családi házak
listáját
Válassza ki a megfelelő
családi házat
Írjon a hirdetőnek
Várjon a visszahívásra