Eladó családi ház Gödöllő 178 900 000 Ft

Leírás

Budapest agglomerációjában, GÖDÖLLŐN, az M3-as autópályán haladva Pesttől 15 percre eladó egy PANORÁMÁS ÚJSZERŰ CSALÁDI HÁZ!

Telek: 956 nm.
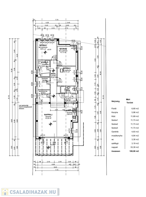
Ház hasznos alapterülete: 110,68 nm.
Terasz: 20 nm:
Felosztása: amerikai konyhás nappali, 3 külön nyíló hálószoba, 2 fürdőszoba, mosókonyha, gardróbszoba, közlekedő.
2 autó beállására alkalmas kocsibeálló az udvarban.
Elektromos kapu.
Ytong szerkezet. Külső szigetelés: 10 cm grafitos hőszigetelés
Födémszigetelés: 20 cm poliuretán habbal.
Fa+műanyag nyílászárók. Elektromos redőnyök.
Kondenzációs gázkazán, padlófűtéses hőleadás.
Hűtő-fűtő klíma a nappaliban.
Riasztó kiépítve.
Biztonsági kamerával felszerelt.
Tehermentes tulajdon!

Amennyiben egy 2024-ben épült, gyönyörű panorámával rendelkező, újszerű, minőségi alapanyagokból készült házat keres, hívjon bizalommal, tekintsük meg!

Családi ház részletei

Ár: 178 900 000 Ft
Méret: 111 négyzetméter
Azonosító: 11565133
Irodai azonosító: 387314
Cím: Ilona utca
Telek: 956 négyzetméter
Ingatlan állapota: Kitűnő
Jelleg: családi ház
Építőanyag: Tégla
Fűtés jellege: Cirkó
Fűtés módja: Gáz
Komfort fokozat: Összkomfort
Kor: 1-5 éves
Szintek száma: Földszintes
Egész szobák: 4

Egyéb jellemzők

  • Csatorna
  • Garázs
  • Pince
  • Terasz

Térkép


Így keressen családi házat négy egyszerű lépésben. Csupán 2 perc, kötelezettségek nélkül!

Szűkítse a családi házak
listáját
Válassza ki a megfelelő
családi házat
Írjon a hirdetőnek
Várjon a visszahívásra