Eladó családi ház Gödöllő 164 000 000 Ft

Leírás

CasaNetWork Gödöllő Ingatlaniroda kínálatában eladó ikerház Gödöllő Blaha legszebb, legnyugodtabb, pazar részén

Kiváló konstrukcióban épülő kétlakásos lakóépület (már csak a hátsó, ám nagyobb kerttel rendelkező fele) Gödöllő csendes, panorámás, új építésű városrészében, aszfaltozott utcában eladó.

Az utcafronti ház már megtalálta boldog tulajdonosát, de a hátsó, alapterületre egyező méretű, ám közel 1000m2 romantikus kerttel rendelkező csodás otthon még várja szerencsés vásárlóját. Ajánlom a több gyermekes családoknak, vagy a társasági életet otthoni környezetben élvezni szerető vevőimnek.

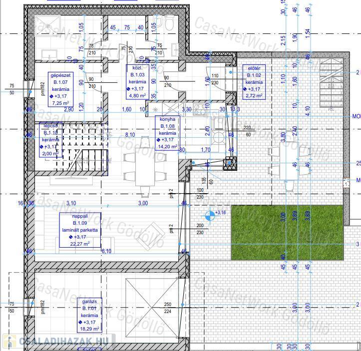
A ház elosztása rendkívül praktikus, kiemelendő a kamra, a gardrób és a szülői hálóhoz tartozó külön kis fürdőszoba. A két lakás lakóhelyiséggel nem, mindössze tárolóval és garázzsal érintkezik. A házak hűtéséről és fűtéséről hőszivattyú fog gondoskodni fan coillal kiegészítve. Mindkét ház tulajdonosai intim, szeparált életteret élvezhetnek majd, egymást semmilyen módon nem zavarva, gátolva.

A ház rutinos, magas színvonalat képviselő, számos referenciával rendelkező kivitelező által épült és a belső burkolatok tekintetében várja leendő lakói igényeit.

Mihamarabb lecsap rá, a belső elrendezést, burkolatokat, színeket saját igényeire szabva alakíthatja.

Megtekintési szándékával, illetve további információért várom hívását! Ingyenes hitel tanácsadással, ügyvédi kapcsolattal és rugalmas időbeosztással állunk kedves ügyfeleink rendelkezésére! CASANETWORK - Ingatlanban otthon vagyunk

Családi ház részletei

Ár: 164 000 000 Ft
Méret: 152 négyzetméter
Azonosító: 11432519
Irodai azonosító: 166401762
Telek: 956 négyzetméter
Ingatlan állapota: Átlagos
Jelleg: ikerház
Építőanyag: Tégla
Komfort fokozat: Dupla komfort
Egész szobák: 4

Így keressen családi házat négy egyszerű lépésben. Csupán 2 perc, kötelezettségek nélkül!

Szűkítse a családi házak
listáját
Válassza ki a megfelelő
családi házat
Írjon a hirdetőnek
Várjon a visszahívásra