Eladó családi ház Gödöllő 153 000 000 Ft

Leírás

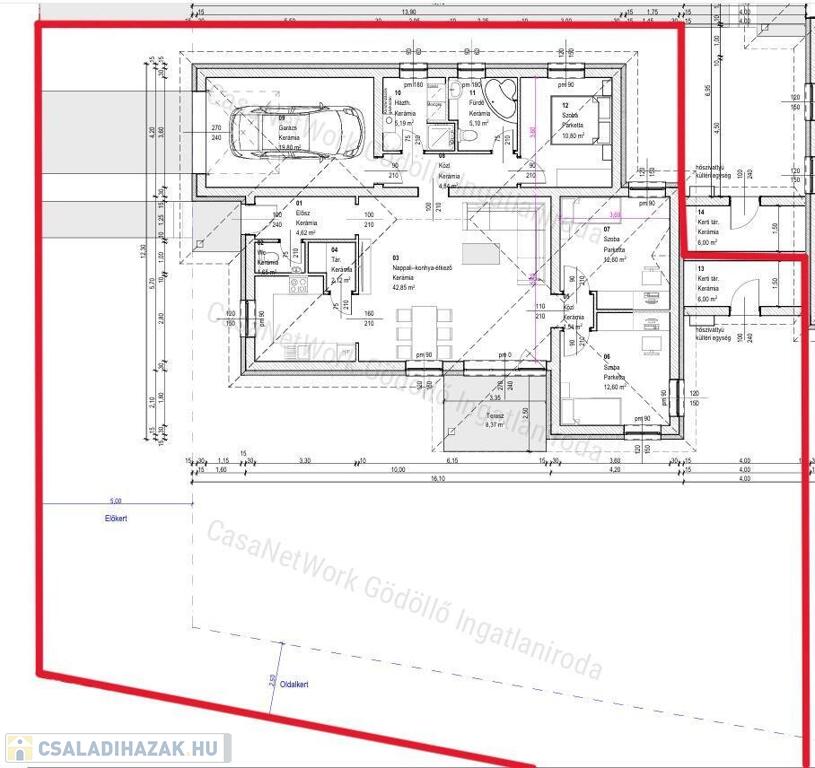
CasaNetWork Gödöllő Ingatlaniroda kínálatában eladó családi ház Gödöllőn, az Egyetem szomszédságában

Új építésű ikerház eladó Gödöllő egyik legkeresettebb részén, Nagyfenyvesben!

Gödöllő kedvelt, csendes kis utcájában épül ez a modern kialakítású ikerház, melynek két lakása csak a tárolóknál kapcsolódik egymáshoz, így a lakóterek teljesen elszeparáltak, nyugodt, családi házas hangulatot biztosítva.

Mindkét lakáshoz kb. 500 m²-es, jól használható kert tartozik, amely ideális családi kikapcsolódásra, kertészkedésre vagy akár játszótér kialakítására. A déli tájolású terasz és kert egész napos napfényt biztosít, ami különösen kellemes életteret teremt, akár medence kialakítására is tökéletesen alkalmas.

Az ingatlan garázzsal épül, a belső elrendezés pedig a mai igényekhez igazodik:
tágas amerikai konyhás nappali, kényelmes méretű szobák, valamint praktikus kiszolgáló helyiségek – háztartási helyiség és kamra – segítik a mindennapi kényelmet.

A ház korszerű hőszivattyús fűtési rendszerrel készül, amely:

  • rendkívül energiahatékony és alacsony rezsiköltséget biztosít,
  • környezetbarát megoldás,
  • hosszú távon is modern és értéknövelő technológia,
  • padlófűtéssel kombinálva egyenletes, kellemes hőérzetet ad az egész házban.

A kivitelezést rutinos, igényes építő végzi, korszerű, modern műszaki tartalommal és minőségi anyagok felhasználásával.

Ha egy új építésű, energiatakarékos, nyugodt környezetben lévő családi otthont keres Gödöllőn, amely mégis közel van minden fontos infrastruktúrához, ez az ingatlan kiváló választás lehet.

A lokáció is kiemelkedően jó:

  • az egyetem,
  • óvoda, bölcsőde, 4- és 8 osztályos gimnázium
  • vasútállomás,
  • valamint csodálatos zöld park

mind kellemes, rövid sétával elérhetők. Emellett Gödöllő központja is gyorsan és könnyen megközelíthető akár gyalogosan is, így az infrastruktúra és a nyugodt lakókörnyezet ideális egyensúlyt alkot.

Tervezett kulcsrakész átadás: 2026. IV. negyedév

További információért és megtekintéssel kapcsolatban keressen bizalommal! Hívjon most, le ne maradjon róla! Ingyenes hitel tanácsadással, ügyvédi kapcsolattal és rugalmas időbeosztással állunk kedves ügyfeleink rendelkezésére! CASANETWORK - Ingatlanban otthon vagyunk

Családi ház részletei

Ár: 153 000 000 Ft
Méret: 134 négyzetméter
Azonosító: 11605479
Irodai azonosító: 166401970
Telek: 692 négyzetméter
Ingatlan állapota: Kitűnő
Jelleg: családi ház
Építőanyag: Tégla
Komfort fokozat: Összkomfort
Egész szobák: 4

Így keressen családi házat négy egyszerű lépésben. Csupán 2 perc, kötelezettségek nélkül!

Szűkítse a családi házak
listáját
Válassza ki a megfelelő
családi házat
Írjon a hirdetőnek
Várjon a visszahívásra