Eladó családi ház Gödöllő 150 000 000 Ft

Leírás


Gödöllő keresett, Egyetemhez közeli részén, kertvárosias környezetben, kiváló elosztású, újépítésű ikerházfél referenciákkal rendelkező, megbízható építőtől eladó!

Műszaki paraméterek:

- 30-as Porotherm tégla falazat + 10cm grafit szigetelés,

- beton cserépfedés,

- födémen 20cm vastag kőzetgyapot,

- 3 réteg üvegezésű, 5 légkamrás hőszigetelt nyílászárókkal, redőny előkészítéssel,

- kondenzációs kazán vagy hőszivattyú (+3Mft), padlófűtéssel,

- riasztó előkészítés, 

- hűtő-fűtő klíma 250.000.-Ft-ig,

- bejárati ajtó: 250.000.-Ft,

- beltéri ajtók: 70.000.-Ft/db,

- kerámia burkolatok 5.500.-Ft/nm,

- parketta 4.500.-Ft/nm,

- mosdó 20.000.-Ft/db,

- WC 30.000.-Ft/db,

- csaptelepek 15.000.-Ft/db,

- kád 50.000.-Ft,

- zuhanyfolyóka 25.000.-Ft,

- helyiségenként 1db kiállás + kiállások 25.000.-Ft/db,

-  helyiségenként 1db kapcsoló + kapcsolók 35.000.-Ft/db.

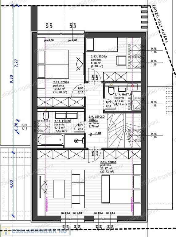
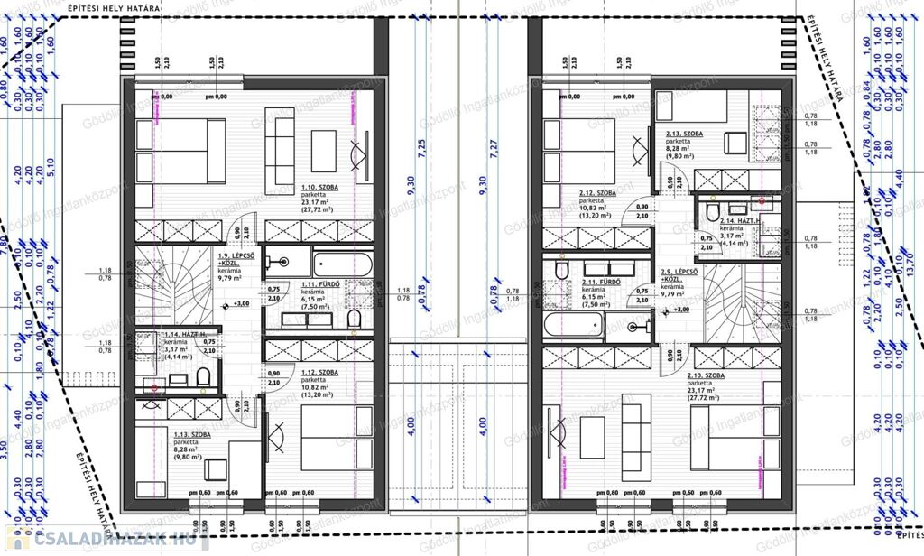
Elosztás:

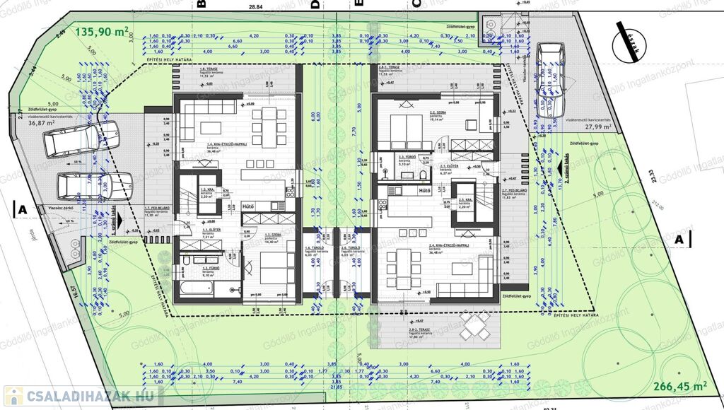
- Földszint: előtér, nappali-konyha-étkező, kamra, szoba, fürdő + 11,53nm terasz és 6,03nm tároló.

- Tetőtér: 3 szoba (az egyik kettéosztható), közlekedő, fürdő, háztartási helyiség.

Telek:

- 380nm-es telken helyezkedik el, parkoláshoz kocsibeálló kerül kialakításra,

- kaputól a bejárati ajtóig 1m széles, térkövezett járda,

- Kerítés díszkővel, fa vagy acél közökkel.

Környék:

- Csendes, nyugodt környék óvoda, iskola, bevásárlóközpont a közelben megtalálható. Buszmegálló, vasútállomás gyalog 5 percre van.

Az ingatlant megbízható kivitelező építi! Burkolatok, belső ajtók a vevői igényei szerint még szabadon választhatók!

Kérésre teljes műszaki tartalmat, alaprajzot szívesen küldünk!

Várható kulcsrakész átadás: szerződéskötéstől 6 hónap

Irányár: 150.000.000.-Ft

Hivatkozási szám: 2518150.

Megtekinthető telefonos időpont egyeztetés alapján:

Sápi Balázs +36 20 772-2429 sapibalazs@godolloi.hu 

GÖDÖLLŐ INGATLANKÖZPONT - www.godolloi.hu: Gödöllő és környéke legnagyobb ingatlan választéka /Gödöllő, Szada, Veresegyház, Kistarcsa, Kerepes, Erdőkertes, Fót, Dunakeszi/ eladó-kiadó családi ház, telek, lakás! Ingatlan építés és felújítás!

 

Családi ház részletei

Ár: 150 000 000 Ft
Méret: 148 négyzetméter
Azonosító: 11608224
Irodai azonosító: 2518150
Telek: 380 négyzetméter
Ingatlan állapota: Kitűnő
Jelleg: ikerház
Építőanyag: Tégla
Fűtés jellege: Központi
Komfort fokozat: Dupla komfort
Kor: Új építésű
Egész szobák: 6

Így keressen családi házat négy egyszerű lépésben. Csupán 2 perc, kötelezettségek nélkül!

Szűkítse a családi házak
listáját
Válassza ki a megfelelő
családi házat
Írjon a hirdetőnek
Várjon a visszahívásra