Eladó családi ház Gödöllő 149 900 000 Ft

Leírás

Eladó ikerházfél Gödöllő kedvelt kertvárosi részén!

Gödöllő egyik legkeresettebb, csendes, nyugodt környékén kínálunk megvételre egy modern, nappali + 3 szobás ikerházfelet, amelyet megbízható, referenciákkal rendelkező kivitelező épít. A ház kiváló választás családoknak, akik szeretnének jó elhelyezkedésű, új építésű otthonba költözni.

Műszaki jellemzők:

30 cm vastag PTH tégla falazat, 12 cm grafitos hőszigeteléssel

10 cm vastag válaszfalak, glettelve és fehérre festve

Lábazat: zsalukőből, szigetelve és vakolva

5 légkamrás, 3 rétegű üvegezésű műanyag nyílászárók középszürke színben

Monolit vasbeton födém

Antracit színű cserépfedés, középszürke ereszcsatorna

Atlantic Loria hőszivattyús rendszer beépített melegvíz-tárolóval

Padlófűtés minden helyiségben, fürdőszobában törölközőszárítós radiátor

Riasztó- és klíma előkészítés

Az ár tartalmazza:

Beltéri ajtók (60.000 Ft/db)

Hideg- és melegburkolatok (5.000 Ft/m²)

Teraszburkolat (6.500 Ft/m²)

Mosdók (20.000 Ft/db)

Csaptelepek (15.000 Ft/db)

Beépített Geberit WC-k (20.000 Ft/db)

Burkolatok és szaniterek szabadon választhatók a vevő igényei szerint!

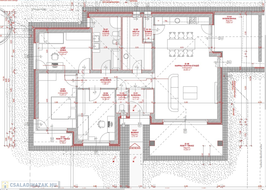
Helyiségek elosztása:

Előszoba

Nappali-konyha-étkező

Kamra

3 különálló szoba

Közlekedő

Tágas fürdőszoba

Vendégmosdó

Háztartási helyiség

17 m² fedett terasz

14 m²-es nyári konyha

Telek és parkolás:

Saját, szeparált mintegy 550 m²-es telek

Kocsibeálló kialakítva

Környék és elhelyezkedés:

Kiváló környék, minden fontos hely (bolt, iskola, tömegközlekedés) 5 perces sétán belül elérhető. Ideális választás azoknak, akik nyugodt, kertvárosi környezetben keresnek otthont, de szeretnének közel maradni a városi infrastruktúrához.

Várható kulcsrakész átadás: 2026. március

Jelen ingatlan a két ikerházfél közül az első, de még elérhető a hátsó ház is 152 900 000 Ft-os irányáron.


Kérem hívjon bizalommal további információkért, megtekintésért.

Természetesen hitelt, támogatást igénylő vevőknek is állunk szíves rendelkezésére: szakértőink segítenek megtalálni a személyre szabott legjobb finanszírozási formát.

Első laklás vásárlók részére a 3%-os fix kamatozású hitel felvehető az ingatlanra!

ID:384886

Családi ház részletei

Ár: 149 900 000 Ft
Méret: 145 négyzetméter
Azonosító: 11551216
Irodai azonosító: 384886
Cím: Kertváros
Telek: 550 négyzetméter
Ingatlan állapota: Kitűnő
Jelleg: ikerház
Építőanyag: Tégla
Fűtés jellege: Geotermikus
Fűtés módja: Hőszivattyú
Komfort fokozat: Összkomfort
Kor: Új építésű
Szintek száma: Földszintes
Egész szobák: 4

Egyéb jellemzők

  • Csatorna
  • Garázs
  • Pince
  • Terasz

Térkép


Így keressen családi házat négy egyszerű lépésben. Csupán 2 perc, kötelezettségek nélkül!

Szűkítse a családi házak
listáját
Válassza ki a megfelelő
családi házat
Írjon a hirdetőnek
Várjon a visszahívásra