Eladó családi ház Gödöllő 139 000 000 Ft

Leírás


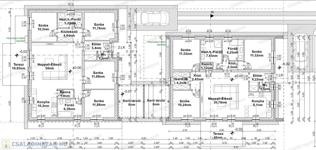
Gödöllő egyik legkeresettebb kertvárosi részén nappali + 4 szobás ikerházfél megbízható referenciákkal rendelkező építőtől eladó!

Műszaki adatok:

- 30-as okos tégla falazat

- 10cm grafitos és 4cm XPS szigetelés,

- 3 réteg üvegezésű műanyag nyílásszárók alumínium külső párkányokkal, 

- szürke színű elektromos alu redőnyök, szúnyoghálókkal, 

- alumínium csatorna, 

- 3x16 amper + H tarifás óra,

- fűtésről kondenzációs gázkazán gondoskodik padlófűtéssel, de hőszivattyú is kérhető,

- hűtő-fűtő klíma,

- garázs választja el a két oldalt, így nincs közös falrész.

Ár tartalmazza:

- Hideg-meleg burkolatokat 5500.-Ft/nm,

- laminált parkettát 4500.-Ft/nm,

- mosdókat 20.000.-Ft/db,

- szanitereket 15.000.-Ft/db, 

- kádat 50.000.-Ft/db, 

- Wc-ket 30.000.-Ft/db,

- gázkazánt 350.000.-Ft,

- lámpa kiállásokat 25.000.-Ft/db,

- bejárati ajtót 250.000.-Ft,

- beltéri ajtókat 70.000.-Ft/db értékben.

Elosztás:

- Előtér, nappali-konyha-étkező, kamra, 4 szoba, gardrób, fürdőszoba, háztartási helyiség/fürdő + 19,95nm terasz + 6nm tároló

Telek:

- Teljesen elszeparált, utcafronton antracit alumínium kerítés kerül kiépítésre.

Burkolatok, belső ajtók a vevői igényei szerint még szabadon választhatók!

Kérésre teljes műszaki tartalmat, alaprajzot szívesen küldünk!

Várható átadás 2026 nyár

Irányár: 139MFt

Hivatkozási szám: 2518171.

Megtekinthető telefonos időpont egyeztetés alapján:

Sápi Balázs +36 20 772-2429 sapibalazs@godolloi.hu 

GÖDÖLLŐ INGATLANKÖZPONT - www.godolloi.hu: Gödöllő és környéke legnagyobb ingatlan választéka /Gödöllő, Szada, Veresegyház, Kistarcsa, Kerepes, Erdőkertes, Fót, Dunakeszi/ eladó-kiadó családi ház, telek, lakás! Ingatlan építés és felújítás!

Családi ház részletei

Ár: 139 000 000 Ft
Méret: 144 négyzetméter
Azonosító: 11603927
Irodai azonosító: 2518171
Telek: 500 négyzetméter
Ingatlan állapota: Kitűnő
Jelleg: ikerház
Építőanyag: Tégla
Fűtés jellege: Központi
Komfort fokozat: Dupla komfort
Kor: Új építésű
Egész szobák: 5

Így keressen családi házat négy egyszerű lépésben. Csupán 2 perc, kötelezettségek nélkül!

Szűkítse a családi házak
listáját
Válassza ki a megfelelő
családi házat
Írjon a hirdetőnek
Várjon a visszahívásra