Eladó családi ház Gödöllő 124 900 000 Ft

Leírás

CasaNetWork Gödöllő Ingatlaniroda kínálatában eladó (garázzsal összekötött) ikerház Gödöllő legjobb részén, a Kertvárosban

Gödöllőn szeretne házat venni és a legjobb helyhez ragaszkodik? Akkor siessen, le ne maradjon róla, mert megtalálta!

Gödöllő csendes, családi házas övezetében, a központtól gyalogos közelségben, ahonnan még a busz, vonat, vagy a HÉV is 5 perc alatt elérhető.

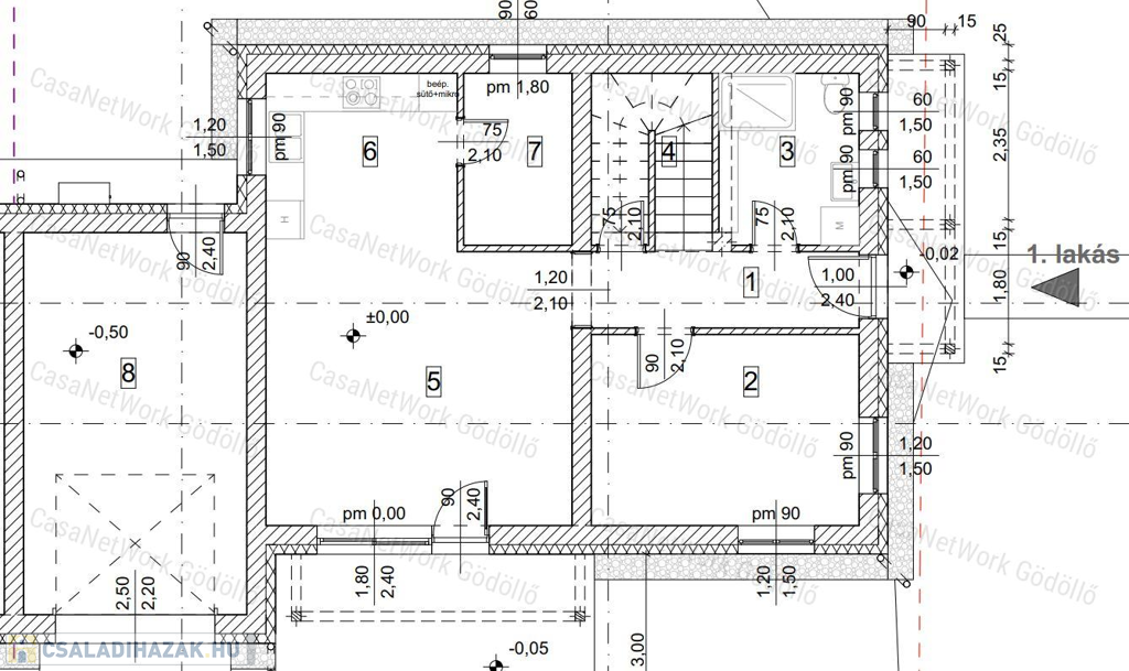
Sík, szabályos alakzatú telken épül az ikerház, melyeket csupán a garázs fog összekötni.

120m2 hasznos alapterülettel, 4 kényelmesen nagy hálószobával, 15m2 terasszal, 2 fürdőszobával, kis kerttel, 21m2 önálló, zárt garázzsal.

Ez az utcafronti ház kicsit kisebb, kb 50m2 kerttel fog rendelkezni, ami még tökéletesen elegendő tud lenni akár virágos, akár konyhakertnek, de elfér benne kisebb játszótér is, ha kisebb gyermek részére készül.

Az építkezés folyamatban van. Várható kulcsrakész átadás: 2025. év vége/2026 év eleje

Foglalják le most, hogy a kivitelezést még saját igényeik szerint alakíthassák!

A kivitelező több, (már lakott) projektje Gödöllőn megtekinthető. Rutinos, megbízható, igényes, kiváló alapanyagokkal dolgozik.

Csok+, babaváró felvehető, hitel szakértőnk ingyenes tanácsadással segít, ha szükség lenne az önerő kiegészítésére. Ha pedig még nem sikerült a meglévő ingatlanjukat eladniuk, állok rendelkezésükre, forduljanak hozzám bizalommal! Ingyenes hitel tanácsadással, ügyvédi kapcsolattal és rugalmas időbeosztással állunk kedves ügyfeleink rendelkezésére! CASANETWORK - Ingatlanban otthon vagyunk

Családi ház részletei

Ár: 124 900 000 Ft
Méret: 141 négyzetméter
Azonosító: 11546363
Irodai azonosító: 166401868
Telek: 358 négyzetméter
Ingatlan állapota: Kitűnő
Jelleg: ikerház
Építőanyag: Tégla
Komfort fokozat: Dupla komfort
Egész szobák: 5

Így keressen családi házat négy egyszerű lépésben. Csupán 2 perc, kötelezettségek nélkül!

Szűkítse a családi házak
listáját
Válassza ki a megfelelő
családi házat
Írjon a hirdetőnek
Várjon a visszahívásra