Eladó családi ház Gödöllő 115 000 000 Ft

Leírás


Gödöllő blahai részén, csendes, nyugodt környezetben, nappali + 4 szobás újépítésű ikerházfél referenciákkal rendelkező, megbízható építőtől eladó!

Műszaki paraméterek:

- 30-as Porotherm tégla falazat + 10cm grafit szigetelés,

- beton cserépfedés,

- födémen 20cm vastag kőzetgyapot,

- 3 réteg üvegezésű, 5 légkamrás hőszigetelt nyílászárókkal, redőny előkészítéssel,

- kondenzációs kazán vagy hőszivattyú (+3Mft), padlófűtéssel,

- riasztó előkészítés, 

- hűtő-fűtő klíma 250.000.-Ft-ig,

- bejárati ajtó: 250.000.-Ft,

- beltéri ajtók: 70.000.-Ft/db,

- kerámia burkolatok 5.500.-Ft/nm,

- parketta 4.500.-Ft/nm,

- mosdó 20.000.-Ft/db,

- WC 30.000.-Ft/db,

- csaptelepek 15.000.-Ft/db,

- kád 50.000.-Ft,

- zuhanyfolyóka 25.000.-Ft,

- helyiségenként 1db kiállás + kiállások 25.000.-Ft/db,

- helyiségenként 1db kapcsoló + kapcsolók 35.000.-Ft/db.

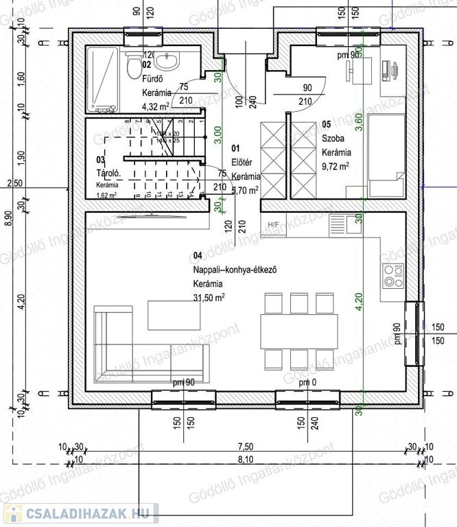
Elosztás:

- Földszint: előtér, nappali-konyha-étkező, kamra/tároló, egy szoba, fürdőszoba + terasz.

- Emelet: 3 szoba, közlekedő, mosókonyha/fürdő.

Telek:

- 342,5nm-es telken helyezkedik el, parkoláshoz kocsibeálló kerül kialakításra,

- kaputól a bejárati ajtóig 1m széles, térkövezett járda,

- Kerítés díszkővel, fa vagy acél közökkel.

Környék:

- Csendes, nyugodt környék, Tesco, Lidl, Aldi, éttermek, iskola, óvoda, buszmegálló percek alatt könnyen elérhető.

Az ingatlant megbízható kivitelező építi! Burkolatok, belső ajtók a vevői igényei szerint még szabadon választhatók!

Kérésre teljes műszaki tartalmat, alaprajzot szívesen küldünk!

Irányár: 115.000.000.-Ft

Hivatkozási szám: 2518227.

Megtekinthető telefonos időpont egyeztetés alapján:

Sápi Balázs +36 20 772-2429 sapibalazs@godolloi.hu 

GÖDÖLLŐ INGATLANKÖZPONT - www.godolloi.hu: Gödöllő és környéke legnagyobb ingatlan választéka /Gödöllő, Szada, Veresegyház, Kistarcsa, Kerepes, Erdőkertes, Fót, Dunakeszi/ eladó-kiadó családi ház, telek, lakás! Ingatlan építés és felújítás!

Családi ház részletei

Ár: 115 000 000 Ft
Méret: 95 négyzetméter
Azonosító: 11602141
Irodai azonosító: 2518227
Telek: 342 négyzetméter
Ingatlan állapota: Kitűnő
Jelleg: ikerház
Építőanyag: Tégla
Fűtés jellege: Központi
Komfort fokozat: Összkomfort
Kor: Új építésű
Egész szobák: 5

Így keressen családi házat négy egyszerű lépésben. Csupán 2 perc, kötelezettségek nélkül!

Szűkítse a családi házak
listáját
Válassza ki a megfelelő
családi házat
Írjon a hirdetőnek
Várjon a visszahívásra