Eladó családi ház Gödöllő 115 000 000 Ft

Leírás

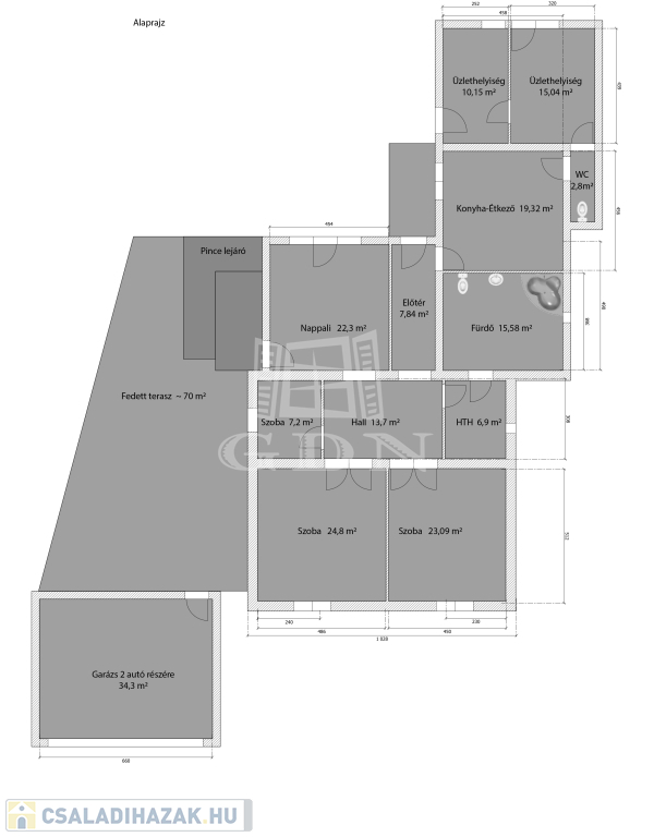
Gödöllőn 548 m2-es telken a Szilágyi Erzsébet utca és a Hunyadi János utca között, két utcafronttal, nettó 168,72m2-es + 34,3m2-es kétautós garázzsal, 13,5m2-es pincével és 70 m2-es fedett terasszal rendelkező családi ház eladó!

A 2004-ben épült és folyamatosan modernizált ingatlanban a Hunyadi János utca felőli utcafronti bejárattal egy 35 m2-es üzlethelyiség található. A homlokzati falak 30-as és 38-as tégla falazattal épültek, melyeket 10cm-es EPS dryvit szigeteléssel láttak el. A külső nyílászárók műanyag thermó üvegekkel szereltek. A tetőt zsindely fedi.

A fűtésről kombi gázkazán gondoskodik.

A parkosított kertet öntözőrendszer locsolja helyettünk. A megközelítőleg 70m2-es fedett terasz kiválló helyszíne a családi összejöveteleknek és a pihenésnek. Az itt található jacuzzi is a vételár részét képezi.

Parkolni a Sziláégyi Erzsébet utcáról elektromos garázsajtón megközelíthető 2 autó tárolására kialakított garázsban tudunk.

A villamos áram terhelhetőseége 1x32A.

Az üzlethelyiség gipszakrtonnal lett elválasztva, hogy akár 2 üzletet is üzemeltethessünk. A könnyedén elbontható válaszfallal 35m2-es helyiséget tudunk kialakítani.

Tárolásra a nappali alatt kialakított 13,5m2-es pince kiváló lehetőséget ad.

Készpénzes vevők jelentkezését várjuk.

Amennyiben hirdetésem felkeltette az érdeklődését vagy egyéb információra van szüksége hívjon bizalommal!

Családi ház részletei

Ár: 115 000 000 Ft
Méret: 169 négyzetméter
Azonosító: 11586449
Irodai azonosító: 390624
Cím: Szilágyi Erzsébet utca
Telek: 548 négyzetméter
Ingatlan állapota: Felújított
Jelleg: családi ház
Építőanyag: Tégla
Fűtés jellege: Cirkó
Fűtés módja: Gáz
Komfort fokozat: Összkomfort
Kor: 21-50 éves
Szintek száma: Földszintes
Egész szobák: 4

Egyéb jellemzők

  • Csatorna
  • Garázs
  • Pince
  • Terasz

Térkép


Így keressen családi házat négy egyszerű lépésben. Csupán 2 perc, kötelezettségek nélkül!

Szűkítse a családi házak
listáját
Válassza ki a megfelelő
családi házat
Írjon a hirdetőnek
Várjon a visszahívásra