Eladó családi ház Gödöllő 114 990 000 Ft

Leírás

CasaNetWork Ingatlaniroda Gödöllő Ingatlaniroda kínálatában eladó ikerház Gödöllő Kertvárosában, gyalogos közelségben a központhoz

Az ikerház megbízható kivitelező munkájával készül utcafrontra merőlegesen. A hátsó ház már megtalálta boldog gazdáját, de az utcafronti még keresi azt. 

Átjárástól nem kell tartani, a két ház lakói egymástól függetlenül, egymást nem zavarva tudnak közlekedni, ingatlanukba bejutni.

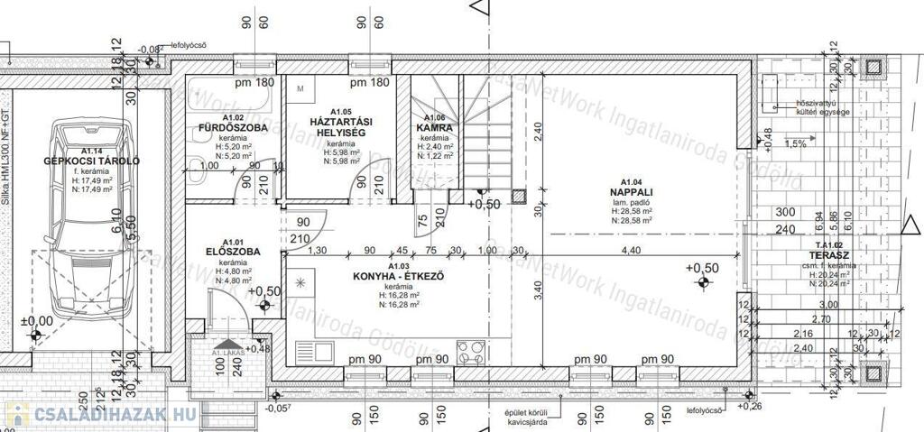
4 szoba, amerikai konyhás nappali!

A házak 15 cm szigeteléssel készülnek, minőségi kivitelezésben, garázzsal összekötésben. További műszaki információt emailben tudok küldeni.

Ne habozzon, csapjon le rá most, megelőzve a keresleti dömpinget!

Csendes mellékutcában, központhoz közel.

Kulcsrakész átadás: 2026. tavasz

Hívjon most, tekintse meg segítségemmel! Ingyenes hitel tanácsadással, ügyvédi kapcsolattal és rugalmas időbeosztással állunk kedves ügyfeleink rendelkezésére! CASANETWORK - Ingatlanban otthon vagyunk

Családi ház részletei

Ár: 114 990 000 Ft
Méret: 130 négyzetméter
Azonosító: 11585974
Irodai azonosító: 166401886
Telek: 200 négyzetméter
Ingatlan állapota: Kitűnő
Jelleg: ikerház
Építőanyag: Tégla
Fűtés jellege: Cirkó
Fűtés módja: Gáz
Komfort fokozat: Dupla komfort
Egész szobák: 5

Így keressen családi házat négy egyszerű lépésben. Csupán 2 perc, kötelezettségek nélkül!

Szűkítse a családi házak
listáját
Válassza ki a megfelelő
családi házat
Írjon a hirdetőnek
Várjon a visszahívásra