Eladó családi ház Gödöllő 109 800 000 Ft

Leírás

Töltsd az új otthonodban a karácsonyt!
Eladásra kínálok Gödöllőn a kertvárosban, Kiralytelep varosrészen, egy újépítésű. egyszintes, nettó 92.58 m2-es ( + 10 m2 terasz), amerikai konyhás nappali + 3 hálószobás ikerházfelet, amely 464 m2 kizárólagos használatú telekrésszel rendelkezik!
Átadás:2025.december!!!

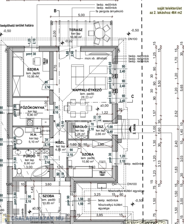
Helyiséglista:
- teraszkapcsolatos nappali/konyha/étkező (28.23 + 6.90 = 35.13 m2)
- terasz (10.00 m2)
- 3 hálószoba (10.95, 10.80, 21.85 m2)
- fürdőszoba (6.90 m2)
- háztartási helyiség/2. fürdőszoba (5.10 m2)
- gardrób (3.00 m2)
- tároló (2.24 m2)
- közlekedő (4.95 m2)
- előszoba (2.66 m2)

Az árba tetszőleges mobilgarázs tartozik!

Az ingatlan Leierplan 30 síkracsiszolt, ragasztott falazattal épül 15 cm homlokzati szigeteléssel, beton födémmel, a födémen 25 cm üveggyapot szigeteléssel, beton cseréppel, 3 rétegű, 5 légkamrás hőszigetelt nyílászárókkal.

A fűtésről hőszivattyú gondoskodik minden helyiségben padlófűtéssel, a fürdőkben kiegészítő törölközőszárítós radiátorral.

A két ikerfél között dupla hanggátló falazat épült!

Hívjon bizalommal! Tekintsük meg együtt!

Családi ház részletei

Ár: 109 800 000 Ft
Méret: 94 négyzetméter
Azonosító: 11571475
Irodai azonosító: 388343
Cím: Zrínyi Miklós utca
Telek: 464 négyzetméter
Ingatlan állapota: Kitűnő
Jelleg: ikerház
Építőanyag: Tégla
Fűtés jellege: Geotermikus
Fűtés módja: Hőszivattyú
Komfort fokozat: Összkomfort
Kor: Új építésű
Szintek száma: Földszintes
Egész szobák: 4

Egyéb jellemzők

  • Csatorna
  • Garázs
  • Pince
  • Terasz

Térkép


Így keressen családi házat négy egyszerű lépésben. Csupán 2 perc, kötelezettségek nélkül!

Szűkítse a családi házak
listáját
Válassza ki a megfelelő
családi házat
Írjon a hirdetőnek
Várjon a visszahívásra