Eladó családi ház Göd 184 900 000 Ft

Leírás

Göd központjában eladó újépítésű 182 m²-es, önálló családi ház, amelyhez 560 m²-es telek tartozik.

Az ingatlan tégla falazattal épül, cserépfedéssel, valamint 10 cm-es dryvit szigeteléssel.

Műanyag, thermo üvegezésű nyílászárók gondoskodnak a kiváló hő- és hangszigetelésről.

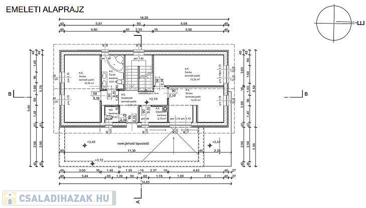
Elosztása: földszinten található garázs, amerikai konyhás nappali, hálószoba, fürdőszoba, míg az emeleten 3 db hálószoba, fürdő WC külön és egy gépészeti helység.

A fűtésről gázcirkó gondoskodik, padlófűtéses hőleadással.

Az ingatlanba 2 darab hűtő-fűtő klíma is beépítésre kerül.

Igény esetén a ház hőszivattyús rendszerrel is kérhető. Ebben az esetben az ingatlan ára 188 000 000 Ft.

Várható átadás: 2026. Június

Jelen esetben foglalózás után, hideg meleg burkolatok, beltéri nyílászárók, szaniterek választhatóak melyek a meghirdetett ár részét képezik a belső műszaki tartalom szerint.

További kérdéseivel, illetve megtekintési szándékával kérem keresse irodánkat.

A hirdetésben szereplő adatok tájékoztató jellegűek.

Az ingatlan hitelre is megvásárolható. Bankfüggetlen tanácsadóink, az ország összes pénzintézete közül gyorsan és gördülékenyen találja meg az Önnek legmegfelelőbb konstrukciót, egyedi kedvezményekkel. A hitel közvetítés díjmentes



Családi ház részletei

Ár: 184 900 000 Ft
Méret: 181 négyzetméter
Azonosító: 11587546
Irodai azonosító: 24227
Telek: 560 négyzetméter
Ingatlan állapota: Épülő
Jelleg: családi ház
Építőanyag: Kérdezzen rá a hirdetőtől »
Fűtés jellege: Cirkó
Szintek száma: 1 szint
Egész szobák: 5

Így keressen családi házat négy egyszerű lépésben. Csupán 2 perc, kötelezettségek nélkül!

Szűkítse a családi házak
listáját
Válassza ki a megfelelő
családi házat
Írjon a hirdetőnek
Várjon a visszahívásra