Eladó családi ház Göd, Felsőgöd, 170 000 000 Ft

Leírás

Kivételes, különleges lehetőséget ajánlok figyelmébe. Együtt, de még is külön.Felsőgöd csendes utcájában, két önálló családi ház 912 nm-es telken eladó, kizárólag egyben. Az ingatlanok kiválóan alkalmasak több generáció együttélésére, vagy akár befektetésnek, vállalkozás helyszíneként is alkalmas lehet.
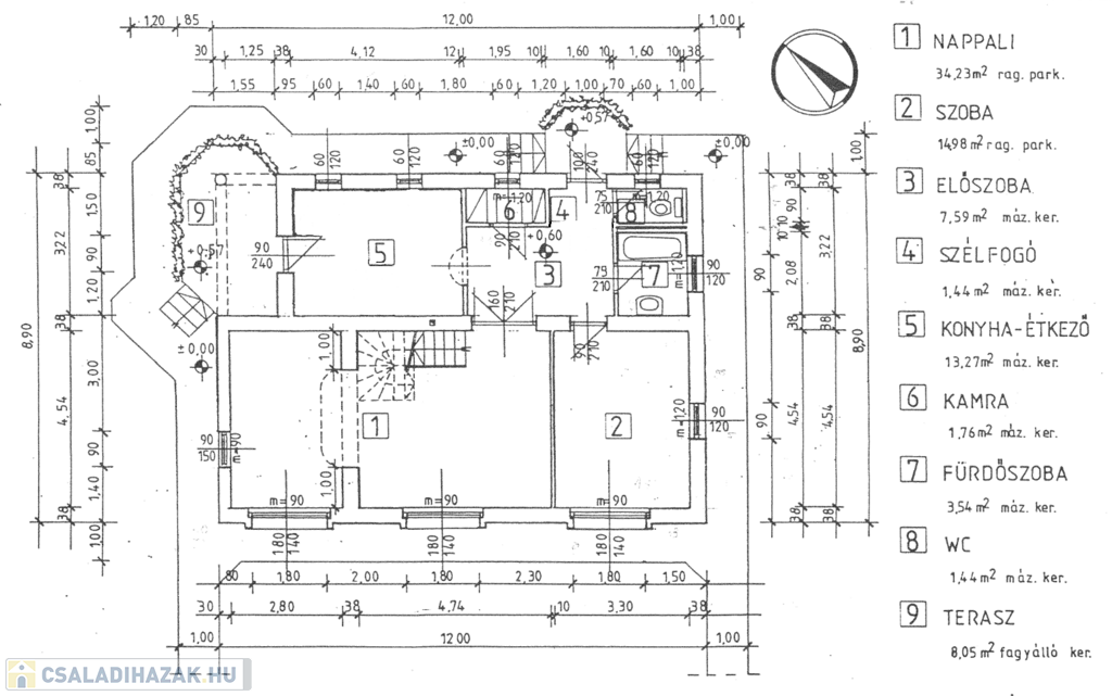
A nagyobbik ház kétszintes, dupla komfortos, nettó 156 m2 alapterülettel és 6 tágas szobával rendelkezik, melyek mindegyike különnyílóak. 1994-ben épült 38-as téglából és erre került 5 cm szigetelés. A fűtésről és a meleg vízről gázcirkó gondoskodik, minden helyiségben található radiátor. A gondos megtervezett és kivitelezett ablakoknak köszönhetően, valamint a kertkapcsolatos terasznak, a 2 erkélynek és 1 franciaerkélynek köszönhetően rendkívül világos élettereket biztosít. A földszinten foglal helyet egy tágas fogadótér, külön álló mellékhelység, zuhanyzós fürdőszoba, hálószoba, konyha, kamra,, valamint a nappali, melyből a képeken látható módon le van választva egy kis dolgozó, A konyhának nagy előnye, hogy kertkapcsolatos, egy ajtó választja el a 11 m2-es részben fedett terasztól, így a reggel frissen lefőtt kávét a nyugodt, zöld kertet nézve lehet elfogyasztani. Az emeleten 4 szoba helyezkedik el, melyből az egyik jelenleg könyvtárként funkcionál, megtalálható továbbá egy kádas fürdőszoba, melyben természetesen wc is helyet kapott, nappali (közlekedő), két terasz, valamint egy franciaerkély. A jól megtervezett és elhelyezett, 7m2-es teraszok előnyeit mindegyik szobából maximálisan ki lehet élvezni.
A kisebbik ház nettó 65,2m 2 alapterületű, összkomfortos és 2 különnyíló szoba helyezkedik el benne. 2000-ben épült 30-as téglából, majd 2005-ben nyerte el jelenlegi ház formáját. 2019-ben kapott 10cm kőzetgyapot szigetelést. A fűtésről és a meleg vízről egy kombi turbó Saunier Duval gázcirkó gondoskodik. A konyhában, étkezőben, valamint a fürdőszobában padlófűtés került kivitelezésre, a többi helyiségben pedig radiátor biztosítja a hőleadást. A nyári melegek enyhítésére a 2020-ban felszerelt MDV 3.5kW-os A++ besorolású, energiatakarékos, hűtő fűtő klímával lehet védekezni. A tető borítása kerámiacserép és padlástérrel is rendelkezik. A tavalyi évben elkészült közel 30 m2-es fedett terasz pedig kiváló lehetőséget nyújt egy nyári grillezésre, de egy baráti összejövetel helyszíneként is tökéletesen színtere lehet.
A kétszintes épület energetikai besorolása "D", az egyszintesé "G".
További információért és megtekintési szándékával várom megtisztelő hívását a hét bármely napján.

Családi ház részletei

Ár: 170 000 000 Ft
Méret: 221 négyzetméter
Azonosító: 11480452
Városrész: Felsőgöd
Telek: 912 négyzetméter
Ingatlan állapota: Kérdezzen rá a hirdetőtől »
Jelleg: családi ház
Építőanyag: Tégla
Fűtés jellege: Cirkó
Fűtés módja: Gáz
Komfort fokozat: Dupla komfort
Kor: 21-50 éves
Elhelyezkedés: Udvari
Szintek száma: 2 szint
Bútorozott: Részben bútorozott
Egész szobák: 8
Nappalik: 2

Egyéb jellemzők

  • Csatorna
  • Garázs
  • Kábel TV
  • Terasz

Így keressen családi házat négy egyszerű lépésben. Csupán 2 perc, kötelezettségek nélkül!

Szűkítse a családi házak
listáját
Válassza ki a megfelelő
családi házat
Írjon a hirdetőnek
Várjon a visszahívásra