Eladó családi ház Göd 99 900 000 Ft

Leírás



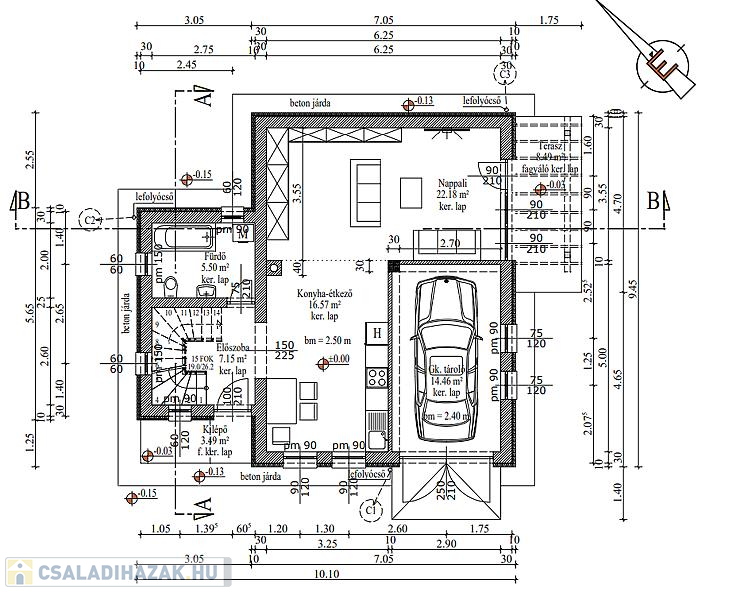
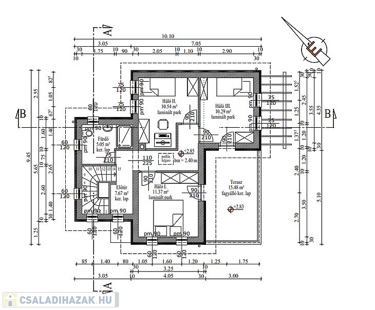
Alsógöd kedvelt, nyugodt részén kínálunk eladásra egy minőségi anyagokból épülő, modern stílusú, önálló családi házat 320 nm-es telekkel.

Az ingatlan 30-as Porotherm téglából épül, 12 cm-es hőszigeteléssel. A fűtésről korszerű hőszivattyús rendszer gondoskodik, padlófűtéssel a teljes házban. A kivitelezés során háromrétegű műanyag thermo nyílászárók kerülnek beépítésre.

A tervek szerint garázs is tartozik az épülethez, de igény esetén ez akár plusz szobává is átalakítható, így még jobban az Ön igényeihez szabható a végső kialakítás.

A burkolatok és szaniterek igény szerint választhatók, így lehetőség van arra, hogy a leendő tulajdonos saját ízlésére formálja az otthonát.

Vasútállomás, iskola, óvoda illetve a boltok is 15 perc sétával elérhetőek.



További kérdéseivel, illetve megtekintési szándékával kérem keresse irodánkat.

A hirdetésben szereplő adatok tájékoztató jellegűek.

Családi ház részletei

Ár: 99 900 000 Ft
Méret: 112 négyzetméter
Azonosító: 11538486
Irodai azonosító: 21993
Telek: 320 négyzetméter
Ingatlan állapota: Épülő
Jelleg: családi ház
Építőanyag: Kérdezzen rá a hirdetőtől »
Fűtés jellege: Egyéb
Szintek száma: 1 szint
Egész szobák: 4

Így keressen családi házat négy egyszerű lépésben. Csupán 2 perc, kötelezettségek nélkül!

Szűkítse a családi házak
listáját
Válassza ki a megfelelő
családi házat
Írjon a hirdetőnek
Várjon a visszahívásra