Eladó családi ház Gerjen 49 900 000 Ft

Leírás

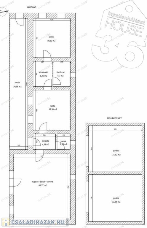
Az ingatlan vegyes falazatú, teljesen víz szigetelt ház, 2021-ben teljes körű felújításon esett át: új gipszkarton burkolat, korszerű nyílászárók – az otthon modern és energiatakarékos. A teljes lakótér 106,4 m2.

Az elrendezés kényelmes és praktikus:
∙ Tágas nappali kőburkolattal és kandallóval
∙ 2 további szoba meleg hangulatú hajópadlóval
∙ Fürdőszoba kőburkolattal

A fűtésről Baxi gázkazán gondoskodik, amelyet elektromos padlófűtés egészít ki. Nyáron a beépített légkondicionáló biztosítja a kellemes hőmérsékletet – télen és nyáron egyaránt kényelmes az élet ebben az otthonban.

Az ingatlan 754 m2-es telekrészen terül el, a teljes telek 1421 m²-es, két helyrajzi számon nyilvántartott dupla telek (a másik 667 m²). A telkek megosztása az eladás feltételei között egyeztethető.


Gerjen az elmúlt években jelentős fejlődésen ment át: új utak épültek, és átadták az új kalocsai Duna-hidat, amely komolyan felértékeli a térség közlekedési és gazdasági lehetőségeit. A közeli Paks (Paksi Atomerőmű, épülő Paks II.), valamint Szekszárd és Kalocsa gyors elérhetősége miatt a terület vonzereje folyamatosan nő.


A HOUSE36 kínálatában található összes ingatlannal kapcsolatban tudok felvilágosítást nyújtani!
További képekért és információért hívjon bizalommal!
Szolgáltatásaink Kereső ügyfeleink számára INGYENESEK! Amennyiben ELADÓ INGATLANA VAN, vagy FINANSZÍROZÁSI MEGOLDÁST KERES, hívjon, megtaláljuk a legjobb lehetőséget! HITELSPECIALISTÁNK MINDENBEN SEGÍT, irodánkban ez a szolgáltatás INGYENES!

Figyelem az adatlap megbízónktól kapott adatok alapján készült, pontosságáért felelősséget nem tudunk vállalni!
Az iroda legfrissebb, aktuális kínálatát a HOUSE36 saját weboldalán találja!

Családi ház részletei

Ár: 49 900 000 Ft
Méret: 106 négyzetméter
Azonosító: 11606230
Irodai azonosító: 3621330-5175814
Telek: 754 négyzetméter
Ingatlan állapota:
Jelleg: családi ház
Építőanyag: Kérdezzen rá a hirdetőtől »
Fűtés jellege: Egyéb
Kor: 50 évesnél régebbi
Szintek száma: Földszintes
Egész szobák: 3

Térkép


Így keressen családi házat négy egyszerű lépésben. Csupán 2 perc, kötelezettségek nélkül!

Szűkítse a családi házak
listáját
Válassza ki a megfelelő
családi házat
Írjon a hirdetőnek
Várjon a visszahívásra