Eladó családi ház Gárdony 168 000 000 Ft

Leírás

Eladó újépítésű Ikerházfél Gárdony frekventált, mégis nyugodt részén!

Eladásra kínálok egy épülőfélben lévő, minden igényt kielégítő ikerházfelet!

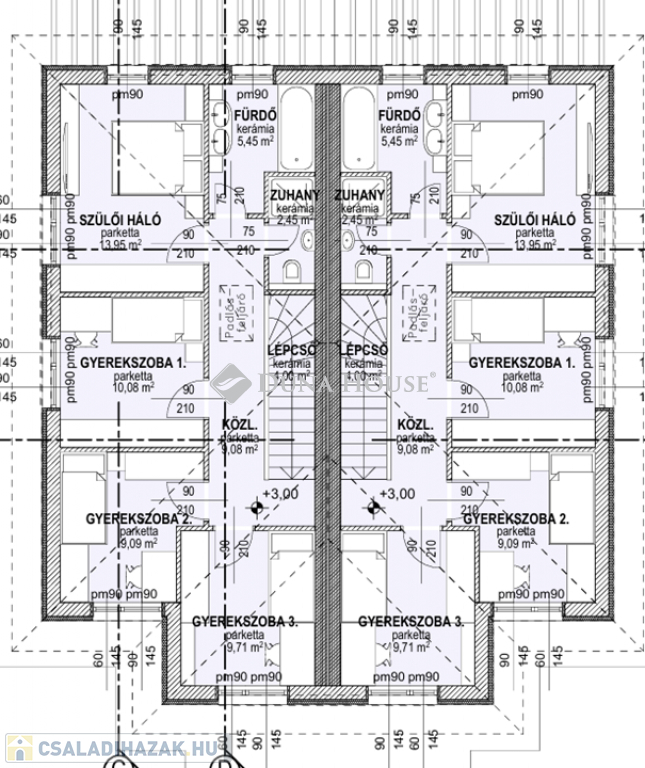
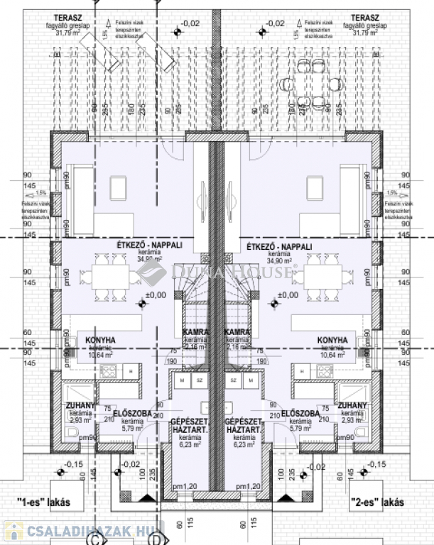
Ritka kincs a piacon: a földszinti tágas amerikai konyhás nappali mellett további 4 teljes értékű hálószoba és 3 fürdőszoba biztosítja a teljes kényelmet!
A szobákban és a nappaliban hűtő-fűtő és páramentesítő klíma
Hőszivattyús padló hűtés-fűtés
A lakás műszaki tartalmáról:
- Viablokk falazat, 10 cm Dryvit szigetelés, Hofstadter 3 rétegű nyílászárók, motoros redőnyökkel, egyedi kő burkolat a homlokzaton, párkányokon, Monolit vasbetonfödém
-Térkövezett járda, terasz és kocsibeálló

Zöldenergia és A++ besorolás - ALACSONY rezsiköltség
A ház hőszivattyús fűtésrendszerrel és kiváló szigeteléssel épül,
A ház esetében nem standard burkolatok közül válogathat: leendő tulajdonosként kiemelt lehetőséget kap prémium márvány, gránit és felső kategóriás burkolatok kiválasztására!

A ház elhelyezkedése kiváló: közel a parthoz és a központi infrastruktúrához, mégis csendes környezetben.

Bár az ingatlan paramétereiből adódóan állami támogatások (CSOK, stb.) nem vehetők igénybe, ez a ház azoknak szól, akik nem kompromisszumokat keresnek, hanem értéket.
Ideális készpénzes vásárlóknak vagy piaci hitellel rendelkezőknek!
Várható átadás: 2026

Amennyiben az ingatlan felkeltette érdeklődését, kérem keressen bizalommal!

Családi ház részletei

Ár: 168 000 000 Ft
Méret: 161 négyzetméter
Azonosító: 11595631
Irodai azonosító: HZ012625-5134303
Cím: Gárdonyi 161 nm-es ház eladó
Telek: 353 négyzetméter
Ingatlan állapota: Épülő
Jelleg: ikerház
Építőanyag: Szilikát
Fűtés jellege: Villany
Fűtés módja: Hőszivattyú
Komfort fokozat: Összkomfort
Kor: Új építésű
Szintek száma: Földszintes
Egész szobák: 5

Egyéb jellemzők

  • Garázs

Térkép


Így keressen családi házat négy egyszerű lépésben. Csupán 2 perc, kötelezettségek nélkül!

Szűkítse a családi házak
listáját
Válassza ki a megfelelő
családi házat
Írjon a hirdetőnek
Várjon a visszahívásra