Eladó családi ház Gárdony 115 000 000 Ft

Leírás

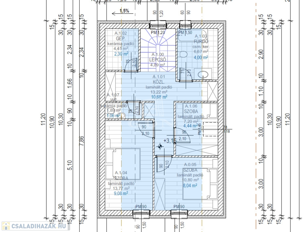
4851. Gárdonyban, 10 perc sétára a központtól, csendes kertvárosi utcában, 2025-ben épülő, 2026 április hónapban átadásra kerülő, újépítésű, kétszintes, nappali + 3 hálószobás ikerházi lakás garázzsal, kerti tárolóval, hőszivattyús fűtéssel, 320 m2-es telekrésszel eladó.

A földszint hasznos területe 54,76 m2, tetőtér hasznos területe 44,55 m2. Garázs 21,00 m2, terasz 13,20 m2. Ár: 115 MFt

Családi ház részletei

Ár: 115 000 000 Ft
Méret: 127 négyzetméter
Azonosító: 11545987
Irodai azonosító: 384191
Cím: Újépítésű ikerház
Telek: 320 négyzetméter
Ingatlan állapota: Kitűnő
Jelleg: családi ház
Építőanyag: Tégla
Fűtés jellege: Geotermikus
Fűtés módja: Hőszivattyú
Komfort fokozat: Összkomfort
Kor: Új építésű
Szintek száma: 1 szint
Egész szobák: 3
Fél szobák: 1

Egyéb jellemzők

  • Csatorna
  • Garázs
  • Pince
  • Terasz

Térkép


Így keressen családi házat négy egyszerű lépésben. Csupán 2 perc, kötelezettségek nélkül!

Szűkítse a családi házak
listáját
Válassza ki a megfelelő
családi házat
Írjon a hirdetőnek
Várjon a visszahívásra