Eladó családi ház Gárdony 115 000 000 Ft

Leírás

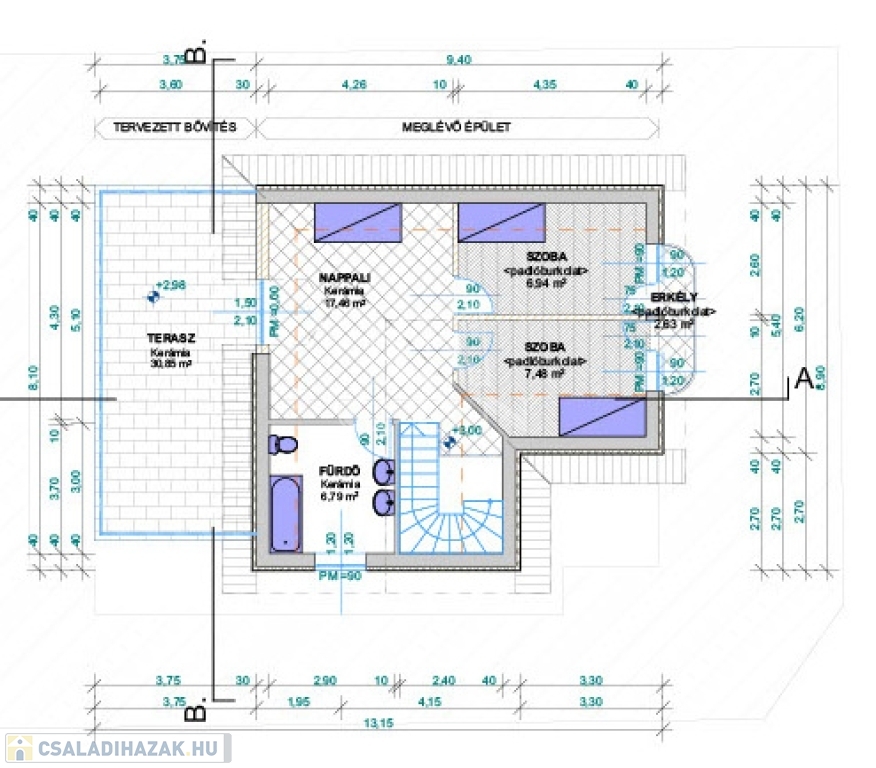
4648. Gárdonyban, kertvárosi környezetben, vásárlási lehetőségtől 5 perc, tóparttól 10 perc séta távolságra található, 484 nm nagyságú, összközműves telken, 2004-ben épült, 2018-19-ben felújított, két szintes, 116 nm lakótérrel rendelkező, két szoba + két hálószoba, konyha, két fürdőszoba, előtér elrendezésű, gázcirkó fűtéssel rendelkező, klímával, napelem rendszerrel felszerelt családi ház eladó.
A ház két lakásnak vagy vállalkozás céljára is kiválóan alkalmas.
Ár: 115 millió Ft.

Családi ház részletei

Ár: 115 000 000 Ft
Méret: 116 négyzetméter
Azonosító: 11162327
Irodai azonosító: 345929
Cím: Vállalkozásnak is alkalmas
Telek: 484 négyzetméter
Ingatlan állapota: Felújított
Jelleg: családi ház
Építőanyag: Tégla
Fűtés jellege: Cirkó
Fűtés módja: Gáz
Komfort fokozat: Dupla komfort
Kor: 21-50 éves
Szintek száma: 1 szint
Egész szobák: 2
Fél szobák: 2

Egyéb jellemzők

  • Csatorna
  • Garázs
  • Pince
  • Terasz

Térkép


Így keressen családi házat négy egyszerű lépésben. Csupán 2 perc, kötelezettségek nélkül!

Szűkítse a családi házak
listáját
Válassza ki a megfelelő
családi házat
Írjon a hirdetőnek
Várjon a visszahívásra