Eladó családi ház Fót 83 900 000 Ft

Leírás


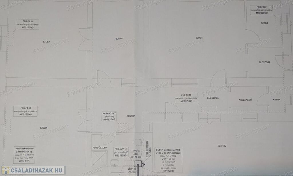
Pest vármegyében, Fót Belvárosában eladó egy 581 m²-es telken álló, 100 m² alapterületű, délkeleti fekvésű családi ház, amely 2023 őszén nagy felújításon esett át. A ház három szobával és egy 17 m²-es terasszal rendelkezik, így a mindennapokhoz és a pihenéshez is bőséges teret kínál.

 

A modern, kétszeresen üvegezett műanyag ablakok és új bejárati ajtó kiváló hő- és hangszigetelést biztosítanak. Ház falazata tégla és terméskő, tető héjazata cserép, födéme fa, mely szigetelt, az egész épület folyamatosan karbantartott állapotban van. Fűtésről és melegvíz ellátásról energia- és költséghatékony Bosch kondenzációs kazán gondoskodik.

Közelmúltban teljesen megújult a fürdőszoba és a konyha, valamint a hálószoba és előszoba villamos hálózata. Udvaron 20 m² garázs, tárolók, pince és egy különálló, 16 m²-es helyiség található, amely akár műhelynek, irodának vagy hobbiszobának is használható.

 

A kert gondosan karbantartott és rendezett, ami kellemes környezetet biztosít a szabadidő eltöltéséhez. A közlekedés kiváló, hiszen a buszmegálló és a vasútállomás mindössze 5-8 perc sétára található, több járat pedig közvetlen összeköttetést biztosít Budapestre.

 

Az ingatlan per-és tehermentes!

 

Értékegyeztetéssel Erdőkertesen családi ház csere szóba jöhet!

 

 

Családi ház részletei

Ár: 83 900 000 Ft
Méret: 100 négyzetméter
Azonosító: 11566237
Irodai azonosító: 705100372
Telek: 581 négyzetméter
Ingatlan állapota:
Jelleg: családi ház
Építőanyag: Kérdezzen rá a hirdetőtől »
Komfort fokozat: Összkomfort
Egész szobák: 3

Így keressen családi házat négy egyszerű lépésben. Csupán 2 perc, kötelezettségek nélkül!

Szűkítse a családi házak
listáját
Válassza ki a megfelelő
családi házat
Írjon a hirdetőnek
Várjon a visszahívásra