Eladó családi ház Forráskút 96 000 000 Ft

Leírás

Új építésű, kulcsrakész családi házak Forráskúton
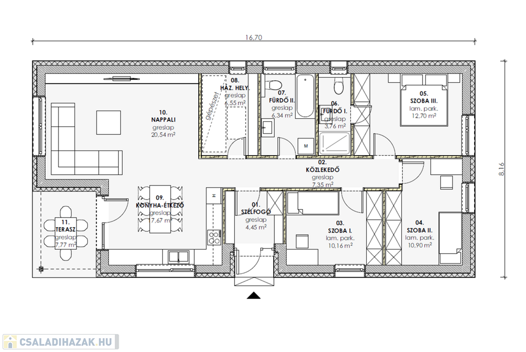
Forráskút nyugodt, családbarát környezetében kínálunk eladásra 3 db földszintes, új építésű otthont. A bemutatott ingatlan 113 m² lakóterű, 14 m²-es terasszal rendelkezik, egy 831 m²-es telken, ideális választás családok számára.
Helyiségek:
• előszoba
• folyosó
• egybenyitott konyha, étkező és nappali
• 3 hálószoba
• fürdőszoba
• kamra
• háztartási helyiség zuhanyzóval, WC-vel és kézmosóval
• terasz
________________________________________
Műszaki jellemzők
 Falazat és szigetelés: Leier tégla 15 cm-es homlokzati hőszigeteléssel (alacsony rezsiköltség).
 Nyílászárók: háromrétegű hőszigetelt üvegezés a kiváló hő- és hangszigetelésért.
 Tető: Stabil szeglemezes szerkezet, tartós betoncserép fedéssel, 30 cm-es ásványgyapot födémszigeteléssel.
 Homlokzat: Teljes körű hőszigetelés, készre színezett nemesvakolattal.

Az ingatlan teljes közművel ellátott:
víz, villany és csatorna rendelkezésre áll, gázkiállás pedig a telken belül elérhető
________________________________________
A kulcsrakész állapot tartalma:
Felületképzés: Választható padló- és falburkolatok, készre festett falak és elegáns beltéri ajtók.
Gépészet: Modern, energiatakarékos hőszivattyús fűtésrendszer minden helyiségben padlófűtéssel, kiegészítve a hűtést szolgáló fan-coil rendszerrel.
Elektromos szerelvényezés: Komplett kapcsoló- és aljzatkészlet, lámpahelyek és internet-csatlakozási pontok.
Előkészítések: a külső világítás védőcsövezése (későbbi igény szerinti bővítéshez).
________________________________________
Ne hagyja ki ezt a kivételes lehetőséget!
Modern, azonnal költözhető otthon + ajándék konyhabútor egy csomagban.
Érdeklődjön még ma!
SZEGED távolsága 25 km, autóval 22 perc.
Ünnepeljen velünk – ajándék konyhabútor minden áprilisi vásárlónknak! ????
30 éves fennállásunk alkalmából különleges ajánlattal kedveskedünk Önnek!
Ha áprilisban családi házat vásárol nálunk, INGYEN adunk egy beépített, egyedi konyhabútort*!
(*A látványterven szereplő konyhasziget és a gépesítés nem része az ajánlatnak.)
________________________________________
Babaváró igényelhető, CSOK plusz és alacsony kamatozású hitel felvehető a jogszabályi feltételek teljesítése esetén. Az ügyvédi munka és hitelügyintézés szintén szolgáltatásunk része, így Ön sokkal eredményesebben fog célba érni.
Ha bármi kérdése felmerül az ingatlannal kapcsolatban, vagy meg szeretné tekinteni, kérem, hívjon az elérhetőségemen bármikor, engem nem fog zavarni.

Szabó Ernő 30-416-2393
Prémium Ingatlanértékesítő
(További képekért és információkért kérem hívjon!)

Családi ház részletei

Ár: 96 000 000 Ft
Méret: 113 négyzetméter
Azonosító: 11613953
Irodai azonosító: 405472
Telek: 831 négyzetméter
Ingatlan állapota: Kitűnő
Jelleg: családi ház
Építőanyag: Tégla
Fűtés jellege: Cirkó
Egész szobák: 4
Nappalik: 1

Egyéb jellemzők

  • Beépíthető tetőtér
  • Csatorna
  • Garázs
  • Melléképület
  • Pince
  • Terasz

Így keressen családi házat négy egyszerű lépésben. Csupán 2 perc, kötelezettségek nélkül!

Szűkítse a családi házak
listáját
Válassza ki a megfelelő
családi házat
Írjon a hirdetőnek
Várjon a visszahívásra