Eladó családi ház Farmos 38 900 000 Ft

Leírás

Eladó családi ház Farmos csendes részén!

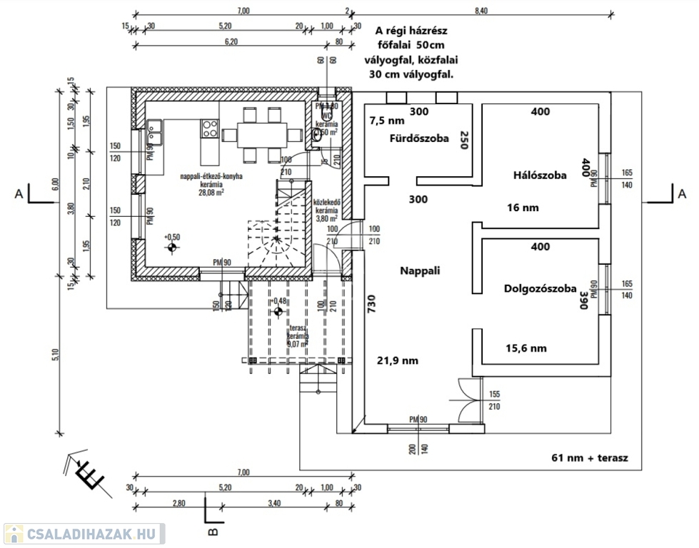
Eladásra kínálunk egy 117 nm-es, családi házat Farmos nyugodt környékén. Az ingatlan vegyes falazatú (vályog és ytong), tágas és kényelmes kialakításának köszönhetően ideális nagyobb család számára is.

✅ Telek mérete: 722 nm
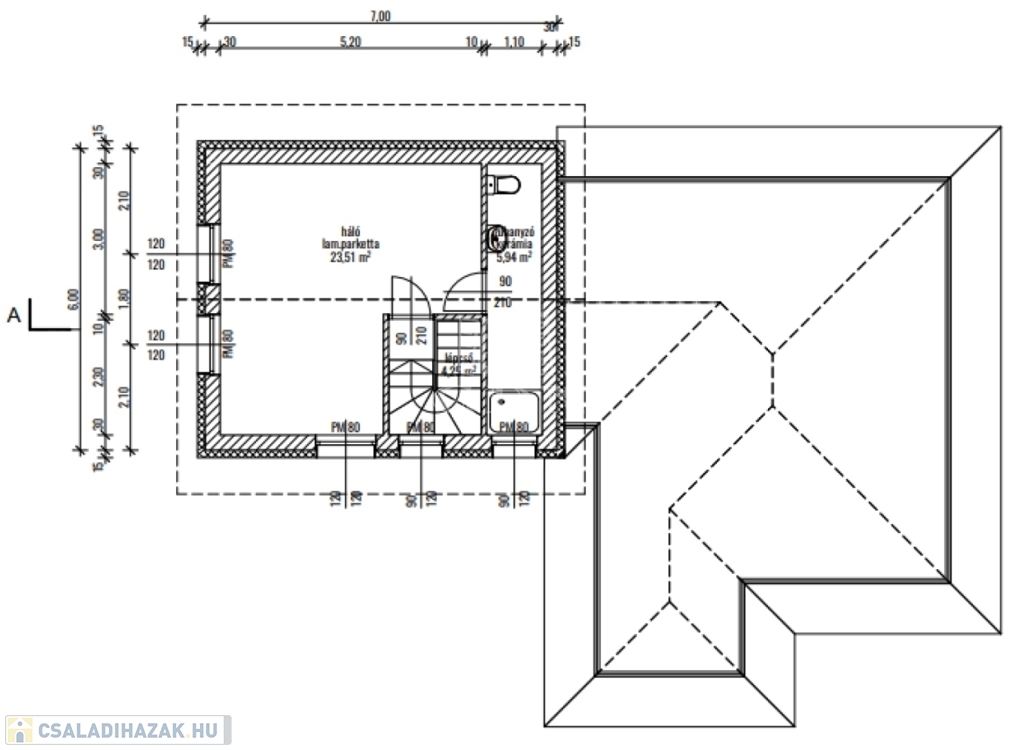
✅Szobák száma: 4
✅Fürdőszobák: 2 + külön WC
✅ Fűtés: Elektromos (a tető napelem fogadására előkészítve)
✅Parkolás: Udvarban 2 autó számára

A régebbi házrész az 1970-es években épült vályogból, míg az új, kétszintes épületrész 2021-ben készült el. Az új rész kívülről még szigetelésre és vakolásra vár, így az új tulajdonos saját igényeire szabhatja.

A hatalmas konyha-étkező kiválóan alkalmas családi összejövetelekre. A telekhez tartozik egy nyári konyha, két tároló és egy pince. A kert gondozását fúrt kút segíti.

✅ Ár: 38.900.000 Ft

Érdeklődni a megadott elérhetőségen lehet.

Családi ház részletei

Ár: 38 900 000 Ft
Méret: 117 négyzetméter
Azonosító: 11508652
Irodai azonosító: 380602
Cím: Farmos csendes részén
Telek: 722 négyzetméter
Ingatlan állapota:
Jelleg: családi ház
Építőanyag: Kérdezzen rá a hirdetőtől »
Fűtés jellege: Villany
Fűtés módja: Villany
Komfort fokozat: Dupla komfort
Kor: 50 évesnél régebbi
Szintek száma: 1 szint
Egész szobák: 4

Egyéb jellemzők

  • Csatorna
  • Garázs
  • Pince
  • Terasz

Térkép


Így keressen családi házat négy egyszerű lépésben. Csupán 2 perc, kötelezettségek nélkül!

Szűkítse a családi házak
listáját
Válassza ki a megfelelő
családi házat
Írjon a hirdetőnek
Várjon a visszahívásra