Eladó családi ház Farkasgyepű 49 800 000 Ft

Leírás


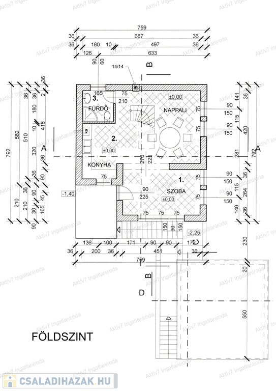
Farkasgyepűn kínálok megvételre egy belterületen, csendes, aszfaltozott utcában, fiatalos környezetben lévő, azonnal költözhető, jól karbantartott, kellemes, tágas lakóterű, nappali és 3 hálószobás, erkélyes, teraszos, tégla építésű, földszint és tetőtér beépítéses, 13 nm szuterénnel bíró családi házat.

Az ingatlan alkalmas családtámogatási hitel felvételére!

A telek 288nm, szellős, zöld felületes, fás. A főépület mellett épült egy kétállásos garázs (26nm) és van egy kis szerszámos tároló is. Az épület fiatalnak mondható, 2007-ben kapta meg a használatbavételi engedélyt. Műszakilag, statikailag megfelelő állapotú, igény szerinti felújításra alkalmas.Az ingatlan összközműves, fűtése jelenleg konvektoros és van fatüzelésű kandalló, a meleg vizet gázbojler biztosítja. Van kémény, kondenzációs kazán beépíthető. A villamos vezetékek rézből vannak, a nyílászárók szigetelt üvegezésűek, a felső szinten eredetiek.

Farkasgyepű a Bakonyban egy kifejezetten csendes, tiszta levegőjű, szép természeti környezetben található. Célpontja lehet annak, aki a nagyvárosi nyüzsgésből kisebb településre, nyugodtabb életre vágyik akár állandó otthonát, akár időszakos pihenőhelyét keresve.Farkasgyepű Veszprémtől 28 km-re, főúton egyszerűen, 10 perc alatt megközelíthető és a Balaton is gyorsan elérhető.

Itt élve állandó hatással van ránk a természet, és ha élünk vele, garantáltan profitálhatunk belőle!

Családi ház részletei

Ár: 49 800 000 Ft
Méret: 91 négyzetméter
Azonosító: 11594639
Irodai azonosító: 675301117
Telek: 288 négyzetméter
Ingatlan állapota:
Jelleg: családi ház
Építőanyag: Tégla
Fűtés jellege: Konvektoros
Komfort fokozat: Összkomfort
Egész szobák: 4

Így keressen családi házat négy egyszerű lépésben. Csupán 2 perc, kötelezettségek nélkül!

Szűkítse a családi házak
listáját
Válassza ki a megfelelő
családi házat
Írjon a hirdetőnek
Várjon a visszahívásra