Eladó családi ház Eszteregnye 62 900 000 Ft

Leírás

Eszteregnye Nagykanizsától mindössze 10 perc autóút távolságra található békés kis falu. Kiváló közlekedési lehetőség a falu elején található M7 autópálya fel- és lehajtó.

Ezen a kiváló adottságokkal rendelkező településen kínálok megvételre egy meseszép környezetben megépített 2 szintes családi házat.

Az ingatlan jellemzői:
- A ház nyugati tájolású, 1989-ben épült, majd 2013-ban kapott 10cm vastag teljes szigetelést, vakolást és színezést.
- A lakóépület és a melléképületek ipari árammal is rendelkeznek.
- Nyílászárói duplaüveges szigetelt fa szerkezetűek.
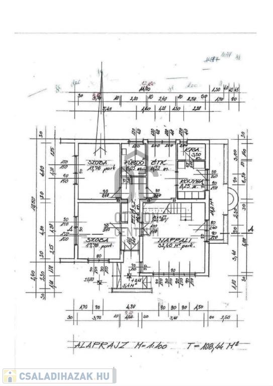
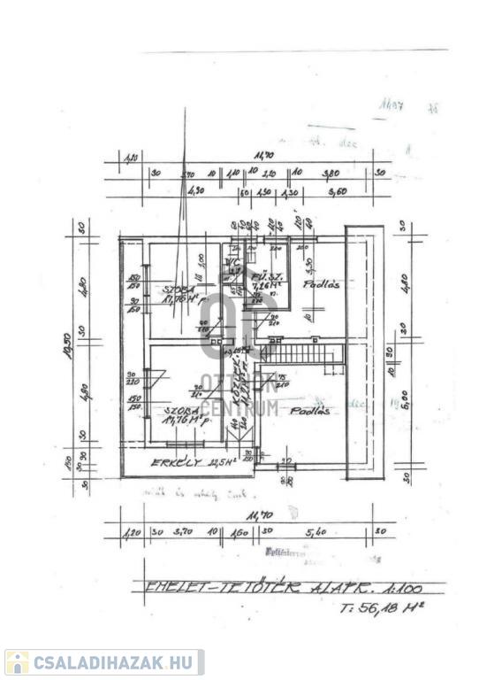
- A ház alapterülete 120m2 földszint és 120m2 emelet, helyiségei: 5 hálószóba, nappali, előszoba, közlekedő, 2 konyha, étkező, 2 fürdőszoba. 2 WC, terasz, erkély.
- Kialakítása lehetővé teszi a többgenerációs együttélést.
- Az udvaron számos raktár, műhely, melléképület és egy garázs található.
- A ház fűtéséről gázkazán és vegyestüzelésű kazán egyaránt gondoskodik.
- Víz, villany, csatorna, gáz az ingatlanba bekötve.
- A telek mérete: 5061m2 - kiválóan alkalmas gazdálkodásra, kút is rendelkezésre áll.
- Számos gyümölcsfa megtalálható a telken: alma, körte, barack, cseresznye, meggy, dió...

Ezt az ingatlant csak ajánlani tudom, hiszen egy tisztasági festés után csak beköltözni kell és igazi paradicsom a gyermekes családok, gazdálkogni vágyók számára is.
Irodánk teljes körű szolgáltatást nyújt kereső ügyfeleinknek, díjmentesen.
Szakszerű tanácsadással, hitel ügyintézéssel, energetikai tanúsítvány elkészítésével és kedvező díjszabású ügyvéddel nyújtunk segítséget!

Családi ház részletei

Ár: 62 900 000 Ft
Méret: 240 négyzetméter
Azonosító: 11317378
Irodai azonosító: H477651-4527566
Telek: 5061 négyzetméter
Ingatlan állapota: Átlagos
Jelleg: családi ház
Építőanyag: Tégla
Fűtés jellege: Egyéb
Kor: 21-50 éves
Szintek száma: Földszintes
Egész szobák: 6

Térkép


Így keressen családi házat négy egyszerű lépésben. Csupán 2 perc, kötelezettségek nélkül!

Szűkítse a családi házak
listáját
Válassza ki a megfelelő
családi házat
Írjon a hirdetőnek
Várjon a visszahívásra