Eladó családi ház Erdőkertes 104 900 000 Ft

Leírás


Erdőkertes csendes, nyugodt részén megbízható referenciákkal rendelkező építő által épülő, nappali + 4 szobás családi ház eladó!

Főbb jellemzők:

- Szerkezet: 90 cm mélyen vasalt beton alap, zsalukő lábazat, 30-as PTH okostégla teherhordó falak, fa födém 25 cm-es ásványgyapot szigeteléssel.

- Hőszigetelés és homlokzat: 15 cm-es külső hőszigetelés, pasztellszínezéssel, lábazat színezett kivitelben.

- Nyílászárók: Fehér, 5 légkamrás, 3 rétegű üvegezésű ablakok.

- Tető: Sötétbarna Bramac cserép hagyományos bádogozással.

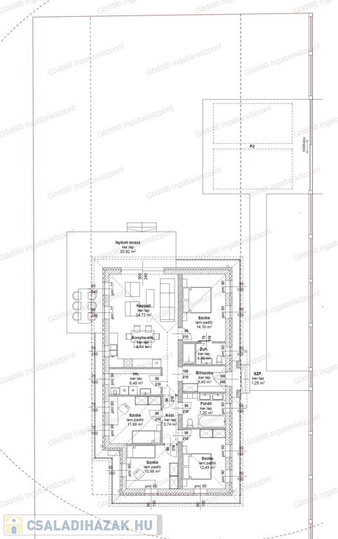
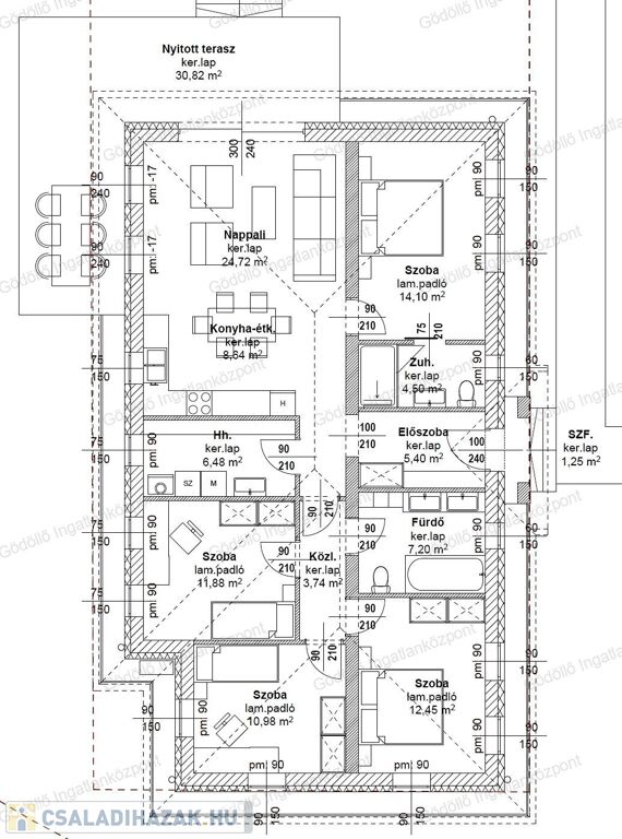
Elosztás: 

- Előszoba, nappali-konyha-étkező, 4 szoba, közlekedő, két fürdőszoba, háztartási helyiség + 30,82nm terasz

Burkolatok:

- Külső terasz és előlépcső választható burkolattal (5.000 Ft/m²).

- Lakáson belül hidegburkolat az előszobában, közlekedőben, konyhában és kamrában 5.500 Ft/m² áron.

- Hálószobák és nappali laminált parkettával (7.000 Ft/m² szegélyléccel).

- Burkolási magasság: fürdőszoba 2,1 m, WC 1,25 m (igény szerint módosítható).

Szaniterek és gépészet:

- Kád, zuhanyzó, csaptelepek és mosdók választhatóak az árlistában feltüntetett keretösszegig.

- Fürdőszobában és WC-ben hideg-meleg vizes mosdó kiépítés.

- Baxi kondenzációs gázkazán a vételárban (350.000 Ft összegig).

Felületképzés és belső ajtók:

- Belső falak kétszeri glettelés és festés, pasztellszínekig.

- Belső ajtók választhatók kilincsel együtt 60.000 Ft-ig.

Villanyszerelés:

- Alapszerelés helyiségenkénti mennyezeti lámpákkal, konnektorokkal, mozgásérzékelős riasztó vezetékezés előkészítve.

- Legrand Niloe típusú szerelvények fehér vagy elefántcsont színben.

Kültér és kerítés:

- Utcafronton Semmerlock betonpillér és deszkázott kerítés.

- Udvar kavicsfeltöltéssel, parkosítás a vevő feladata.

- Bejárati út 1 m széles simított beton.

A ház rugalmasan alakítható a vevő igénye szerint: belső színek, burkolatok, szerelvények egyeztetés után módosíthatók.

Komoly érdeklődés esetén a referencia házak személyesen is megtekinthetők!

Kérésre teljes műszaki tartalmat, alaprajzot szívesen küldünk!

Várható kulcsrakész átadás: 2026. szeptember-október.

A telken található egy 40nm-es, felújított kis ház is, amely igény szerint megmaradhat a telken.

Irányár: 104,9MFt

Hivatkozási szám: 2518270.

Megtekinthető telefonos időpont egyeztetés alapján:

Sápi Balázs +36 20 772-2429 sapibalazs@godolloi.hu 

GÖDÖLLŐ INGATLANKÖZPONT - www.godolloi.hu: Gödöllő és környéke legnagyobb ingatlan választéka /Gödöllő, Szada, Veresegyház, Kistarcsa, Kerepes, Erdőkertes, Fót, Dunakeszi/ eladó-kiadó családi ház, telek, lakás! Ingatlan építés és felújítás!

Családi ház részletei

Ár: 104 900 000 Ft
Méret: 110 négyzetméter
Azonosító: 11603389
Irodai azonosító: 2518270
Telek: 760 négyzetméter
Ingatlan állapota: Kitűnő
Jelleg: családi ház
Építőanyag: Tégla
Fűtés jellege: Központi
Komfort fokozat: Dupla komfort
Kor: Új építésű
Egész szobák: 5

Így keressen családi házat négy egyszerű lépésben. Csupán 2 perc, kötelezettségek nélkül!

Szűkítse a családi házak
listáját
Válassza ki a megfelelő
családi házat
Írjon a hirdetőnek
Várjon a visszahívásra