Eladó családi ház Érd 79 900 000 Ft

Leírás

Családod még mindig otthont keres? Akkor ezt a Csok+ kompatibilis ikerházat mindenképp látnod kell! Átadás 2024 szeptemberében.

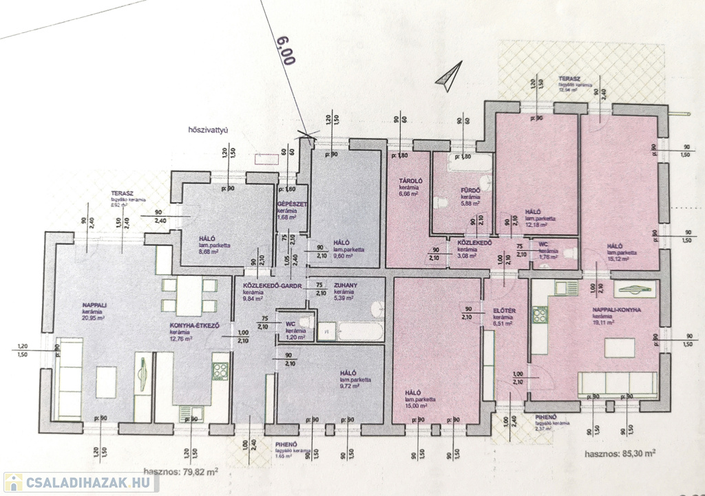
Ez az egy szintes, nettó 85 m-es ikerház nappalival és két szobával rendelkezik. A garázs igény szerint lakószobává alakítható, és még két nyitott beállóhely is tartozik hozzá az udvaron. Az ingatlanhoz 325 m kert tartozik, amely minimális kerti munkát igényel, de a házi kedvenceknek bőven van helyük kijárni.

Érd Parkvárosban található ez a modern, világos és rendkívül tágas ház. Az utca csendes, nem hallani az autópálya zaját, és csak egy közvetlen szomszéd van, ami tökéletes lehet akár összeköltöző családok számára is.

A környék központi elhelyezkedése miatt könnyen elérhető autóval és tömegközlekedéssel is. A városközpont mindössze néhány percnyi autóútra található, és a közeli buszmegállók lehetővé teszik a könnyű közlekedést. A közelben található iskolák, óvodák és boltok pedig mindent biztosítanak, amire szükséged lehet.

Műszaki adatok:
- 30 cm porotherm tégla
- 12 cm szigetelés
- 10 kW hőszivattyú
- Padlófűtés hőszivattyú hő leadókkal
- Hangszigetelt fehér műanyag nyílászárók
- Klíma kiállásokkal
- Előkészített H-Tarifa dobozzal
- Hideg és meleg burkolatok választási lehetőséggel

Ez az ingatlan tökéletes választás lehet egy fiatal felnőtt család számára, akik szeretnének kertvárosi életet élni. Ideális azok számára, akik szeretnék élvezni a modern kényelmet és a csendes, biztonságos környezetet, mindezt gazdaságos fenntartási költségek mellett.

Egyedi igényekre szabott lakáshitelekkel is rendelkezésedre állunk bankfüggetlen tanácsadóinkkal.

Szeretnéd személyesen is megnézni? Ne hagyd ki ezt a remek lehetőséget, vedd fel velem a kapcsolatot telefonon vagy emailben!

Családi ház részletei

Ár: 79 900 000 Ft
Méret: 85 négyzetméter
Azonosító: 11418205
Irodai azonosító: U0046797
Ingatlan állapota: Kérdezzen rá a hirdetőtől »
Jelleg: ikerház
Építőanyag: Tégla
Fűtés jellege: Hőszivattyú
Kor: Új építésű
Egész szobák: 3

Egyéb jellemzők

  • Garázs
  • Terasz

Így keressen családi házat négy egyszerű lépésben. Csupán 2 perc, kötelezettségek nélkül!

Szűkítse a családi házak
listáját
Válassza ki a megfelelő
családi házat
Írjon a hirdetőnek
Várjon a visszahívásra