Eladó családi ház Érd 70 000 000 Ft

Leírás

---ÉRD KEDVELT, ÚJ ÉPITÉSŰ VÁROSRÉSZÉBEN, ÚJ ÉPITÉSÚ IKERHÁZ, HÁTSÓ LAKÁSA, NAGY KERTTEL ---

ÁTADÁS 2025. ÉV VÉGE



KÖRNYÉK:
ÉRD Pest megye legnagyobb települése, Bp-től 10 percnyire található.
Érd kedvelt, új építésű városrészében, Dombosvárosban található az ingatlan.
Az utca csendes, a környék igényes, csak új építésű ingatlanok vannak a környéken.

Infrastruktúrája jó. Környéken minden is megtalálható. Bevásárlási lehetőség, orvos, posta, az új iskola, stb…
Közlekedés: Autóval pár perc az M0 autópálya. Iskolabusz kb 1 km. Bem térről busszal lehet eljutni BP kelenföldi pályaudvarhoz.

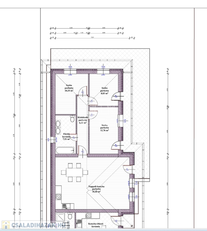
A HÁZ HELYISÉGEI:
- Amerikai konyhás nappali, terasz kapcsolattal
- 3 szoba
- fürdőszoba
- közlekedő
- terasz

MŰSZAKI PARAMÉTEREK
- Hőszivattyús fűtés padlófűtéssel
- Terrán Danubia tetőcserép
- 15 cm külső hőszigetelés, a falazat 30 cm Porotherm tégla
- H tarifa igényelhető

A HÁZ VÉGLEGES BELSÖ KIALAKITÁSA A VEVŐKKEL EGYEZTETVE, EGYEDI IGÉNYEK ALAPJÁN KÉSZÜL EL.
ÖN VÁLASZTHATJA KI A BURKOLATOKAT, BELSŐ NYILÁSZÁRÓKAT, SZANITEREKET, STB.
(A feltüntetett vételár a kulcsrakész állapotra vonatkozik)


A HÁZ 2025 DECEMBERÉRE KÉSZÜL EL! ENNEK ELŐNYE, HOGY MÉG AZ ÉPITKEZÉS KEZDETI FÁZISÁBAN TELJESEN SZEMÉLYRE SZABHATÓ A BELSŐ TÉR.
Jelenleg a főfalak állnak, készül a tetőszerkezet.


A KIVITELEZŐ MEGBÍZHATÓ, LEINFORMÁLHATÓ, TÖBB ÉRDI REFERENCIA INGATLANNAL RENDELKEZIK


AZ INGATLAN MEGVÁSÁRLÁSÁHOZ KÉSZPÉNZES VEVŐKET VÁRUNK.

További információkért és megtekintéssel kapcsolatban, keressen bizalommal!




AMENNYIBEN NEM RENDELKEZIK A TELJES VÉTELÁRRAL, segítünk Önnek megtalálni a legjobb megoldást!
BANKFÜGGETLEN hitelcentrumunk minden elérhető bank és hitelintézet ajánlatát versenyezteti az Ön kedvéért, ráadásul díjmentesen. Önnek nincs más dolga, mint elbeszélgetni munkatársunkkal, aki a hallott információk alapján versenyre hívja a bankokat, hogy Ön hosszú távon is a legjobb konstrukciót kaphassa. A legjobb ajánlatokból végül Ön választhatja ki a nyertest. Munkatársaink sokéves szakmai tapasztalattal várják Önt, előre egyeztetve akár a normál munkaidő után is.

Családi ház részletei

Ár: 70 000 000 Ft
Méret: 82 négyzetméter
Azonosító: 11506144
Irodai azonosító: 380366
Cím: ÉRD - FUNDOKLIA VÖLGY
Telek: 650 négyzetméter
Ingatlan állapota: Kitűnő
Jelleg: ikerház
Építőanyag: Tégla
Fűtés jellege: Geotermikus
Fűtés módja: Hőszivattyú
Komfort fokozat: Dupla komfort
Kor: Új építésű
Szintek száma: Földszintes
Egész szobák: 3
Fél szobák: 1

Egyéb jellemzők

  • Csatorna
  • Garázs
  • Pince
  • Terasz

Térkép


Így keressen családi házat négy egyszerű lépésben. Csupán 2 perc, kötelezettségek nélkül!

Szűkítse a családi házak
listáját
Válassza ki a megfelelő
családi házat
Írjon a hirdetőnek
Várjon a visszahívásra