Eladó családi ház Érd 250 000 000 Ft

Leírás

Kedves Ingatlankereső!!

Ajánlom figyelmébe ezt a LUXUS kivitelű családi házat !!

Olyan kertes házra vágyik,melynek párja nincs a környéken és csak a bőröndöt kell begurítania?
Akkor ne keressen tovább Megtalálta!

A kivitelező törekedett arra,hogy magas minőségű,egyedi kivitelezésű ingatlant alkosson ezen a nem mindennapi környéken!!

Az Ön dolga „csupán” a színek, burkolatok kiválasztása, hogy a munkálatok végeztével valóban otthon érezhesse magát!

A ház – csakúgy, mint a kivitelező számtalan, megtekinthető referencia háza esetében is – magas minőségi anyagok felhasználásával és magas műszaki tartalommal épül.

Mindannyian tudjuk,hogy az otthon nemcsak négy falat,tárgyakat jelent,az otthon menedék.Az az ember ,akinek van hová-és van kihez hazamenni,mindenkor könnyebben viseli az élet konfliktusait,csapásait,feladatait.Az otthon számomra azt is jelenti,hogy valaki meghallgat,valaki velem van!

Meglátni és megszeretni ezzel tudnám jellemezni ezt a jó hangulatú nappali+4 hálószobás körbenapozott,nagy teraszos, garázsos családi házat!

Fontos, hogy az ingatlanvásárlás hosszú távon is értékálló befektetés legyen!

A 207 m2-es, kétszintes LUXUS házhoz 115 m2 terasz, valamint 800 m2 telekterület tartozik. A ház a legmodernebb technológiával készült.

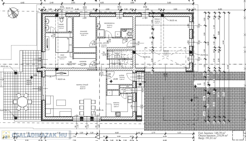
Ház felosztása:
Földszint (109.13nm + dupla garázs + terasz): előtér (6.08nm), konyha (9.51nm) – étkező – nappali (37.26nm), kamra (1.35nm), közlekedő – lépcsőház (7.26nm), wc - zuhanyzó (4.70nm), szoba (10.92nm), mosókonyha (8.48nm), gardrób (4.42nm), fürdő (5.76nm), szoba (13.12nm), garázs (36nm), terasz (24.92nm).

Emelet (62.19nm + 3 db tetőterasz): lépcsőfeljáró (6nm), közlekedő – gardrób (10.25nm), wc (1.98nm), fürdő (6nm), szoba (12nm), szoba (12.98nm), szoba (12.98nm), teraszok (56.64nm, 15.28nm, 6.6nm).



Rövid műszaki leírás:
-sávalap, vízzáró, illetve szigetelt lemezalappal, vasbeton szerkezetű födémek, hőszigetelt téglafalak megerősített rengésálló vasbeton maggal.
-Könnyűbeton tetőszerkezet két rétegű hőszigeteléssel, rejtett vízelvezetéssel. Vasbeton lépcsőszerkezetek.
-Teraszok hőszigetelt monolit vasbetonból.
-külső határoló falak: 30 cm-es bakonytherm tégla + 15 cm hőszigetelés, színezett nemesvakolat.
- belső válaszfalak: 10 cm vastag tégla válaszfal mindkét oldalon vakolva, festve.
-Gépészet: Geotermikus talajszondás, hőszivattyús fűtési és hűtési rendszer (Stiebel Eltron).
-Fűtés-hűtés: mennyezet fűtés, hűtés, illetve padlófűtés gondoskodik a kellemes hőérzetről, mely helyiségenként szabályozható.
-Nyílászárók:szinezettek 3rétegű
-Beltéri ajtók: teli, vagy üvegbetétes ajtók, ajtókerettel.
-Garázs: hőszigetelt elektromos garázsajtó.
-Burkolatok
-Fürdőszobák: kerámia burkolat 210 cm magasságban, felette festett felület.
- Hideg és meleg burkolatok egységesen bruttó 10.000,- Ft/m2-ig választhatók.
- Márványhatású külső és belső párkányok.
-Elektromos berendezések: A lakás áram ellátásához 3 x 16A energia áll rendelkezésre.
-Rejtett redőnytokos, elektromos zsaluziák kerültek kialakításra.
-Szerelvények: Legrand típus, fehér, illetve fehér színben.
-Gyenge áramú rendszerek: antenna: lakásonként 4 db
-Riasztó: Védőcső és előkábelezés, mozgásérzékelők előkábelezése.
-Kert, tereprendezés: gépkocsi beálló Leier burkolattal, illetve az egész épületet körülölelő járda kialakítása.
-A kert egész területe 20 cm termőfölddel feltöltve. 2 db kerti csap kiépítése.

HÍVJON FEL, KÉRJEN EGY IDŐPONTOT, JÖJJÖN, NÉZZE MEG!

Nekem ebben az ingatlanban az elhelyezkedése mellett, a formálhatósága és a benne rejlő rengeteg lehetőség tetszik a legjobban.

Ha Ön is így látja, hívjon, nézze meg, legyen az új tulajdonosa mielőbb!

Nem fogja megbánni!


Szép napot sikeres vásárlást kívánok!

Köszönöm hogy időt szánt a hirdetésemre!

Családi ház részletei

Ár: 250 000 000 Ft
Méret: 207 négyzetméter
Azonosító: 11456791
Telek: 800 négyzetméter
Ingatlan állapota: Átlagos
Jelleg: családi ház
Építőanyag: Kérdezzen rá a hirdetőtől »
Egész szobák: 6

Egyéb jellemzők

  • Csatorna
  • Garázs
  • Kábel TV
  • Melléképület
  • Parketta
  • Pince
  • Terasz

Így keressen családi házat négy egyszerű lépésben. Csupán 2 perc, kötelezettségek nélkül!

Szűkítse a családi házak
listáját
Válassza ki a megfelelő
családi házat
Írjon a hirdetőnek
Várjon a visszahívásra