Eladó családi ház Érd 235 000 000 Ft

Leírás

EXKLÚZÍV ÖNÁLLÓ CSALÁDI HÁZ, KIVÁLÓ INFRASTRUKTÚRÁVAL, ERDŐ KÖZELÉBEN, ZSÁKUTCA VÉGÉBEN!

Igényes ,modern otthonra vágyik,ami alacsony rezsivel fenntartható??

Legyen Ön a tulajdonosa ennek a kiváló elosztású családi háznak!
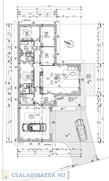
Az ingatlan nettó 198 nm-es 4 szoba, gardrób, nappali-konyha-étkező, két fürdőszoba, dupla garázs kialakítású!

TÖKÉLETES VÁLASZTÁS A NAGYVÁROSOK ZAJÁTÓL TÁVOLI, ENERGIAHATÉKONY ÁLOMOTTHONT KERESŐK SZÁMÁRA!

Szeretné meglepni szeretteit vagy biztonságban tudni a pénzét?

Akkor, ha Ön is így gondolja ajánlanám ezt az ingatlant!

Kérem hívjon, találkozzunk a helyszínen, hogy körbesétálhassunk a nyugodt , szép környezetben épülő ingatlant, alakítsuk ki együtt az Ön és kedves családja igénye szerint!

A házat ajánljuk családosoknak, hiszen itt minden az Állam adta kedvezményt, lehetőséget kihasználhatnak, legyen az Babaváró, CSOK támogatás és hitel is!

Miért ne venné igénybe az Állam adta támogatásokat, lehetőségeket? Döntsön okosan, használja ki amíg lehet!

A ház szinte minden helyén garantált a lakók állandó kapcsolata a természettel, akik minden évszakban élvezni tudják majd a csodálatosan változó tájat. Az ingatlan további előnye a hangulatos teraszok,amely szimbólikus kapocs a belső tér és a kert között.

A környezettel harmóniában lévő kényelmi, valamint a funkcionális megoldások hosszú évekre szóló örök értéket teremtenek. munkálatok:
Alap villanyszerelés tartalma Konektor és kapcsoló(össz. 60db):
Típus: Legrand
Dugalj ára 30db: 2000ft/db
Kapcsoló ára 20db: 2000ft/db,
Tv csatlakozó 4db 2500ft/db,
Telefon-internet csatlakozó 4db: 2500ft/db
termosztát Digitális
Bejárati ajtó: 200.000,- Ft
Beltéri ajtók: 70.000,- Ft/db

Ablak párkányok: külső: mészkő párkány ; belül: mészkő párkány
Külső nyílászárók hőszigetelt, bukó-nyíló nyílászárók kívül barna színben belül
fehér (műanyag), 3 rétegű üvegezéssel 5 légkamrás. /Kömmerling/
Ablakok aluminium redőnyökkel szúnyogháló val
felszerelve.motorizálva.vízesblokkok kisablakok fixszúnyoghálók és nem
automatizált redőnyök
Bejárati ajtó: több ponton záródó biztonsági barna műanyag.
Víz-és fűtésszerelés:
Panasonic 3 fázis 12kwT-CAP split levegő/víz hőszivattyű
Padlófűtés minden helyiségben
Mennyezet hűtés:Nappali konyha, hálószobák
Szaniterek: Alföldi porcelán
Csaptelepek: Hansgrohe
Szaniter árak:
- Alkaplast szerelt-burkolt WC tartály hozzátartozó wc csészével 95.000.-
/db
- Kismosdó+csaptelep: 25.000.- /Darab
- Nagy mosdó+csaptelep: 35.000.- /Darab
- Épített Zuhanyzó 1m x0,90cm+ csaptelep 75.000.- Ft
- Kád+leeresztő szifon+kádláb: 95.000,- Ft + csaptelep 20.000,- Ft
A szerelvények, és szaniter áruk felszerelését, beüzemelését a vételár tartalmazza.
A fürdő és mosókonyhai tükröket,szekrényeket polcokat valamint a konyhai
csaptelepet az alapár nem tartalmazza.
Vevőnek lehetősége van mindennemű szaniter áru egyéni beszerzésére Eladóval
történő előzetes egyeztetés alapján. Eladó az előzőekben vállalt összegeket Vevő
részére kifizeti, Eladó nevére kiállított számla ellenében.

Festési munkálatok:
Falfelületek festési munkálatai kétszeri gletteléssel, két réteg diszperziós
falfestékkel történnek igény szerint választható színben.
Az épület külső hőszigetelése miatt az első évben napi 3-szori szellőztetés
szükséges.
Burkolási munkálatok:
Eladó a hideg és melegburkolatok anyagköltségét összesen 9.000,-
Ft/m2-ig , a meleg burkolatok anyagköltségét (Laminált lap,
szegélyléc+tartozékai)9.000.- forint/m2-ig állja.
A fürdőben és a wc-ben 210 cm-es magasságig kerülnek felhelyezésre vagy
ahogyan egész lapra kijön.
Burkolatok m2 árában nincs benne a bordűrök, dekorlapok ára.
Hidegburkolati helyiségek: fürdő, wc, kamra mosókonyha garázs, , teraszok
(teraszon csúszásmentes kültéri burkolóanyaggal)
Meleg burkolati helyiségek: hálószobák, nappali konyha közlekedő folyosó
Homlokzati szigetelés:Normál 20 cm-es hőszigetelő dryvit rendszer.
Falazat: 30-as Porotherm dryfix síkracsiszolt ragasztott tégla.
Födém: földszint feletti monolit vasbetonfödém ..
Kerítés:
Utcafronti: Beton alapon zsalukő lábazat + oszlopok, vakolva, színezve.
Oszlopok között zártszelvényre szerelt fémpálca, festve. Az elektromos kapuhoz
elektronika kiépítés.motorizálva.
Nem utcafronti: Meglévő kerítésrendszer.eredeti jelenlegi állapotban.telken
belűl ú-alakban szomszédok felé
Riasztó: előkészítés benne van az árban csak becsövezés kábel behúzás nélkül.
Gépkocsi bejárat garázsig Viacolorozva
Járda a garázstól a bejárati ajtóig viacolorozva
Kert: Sitt eltakarítása, durva tereprendezés
Extrák kérhetők felár ellenében.pl:drágább burkolatok,viacolor,betonozások stb.

Várom megtisztelő hívását, hogy mielőbb megmutathassam, ezt a gyönyörű környezetben épülő házat!

Családi ház részletei

Ár: 235 000 000 Ft
Méret: 232 négyzetméter
Azonosító: 11545602
Cím: Fenyves-parkváros
Telek: 1282 négyzetméter
Ingatlan állapota: Kitűnő
Jelleg: családi ház
Építőanyag: Kérdezzen rá a hirdetőtől »
Egész szobák: 5
Fél szobák: 1

Egyéb jellemzők

  • Csatorna
  • Garázs
  • Kábel TV
  • Melléképület
  • Parketta
  • Pince
  • Terasz

Így keressen családi házat négy egyszerű lépésben. Csupán 2 perc, kötelezettségek nélkül!

Szűkítse a családi házak
listáját
Válassza ki a megfelelő
családi házat
Írjon a hirdetőnek
Várjon a visszahívásra