Eladó családi ház Érd 230 000 000 Ft

Leírás

Érd egyik legszebb részén kínálom eladásra ezt az luxus családiházat!

Ha gyönyörű,barátságos otthonos életteret keres,jöjjön és nézze meg ezt az ingatlant!

Az Otthon megtalálása egy Jó érzés, amikor megérkezik és megszületik a döntés, ami valóban majd egy Új Életre ad lehetőséget és egy Új Otthont jelent.

Fontos, hogy az ingatlanvásárlás hosszú távon is értékálló befektetés legyen!

A kivitelező törekszik arra,hogy magas minőségű,egyedi kivitelezésű ingatlant alkosson ezen a nem mindennapi környéken!

Az Ön dolga „csupán” a színek, burkolatok kiválasztása, hogy a munkálatok végeztével valóban otthon érezhesse magát!

Mindannyian tudjuk,hogy az otthon nemcsak négy falat,tárgyakat jelent,az otthon menedék.Az az ember ,akinek van hová-és van kihez hazamenni,mindenkor könnyebben viseli az élet konfliktusait,csapásait,feladatait.Az otthon számomra azt is jelenti,hogy valaki meghallgat,valaki velem van!

Műszaki leírás:
- SZIGETELÉS: 20,0 cm vastagságban Dryvit rendszerű grafit hőszigetelés
- FŐFALAK: 30 cm PTH falazat
- VÁLASZFALAK: 10 cm-es kerámia Leier falazóblokk
- FÖDÉM: a födém E gerendás födém kerámia béléstestekkel
- TETŐ: lapostető
- NYÍLÁSZÁROK: 3 rétegű üveges 7 légkamrás, ALUPLAST, belül fehér, kívül
antracit erezetes. Redőnyök elektromosak.
- GARÁZSAJTÓ: szekcionált automatikus nyitással
- KAPUBEJÁRAT: elektromos nyitású
- VÍZHÁLÓZAT: csővezetékei ötrétegű csövek felhasználásával kerülnek
kialakításra. A konyhában 1
db mosogató és 1 db mosogatógép csatlakozással, a fürdő helyiségekben 1
db zuhanyzó vagy 1 db kád,
1 db mosdó, 1 db mosógép kiállással. WC-ben 1 db öblítőtartály, 1 db
kézmosó kiállással.
-Minden kiálláshoz tartozik egy elzárószelep és természetesen a csapok és
tartályok elhelyezése a szaniterek beépítésével együtt.
- FÜRDŐSZOBA: mosdókagyló 30.000 Ft, kád 60.000 Ft vagy épített
zuhanykabin (külön egyeztetést igényel).
- WC: 30.000 Ft
- BELTÉRI AJTÓK: 200.000 Ft
- SZANITEREK: Csaptelep a WC-ben és a fürdőben 30.000 Ft. Kád és a
zuhanyszett 40.000 Ft.
- FŰTÉS: hőszivattyú 9 kW, minden helyiségben padló-fűtés , 4 db digitális termosztát, törülközőszárító radiátorok
a fürdőszobában,
- HIDEGBURKOLAT: 8.000 Ft/m2 áron, a fürdőben és a WC-ben 2,1 m azaz
ajtómagasságig
burkolva. Bordűr és díszcsík nincs az árban. A lerakási technológiát és
az alkalmazandó segédanyagokat mindig a felhasznált burkolat milyensége, minősége és mérete dönti el. Fürdőben a burkolat alatt vízszigetelés.
- MELEGBURKOLAT: 5.000 FT/m2 (szegélyléc és a szigetelés, fólia az alap
vételár része)
- TERASZ: kültéri hidegburkolat 10.000Ft/m2
- FALFESTÉS: belül fehér.
- ERŐSÁRAMÚ RENDSZEREK: Az elektromos hálózat kiépítésénél minden
esetben alkalmazunk,ún. FI érintésvédelmi relét a biztosíték táblán elhelyezve. A gerincek mentén 2,5 mm-es Cu, a leágazásoknál 1.5mm-es Cu vezeték kerül gégecsőben elhelyezve.
-Szobákban kialakításra kerül 1 db világítótest lekötés, 1 db kapcsoló, 4 db dugaszoló aljzat
-Fürdőben 2db dugaszoló aljzat. Konyhában +
nappaliban 6-6 db dugaszoló aljzat (Legrand Niloé).
-Nappaliban,konyhában 5 világítótest lekötés és
2/2 kapcsoló. Az épület külső megvilágítása általában a bejárati ajtó
körül és a sarkokon kerül
kialakításra. Kültéri dugaszolóaljzat és kapcsoló 1-1 darab.
- VILLAMOS ELLÁTOTTSÁG: min. 3x16A
- GYENGEÁRAMÚ RENDSZEREK: kaputelefon, internet, antennavezeték
becsövezve
- KERÍTÉS: utcafronti: zsalukő (színezve) + WPC kerítéselemekkel, a
telek oldalhatáros kerítése (jobb
oldal), műanyag bevonatos drótkerítéssel kerítve
- UTAK: garázsból az útig térkő, lépcsőtől a személybejárati kapuig
térkő
- JÁRDA: az épület körüli járdák térkő
- KERT: teljes tereprendezés, előkert, felső kert hagyományos
füvesítéssel

HÍVJON FEL, KÉRJEN EGY IDŐPONTOT, JÖJJÖN, NÉZZE MEG!

Nekem ebben az ingatlanban az elhelyezkedése mellett, az egyedi kialakítása, formálhatósága és a benne rejlő rengeteg lehetőség tetszik a legjobban.

Ha Ön is így látja, hívjon, nézze meg, legyen az új tulajdonosa mielőbb!

Nem fogja megbánni!


Szép napot sikeres vásárlást kívánok!

Köszönöm hogy időt szánt a hirdetésemre!

Családi ház részletei

Ár: 230 000 000 Ft
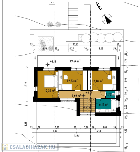
Méret: 175 négyzetméter
Azonosító: 11456815
Cím: Érd-liget
Telek: 800 négyzetméter
Ingatlan állapota: Átlagos
Jelleg: családi ház
Építőanyag: Kérdezzen rá a hirdetőtől »
Szintek száma: 2 szint
Egész szobák: 5

Egyéb jellemzők

  • Csatorna
  • Garázs
  • Kábel TV
  • Melléképület
  • Parketta
  • Pince
  • Terasz

Így keressen családi házat négy egyszerű lépésben. Csupán 2 perc, kötelezettségek nélkül!

Szűkítse a családi házak
listáját
Válassza ki a megfelelő
családi házat
Írjon a hirdetőnek
Várjon a visszahívásra