Eladó családi ház Érd 199 000 000 Ft

Leírás


ÖRÖKPANORÁMÁS, ÚJ ÉPÍTÉSŰ LUXUS CSALÁDI HÁZ ELADÓ ÉRD - DIÓSD HATÁRÁN

Képzelje el, hogy minden reggel a LENYŰGÖZŐ PANORÁMÁBAN ébredhet!

 

Eladó egy PRÉMIUM kategóriás családi ház Érd és Diósd határán ősfás környezetben Érd egyik legkeresettebb, csendes részén új építésű házakkal körülvett részén.

 

Ez a 150 nm-es, nappali + 5 szobás LUXUSOTTHON a legmodernebb technológiával és prémium minőségű anyagokkal épült, hogy a legmagasabb kényelmet és időtállóságot biztosítsa.

Minden részletében a LUXUST, a PRÉMIUM ÉLETMINŐSÉGET képviseli.

 

FŐBB JELLEMZŐK:

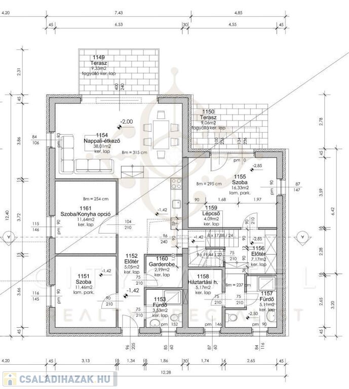
150 nm lakótér + 101 nm terasz Nappali + 5 szoba – tágas, világos terek 3 fürdőszoba – prémium minőségű szaniterekkel

Háztartási helyiség és gardrób – praktikus tárolási megoldások Különálló tároló és autóbeálló

Földszint: 110,55 nm lakótér, 9,06 nm és 9,33 nm terasz

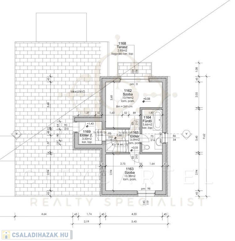
Emelet: 40 nm lakótér, 2,85 nm terasz 80 nm-es panorámaterasz – lélegzetelállító kilátás

 

 CSÚCSTECHNOLÓGIÁS MŰSZAKI MEGOLDÁSOK:

A+ energetikai besorolás – alacsony rezsiköltség

Hőszivattyús fűtési rendszer – környezetbarát és fenntartható

Padlófűtés + Fan Coil hűtő-fűtő rendszer – maximális komfort egész évben

Prémium építőanyagok – időtálló minőség

 

NYÍLÁSZÁRÓK:

INTERNORM 3 rétegű alumínium ablakok – kiemelkedő hő- és hangszigetelés

I-tec üvegezés – csúcskategóriás hőszigetelési és biztonsági megoldások

Prémium beltéri ajtók és biztonsági bejárati ajtó

 

BURKOLAT ÉS FELSZERELTSÉG:

I. osztályú olasz és spanyol hideg- és melegburkolatok 2 cm vastag design kőburkolat a teraszokon Exkluzív spanyol-olasz kerámiapadló a fürdőszobákban Fujitsu Waterstage High Power rendszer – energiatakarékos melegvíz ellátás GROHE prémium csaptelepek és zuhanyzók

 

ELHELYZKEDÉS ÉS INFRASTRUKTÚRA:

Az ingatlan kellemes, csendes, forgalomtól mentes utcában található, mégis remek közlekedési és infrastrukturális adottságokkal rendelkezik.

Pár perc sétára: új általános iskola, óvoda, bölcsőde, játszótér

Autóval 5-6 perc: Interspar, Lidl, üzletek, gyógyszertár, posta, éttermek, benzinkút.

Budapest irányába gyors közlekedés biztosít az autópályán történő közlekedés lehetősége.

 

FINANSZÍROZÁSI LEHETŐSÉGEK:

CSOK PLUSZ igényelhető – kedvezményes, fix 3%-os hitellel és illetékmentességgel vásárolható meg Bankfüggetlen hitelszakértőnk ingyenesen segít Önnek a legjobb finanszírozási megoldások megtalálásában!

Részletes műszaki tartalommal és helyszíni megtekintéssel kapcsolatban keressenek bizalommal.

 

Részletes műszaki tartalommal és helyszíni megtekintéssel kapcsolatban keressenek bizalommal.



A két családi házból az egyik már értékesítésre került, a másik pedig 95%-os készültségi állapotban van. Belső kialakításnál a konyha elhelyezése és hálószobák számának változtatása opcionális.



A vételár magában foglalja a kulcsrakész épületet, választható burkolatokkal, elektromos tolókapuval, két autóbeállóval és kerti tárolóval.

 

 

Ne hagyja ki ezt az egyedülálló lehetőséget!

 

IRÁNYÁR: 199 M Ft

 

Jöjjön el, nézze meg személyesen, és tapasztalja meg, hogyan valósul meg a luxus és a minőség tökéletes harmóniája.

 

ÜDVÖZLETTEL:

BACSA BRIGITTA

INGATLANSZAKÉRTŐ - REALTY SPECIALIST

+36 30 815 2512

B.BRIGITTA@CITYCARTEL.HU

 

CITY CARTEL BUDA KFT.

CITY CARTEL FRANCHISE HUNGARY KFT.

1118 BUDAPEST, HEGYALJA ÚT 54.

1026 BUDAPEST, SZILÁGYI ERZSÉBET FASOR 121.

BUDAGYÖNGYE BEVÁSÁRLÓKÖZPONT

WWW.CITYCARTEL.HU

 

Családi ház részletei

Ár: 199 000 000 Ft
Méret: 150 négyzetméter
Azonosító: 11531254
Irodai azonosító: 10825049
Telek: 557 négyzetméter
Ingatlan állapota: Kitűnő
Jelleg: családi ház
Építőanyag: Tégla
Komfort fokozat: Dupla komfort
Kor: Új építésű
Egész szobák: 6

Így keressen családi házat négy egyszerű lépésben. Csupán 2 perc, kötelezettségek nélkül!

Szűkítse a családi házak
listáját
Válassza ki a megfelelő
családi házat
Írjon a hirdetőnek
Várjon a visszahívásra