Eladó családi ház Érd 198 000 000 Ft

Leírás

Kedves Ingatlankereső!!!

Ajánlom figyelmébe ezt a LUXUS kivitelű családi házat!!

Ha gyönyörű,barátságos otthonos életteret keres,jöjjön és nézze meg ezt az ingatlant!

Igazi ritkaság a piacon!

Az Otthon megtalálása egy Jó érzés, amikor megérkezik és megszületik a döntés, ami valóban majd egy Új Életre ad lehetőséget és egy Új Otthont jelent.

Fontos, hogy az ingatlanvásárlás hosszú távon is értékálló befektetés legyen!

A kivitelező törekszik arra,hogy magas minőségű,egyedi kivitelezésű ingatlant alkosson ezen a nem mindennapi környéken!!

Az Ön dolga „csupán” a színek, burkolatok kiválasztása, hogy a munkálatok végeztével valóban otthon érezhesse magát!

Az ingatlan felosztása:

Földszint (nettó 99.57nm + teraszok): 2 db. elő-lépcső (3.21nm, 1.94nm), előszoba (5.38nm), nappali-étkező (42.97nm), konyha (7.83nm), kamra (1.39nm), közlekedő (2.21nm), zuhanyzó + wc (4.73nm), szoba (13.14nm), garázs (21.92nm), terasz (19.45nm).

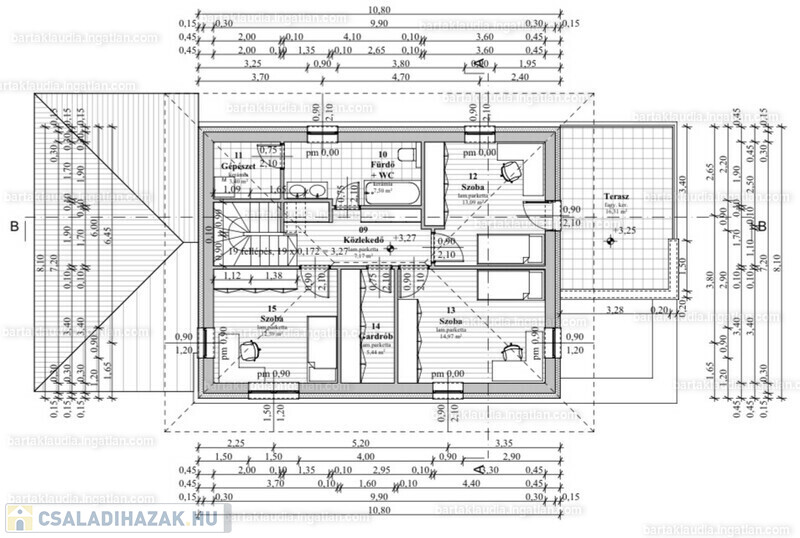
Emelet (nettó 64.18nm + terasz): közlekedő (7.17nm), fürdőszoba + wc (7.5nm), gépészet (3.42nm), 3 szoba (13.09nm, 14.97nm, 12.59nm), gardrób (5.44nm), terasz (14.74nm).

Rövid műszaki leírás:
- Beton alap
- Bakonytherm 30-as tégla főfalak
-15cm dryvit szigetelés
- lábazaton 10cm hőszigetelés
- A külső nyílászárók műanyag szerkezetűek, fokozott, 3 rétegű üvegezéssel, kívül Antracit, belül fehér színben.
- Beépített tokos redőnyök és szúnyogháló, földszinten motoros kivitelben.
- Fekete színű Terran cserép fedésű tető, színezett bádogozással.
-Fűtés és meleg víz ellátás: Az ingatlan fűtése és meleg víz ellátása 16Kw-os hőszivattyúról (LG Therma) gondoskodik, minden helyiségben padlófűtéssel, illetve tartalék fűtésként és hűtésre egy split klíma kerül felszerelésre.
- A vételár tartalmazza a napelem kiépítést.
- Az épületben kiépítésre kerül egy hővisszanyerős (Ubbink Vigor), páraszabályzós lakásszellőztető rendszer is!

-Extrák: elektromos kis-és nagykapu, elektromos garázsajtó, kaputelefon, riasztó, klíma, napelem, elektromos redőny + szúnyogháló, falazott kerítés.

Mind ez csak ízelítő!


HÍVJON FEL, KÉRJEN EGY IDŐPONTOT, JÖJJÖN, NÉZZE MEG!


Ha Ön is így látja, hívjon, nézze meg, legyen az új tulajdonosa mielőbb!

Nem fogja megbánni!


Szép napot sikeres vásárlást kívánok!

Köszönöm hogy időt szánt a hirdetésemre!





Családi ház részletei

Ár: 198 000 000 Ft
Méret: 216 négyzetméter
Azonosító: 11456814
Telek: 645 négyzetméter
Ingatlan állapota: Átlagos
Jelleg: családi ház
Építőanyag: Kérdezzen rá a hirdetőtől »
Szintek száma: 2 szint
Egész szobák: 5

Egyéb jellemzők

  • Csatorna
  • Garázs
  • Kábel TV
  • Melléképület
  • Parketta
  • Pince
  • Terasz

Így keressen családi házat négy egyszerű lépésben. Csupán 2 perc, kötelezettségek nélkül!

Szűkítse a családi házak
listáját
Válassza ki a megfelelő
családi házat
Írjon a hirdetőnek
Várjon a visszahívásra