Eladó családi ház Érd 189 900 000 Ft

Leírás

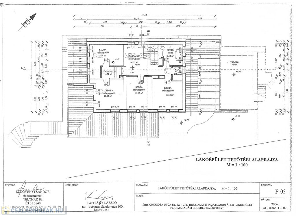
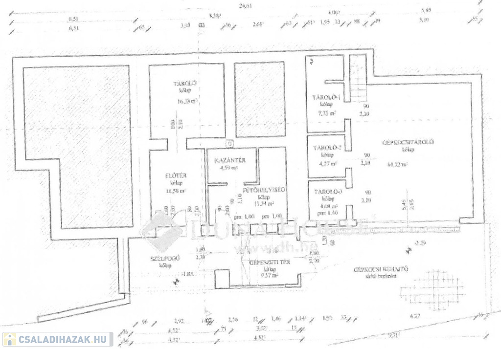
Megvételre kínálok Érden, kitűnő helyen, Érdliget csendes, szinte forgalomtól mentes utcájában, családi házas övezetben, 940 nm alapterületű önálló telken álló, 2007-ben épült 3 szintes, pincézett, 5 egész szobás, 2 fürdőszobás, 360 nm-es, kitűnő állapotú karbantartott, rugalmasan költözhető állapotú, körbejárható, kiváló elosztású, világos, nagyméretű szobákkal, tágas terekkel kialakított családi házat, hőszivattyús Fan-coil rendszerrel, beépített kandallóval, medencével, 2 gépkocsi számára alkalmas garázzsal, plusz tárolókkal, rendezett kerttel és udvarral, több szinteltolás megvalósításával, a terep adottságainak kihasználásával dinamikus, modern megjelenéssel.

Építési műszaki leírás hamarosan...

Az ingatlant tágas terekkel tervezték és építették, DNy-i fekvésének és a sok nyílászárónak köszönhetően nagyon világos és kellemes, családias hangulat jellemzi.

Műszaki állapot: a házban a nyílászárók minden szinten több rétegű méretre gyártott korszerű műanyag ablakok. Minőségi hőszivattyús fűtésrendszer a Fan-coil rendszerrel kombinálva gondoskodik a kellő hőérzetről télen-nyáron. A fűtés átalánydíja jelenleg 92.000 Ft-os havi díjra lett beállítva, ami akár lényegesen kevesebbre is kihozható. A többi fogyasztás a mérőórákkal mérés alapján történik, az ingatlan méretéhez képest gazdaságos rezsiköltséggel.

Környék: Érden fiatal családi házas övezetében helyezkedik el. Iskola, óvoda, bevásárlási lehetőségek, orvos, patika, játszótér néhány perc alatt elérhető, mind a közelben megtalálható.

Elsősorban családosok, és nagycsaládosok, igényes vásárlók figyelmébe ajánlom, akiknek fontos kiváló műszaki tartalom, a nyugodt, csendes környezet, és akik a térségben, Érden vagy környékén modern, nagyméretű, tágas és világos, kertes házra vágynak nagy nyílászárókkal, tolóajtókkal, melyet saját ízlésük szerint tudnak berendezni, akár saját vállalkozást is ki lehet alakítani az alsó szinten, illetve több generáció együtt élésére is alkalmas tud lenni.

Az ingatlan a vételár kifizetését követően rugalmasan birtokba vehető.

Adatkezelés
Ezúton tájékoztatjuk, hogy Ön mint érdeklődő, a hirdetésben megjelölt telefonszám felhívásával hozzájárul személyes adatai – így különösen neve és telefonszáma -, a hirdetést feladó FORTISElit Ingatlan Kft. általi - biztonságos és körültekintő - kezeléséhez, nyilvántartásához. E körben, keresse a FORTISELIT ingatlaniroda weboldalát adatkezelési tájékoztatót.

We hereby inform you that You as an interested party, by calling the phone number mentioned in the advertisement, contribute to be your personal data – especially your name and phone number – handled and recorded safe and circumspectively by FORTISElit Ingatlan Kft as advertiser. Hereby, you can learn our Privacy Policy.

Finanszírozás:
Adatbázisunkban további több ezer ingatlanból választhat, hívjon bizalommal, hogy megtaláljuk a legmegfelelőbbet!
Hitelre van szüksége? Teljes körű és díjmentes hitel-ügyintézéssel, biztosításkötéssel áll rendelkezésére szakértő kollégánk. Kérje személyre szabott ajánlatunkat!

Családi ház részletei

Ár: 189 900 000 Ft
Méret: 360 négyzetméter
Azonosító: 11600081
Irodai azonosító: 348019
Telek: 940 négyzetméter
Ingatlan állapota:
Jelleg: családi ház
Építőanyag: Tégla
Fűtés jellege: Egyéb
Komfort fokozat: Összkomfort
Egész szobák: 5

Egyéb jellemzők

  • Garázs
  • Terasz

Így keressen családi házat négy egyszerű lépésben. Csupán 2 perc, kötelezettségek nélkül!

Szűkítse a családi házak
listáját
Válassza ki a megfelelő
családi házat
Írjon a hirdetőnek
Várjon a visszahívásra