Eladó családi ház Érd 159 900 000 Ft

Leírás

Kedves Ingatlankereső!

Ajánlom figyelmébe ezt a Hőszivattyús Családi házat!!

Az Otthon megtalálása egy Jó érzés, amikor megérkezik és megszületik a döntés, ami valóban majd egy Új Életre ad lehetőséget és egy Új Otthont jelent.

Fontos, hogy az ingatlanvásárlás hosszú távon is értékálló befektetés legyen!

Az Ön dolga „csupán” a színek, burkolatok kiválasztása, hogy a munkálatok végeztével valóban otthon érezhesse magát!

A beépített anyagok minőségének és a korszerű technológiának köszönhetően az ingatlan energiatakarékos, gazdaságosan üzemeltethető.

A kivitelező törekszik arra,hogy magas minőségű,egyedi kivitelezésű ingatlant alkosson ezen a nem mindennapi környéken!!

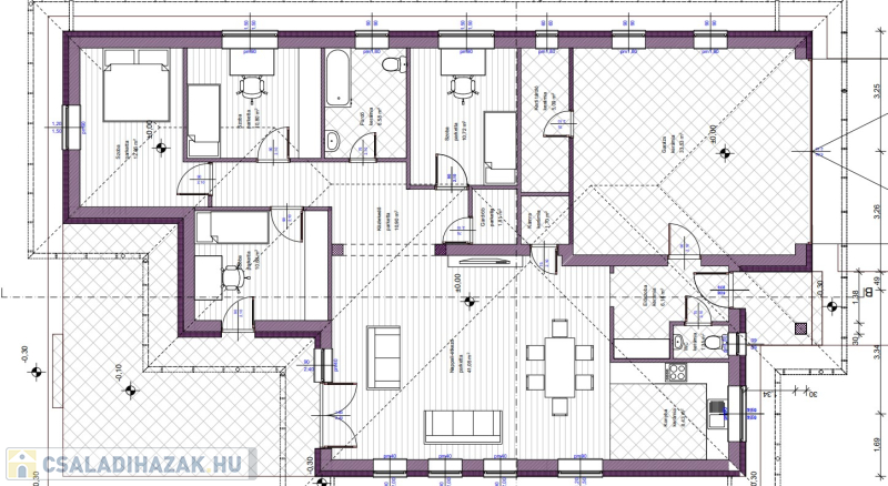
Az ingatlan egy 943 nm telekre kerül kivitelezésre!

Az ingatlan bruttó 162nm-es ,ebből a garázs 33,53nm-es,a lakórész 128,13nm.

Rövid műszaki leírás:
-30-as téglafal
-15cm szigetelés
-30cm tetőszigetelés
-műanyag nyílászárók redőnnyel szúnyoghálóval
-hőszivattyús fűtésrendszer
-burkolatok 8 000 ft/nm áron
-beltéri ajtók 70 000 ft/db
-elektromos garázsajtó
-elektromos nagykapu
-klíma
-H tarifa

Ajánlom:
Ajánlom mindazon 1-2 gyerekes házaspároknak, pároknak, nyugdíjasoknak akik egy igazán kiváló, jól megközelíthető, jó adottságokkal rendelkező, csendes, nyugodt helyen szeretnék élni a mindennapjaikat. Ha szeretne kiszabadulni a városi körforgásból, de mégsem akar végleg elszakadni tőle, akkor a legjobb választás ez a környék, ahol az ébredés után saját teraszán kortyolhatja a reggeli kávéját, szippanthatja magába a friss levegőt és hallgathatja a madarak csicsergését.


HÍVJON FEL, KÉRJEN EGY IDŐPONTOT, JÖJJÖN, NÉZZE MEG!

Nekem ebben az ingatlanban az elhelyezkedése mellett, a formálhatósága és a benne rejlő rengeteg lehetőség tetszik a legjobban.

Ha Ön is így látja, hívjon, nézze meg, legyen az új tulajdonosa mielőbb!

Nem fogja megbánni!


Szép napot sikeres vásárlást kívánok!

Köszönöm hogy időt szánt a hirdetésemre!

Családi ház részletei

Ár: 159 900 000 Ft
Méret: 162 négyzetméter
Azonosító: 11551625
Telek: 943 négyzetméter
Ingatlan állapota: Kitűnő
Jelleg: családi ház
Építőanyag: Kérdezzen rá a hirdetőtől »
Egész szobák: 5

Egyéb jellemzők

  • Csatorna
  • Garázs
  • Kábel TV
  • Melléképület
  • Parketta
  • Pince
  • Terasz

Így keressen családi házat négy egyszerű lépésben. Csupán 2 perc, kötelezettségek nélkül!

Szűkítse a családi házak
listáját
Válassza ki a megfelelő
családi házat
Írjon a hirdetőnek
Várjon a visszahívásra