Eladó családi ház Érd 135 900 000 Ft

Leírás

FENYVES-PARKVÁROSBAN,EGYEDI TERVEZÉSŰ, ÖNÁLLÓ CSALÁDI HÁZ, DUPLA GARÁZZSAL, KIMAGASLÓAN NAGY TELEKKEL!

Ajánlom figyelmébe, ezt az önálló családi házat,minőségi kivitelezésben!

Az ingatlanoknak mérete és ára van, az otthon igazi értéke viszont felbecsülhetetlen! Mi ezért - az értékbecsléstől a birtokbaadásig - végigkísérünk az ingatlan adásvétel folyamatán, hogy anyagi, jogi és érzelmi biztonságban legyél!

Szívügyünk az otthonod!

JÖJJENEK, NÉZZENEK KÖRÜL, HOGYAN IS RENDEZNÉK BE AZ ÖNÖK IGÉNYEI SZERINT SZÉP OTTHONNÁ!!

Kérem hívjon, találkozzunk a helyszínen, hogy körbesétálhassunk a nyugodt , szép környezetben megépülő ingatlant, alakítsuk ki együtt az Ön és kedves családja szép új otthonát :)

A kivitelező törekszik arra,hogy magas minőségű,egyedi kivitelezésű ingatlant alkosson.

A ház – csakúgy, mint a kivitelező számtalan, megtekinthető referencia háza esetében is – minőségi anyagok felhasználásával és erős műszaki tartalommal épül.

A házat ajánljuk családosoknak, akár kétgenerációnak is alkalmas!

Rövid műszaki leírás:
- gépészet, padlófűtéssel, hőszivattyúval
-3 rétegű, 6 légkamrás, műanyag nyílászárók,
-30-as tégla falak
-10cm tégla válaszfalak
-beton cserép fedés
-beépített wc
-elektromos garázskapu
-15 cm külső homlokzati szigetelés

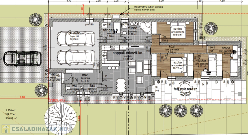
Nettó, terasz nélkül 140nm-es+ 20 nm-es terasz!

Mindez csak ízelítő!

HÍVJON FEL, KÉRJEN EGY IDŐPONTOT, JÖJJÖN, NÉZZE MEG!

Nekem ebben az ingatlanban az elhelyezkedése mellett, a formálhatósága és a benne rejlő rengeteg lehetőség tetszik a legjobban.

Ha Ön is így látja, hívjon, nézze meg, legyen az új tulajdonosa mielőbb!

Nem fogja megbánni!

Szép napot sikeres vásárlást kívánok!

Köszönöm, hogy időt szánt hirdetésemre!

Családi ház részletei

Ár: 135 900 000 Ft
Méret: 160 négyzetméter
Azonosító: 11467379
Cím: Fenyves-parkváros
Telek: 1200 négyzetméter
Ingatlan állapota: Átlagos
Jelleg: családi ház
Építőanyag: Kérdezzen rá a hirdetőtől »
Egész szobák: 5

Egyéb jellemzők

  • Csatorna
  • Garázs
  • Kábel TV
  • Melléképület
  • Parketta
  • Pince
  • Terasz

Így keressen családi házat négy egyszerű lépésben. Csupán 2 perc, kötelezettségek nélkül!

Szűkítse a családi házak
listáját
Válassza ki a megfelelő
családi házat
Írjon a hirdetőnek
Várjon a visszahívásra