Eladó családi ház Érd 134 900 000 Ft

Leírás

Kedves Ingatlankereső!

Ha Érden szeretne élni, és természetközeli nyugalomra vágyik, ez a vadonatúj, prémium minőségű otthon tökéletes választás!

Ez a ház nem csupán egy ingatlan – ez egy életforma. A prémium kivitelezés, a természet közelsége és a modern technológia találkozása.

A mai kor követelményeinek maximálisan eleget téve építik meg az ingatlanokat.

TÖKÉLETES VÁLASZTÁS A NAGYVÁROSOK ZAJÁTÓL TÁVOLI, ENERGIAHATÉKONY ÁLOMOTTHONT KERESŐK SZÁMÁRA!

Szeretné meglepni szeretteit vagy biztonságban tudni a pénzét?

Akkor ha ön is így gondolja ajánlanám ezt az ingatlant!!

JÖJJENEK, NÉZZENEK KÖRÜL, HOGYAN IS ALAKÍTANÁK KI AZ ÖNÖK IGÉNYEI SZERINT SZÉP OTTHONNÁ!!

Kérem hívjon, találkozzunk a helyszínen, hogy körbesétálhassunk a nyugodt , szép környezetben megépülő ingatlant, alakítsuk ki együtt az Ön és kedves családja szép új otthonát :)

Az energiahatékonyság jegyében HŐSZIVATTYÚ rendszert alkalmaztunk, mely nagyon ENERGIATAKARÉKOS FELHASZNÁLÁST tesz lehetővé.

Rövid műszaki ismertető:
-vasbeton sávalap
-30 cm vastag Porotherm teherhordó falak
-10cm vastag Porotherm belső válaszfalak
-zárófödém könnyű- szerkezet
-homlokzati szigetelés 15cm vastag Dryvit rendszerű hőszigetelés
-nyílászárók 3 rétegű 6 légkamrás műanyag szerkezetű nyílászárók,
-fűtésrendszer hőszivattyúval,padlófűtéssel
-elektromos garázskapu

A házat ajánljuk családosoknak, hiszen itt minden az Állam adta kedvezményt, lehetőséget kihasználhatnak, legyen az Babaváró, CSOK támogatás és hitel is!

Miért ne venné igénybe az Állam adta támogatásokat, lehetőségeket? Döntsön okosan, használja ki amíg lehet!

Az ingatlanoknak mérete és ára van, az otthon igazi értéke viszont felbecsülhetetlen! Mi ezért - az értékbecsléstől a birtokbaadásig - végigkísérünk az ingatlan adásvétel folyamatán, hogy anyagi, jogi és érzelmi biztonságban legyél!

Szívügyünk az otthonod!

Az igény szerinti befejezésnek köszönhetően a hideg-meleg burkolatok kiválaszthatók a műszaki tartalomban rögzített árak szerint.


Nekem ebben az ingatlanban az elhelyezkedése mellett, a formálhatósága és a benne rejlő rengeteg lehetőség tetszik a legjobban.

Ha Ön is így látja, hívjon, nézze meg, legyen az új tulajdonosa mielőbb!

Nem fogja megbánni!


Szép napot sikeres vásárlást kívánok!

Köszönöm hogy időt szánt a hirdetésemre!

Családi ház részletei

Ár: 134 900 000 Ft
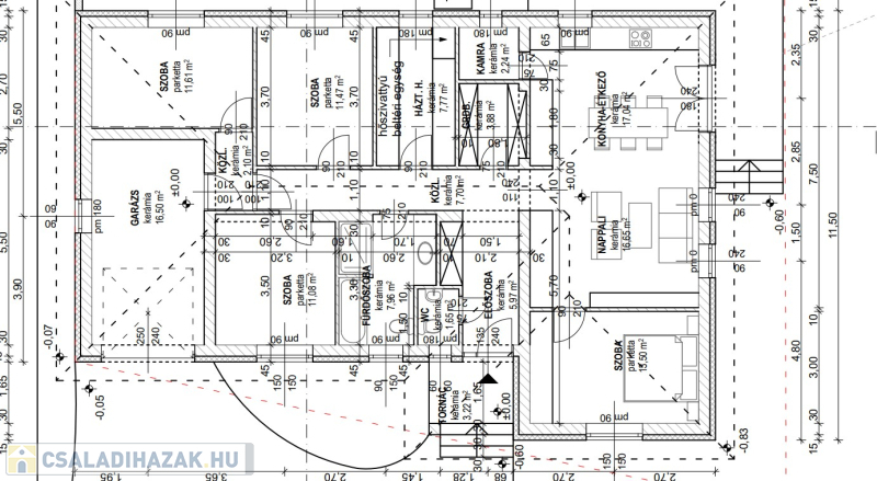
Méret: 139 négyzetméter
Azonosító: 11596108
Telek: 694 négyzetméter
Ingatlan állapota: Kitűnő
Jelleg: családi ház
Építőanyag: Kérdezzen rá a hirdetőtől »
Egész szobák: 5

Egyéb jellemzők

  • Garázs
  • Kábel TV
  • Melléképület
  • Parketta
  • Pince
  • Terasz

Így keressen családi házat négy egyszerű lépésben. Csupán 2 perc, kötelezettségek nélkül!

Szűkítse a családi házak
listáját
Válassza ki a megfelelő
családi házat
Írjon a hirdetőnek
Várjon a visszahívásra