Eladó családi ház Érd 128 000 000 Ft

Leírás

Kedves Ingatlankereső!

Ajánlom figyelmébe ezt a 2021-ben épült önálló családi házat!

Szeretné meglepni szeretteit vagy biztonságban tudni a pénzét?

Akkor ha ön is így gondolja ajánlanám ezt az ingatlant!!

JÖJJENEK, NÉZZENEK KÖRÜL, HOGYAN IS ALAKÍTANÁK KI AZ ÖNÖK IGÉNYEI SZERINT SZÉP OTTHONNÁ!!

Kérem hívjon, találkozzunk a helyszínen, hogy körbesétálhassunk a HELYSZÍNT, nyugodt , szép környezetben megépült ingatlant, alakítsuk ki együtt az Ön és kedves családja szép új otthonát :)

Az ingatlanoknak mérete és ára van, az otthon igazi értéke viszont felbecsülhetetlen! Mi ezért - az értékbecsléstől a birtokbaadásig - végigkísérünk az ingatlan adásvétel folyamatán, hogy anyagi, jogi és érzelmi biztonságban legyél!

Szívügyünk az otthonod!

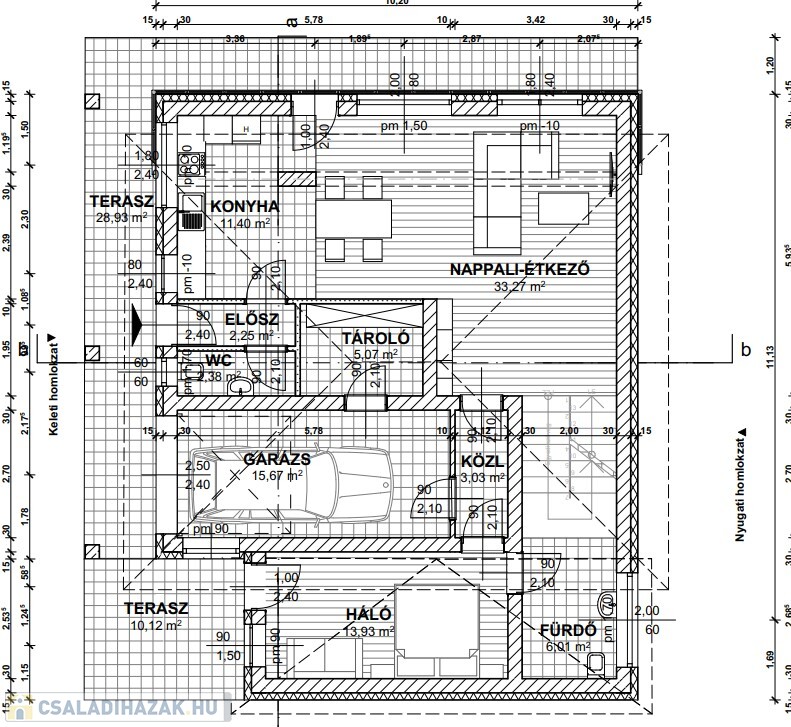
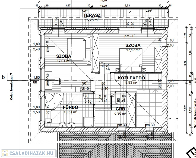
Meglátni és megszeretni ezzel tudnám jellemezni ezt a jó hangulatú nappali+4+1fél hálószobás körbenapozott, teraszos, családi házat!


Rövid Műszaki leírás:
30-as téglafalak
műanyag nyílászárók
klíma minden szobában
sarok telek körbe kerítve
10-es válaszfalak
gáz cirkó fűtés padlófűéssel
10cm szigetelés

Az épület hasznos alapterülete összesen:
Földszint: 99,08 m2
Emelet: 60,58 m2
Összesen hasznos alapterület: 159,66 m2
Teraszok:15,25nm-28,93nm-10,12nm

Nekem ebben az ingatlanban az elhelyezkedése mellett, a formálhatósága és a benne rejlő rengeteg lehetőség tetszik a legjobban.

Ha Ön is így látja, hívjon, nézze meg, legyen az új tulajdonosa mielőbb!

Nem fogja megbánni!


Szép napot sikeres vásárlást kívánok!

Köszönöm hogy időt szánt a hirdetésemre!

Családi ház részletei

Ár: 128 000 000 Ft
Méret: 159 négyzetméter
Azonosító: 11456848
Telek: 827 négyzetméter
Ingatlan állapota: Átlagos
Jelleg: családi ház
Építőanyag: Kérdezzen rá a hirdetőtől »
Fűtés jellege: Cirkó
Egész szobák: 5

Egyéb jellemzők

  • Csatorna
  • Garázs
  • Kábel TV
  • Melléképület
  • Parketta
  • Pince
  • Terasz

Így keressen családi házat négy egyszerű lépésben. Csupán 2 perc, kötelezettségek nélkül!

Szűkítse a családi házak
listáját
Válassza ki a megfelelő
családi házat
Írjon a hirdetőnek
Várjon a visszahívásra