Eladó családi ház Érd 120 000 000 Ft

Leírás

ÚJ ÉPÍTÉSŰ CSALÁDI HÁZ ÉRD FENYVES-PARKVÁROSBAN
Modern otthon, magas műszaki tartalommal, A+ energiaosztállyal!

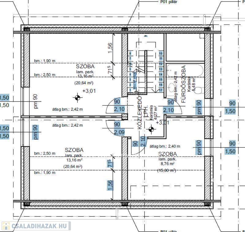
Eladó Érd egyik legkedveltebb, csendes és zöldövezeti részén, Fenyves Parkvárosban egy nettó 140 nm-es, 2 szintes, új építésű, modern családi ház.
A tágas, 41 nm-es amerikai konyhás nappali mellé 3 kényelmes hálószoba és dupla komfortos kialakítás biztosítja a család kényelmét.

Magas műszaki tartalom A+ energiaosztály

15 cm homlokzati hőszigetelés
10 cm aljzatszigetelés
3 rétegű, 7 légkamrás nyílászárók
Korszerű hőszivattyús fűtésrendszer
Padlófűtés a teljes házban
Cseréptető
Alacsony fenntartási költségek, környezettudatos működés

Elhelyezkedés:
Nyugodt, madárcsicsergős, családias környék, mégis közel az M7-es autópályához, iskolákhoz, bevásárlási lehetőségekhez.
Tökéletes választás mindazoknak, akik modern, energiatakarékos és hosszú távra tervezett otthont keresnek Érden!

Megbízható kivitelező. A házat több sikeres referencia-munkával rendelkező kivitelező építi. Céges építkezés, amely államilag támogatott hitelkonstrukciókra is alkalmas.

Az OTP Bankcsoport teljes körű ügyintézéssel áll az eladók és a vevők rendelkezésére! A kínálatunkból választott ingatlan finanszírozásához kedvezményes hitel konstrukciókat kínálunk. Az adásvételi szerződés megkötéséhez igény szerint megbízható ügyvédi közreműködést biztosítunk, és segítséget nyújtunk az adásvételhez kapcsolódó ügyek intézésében. További információért vagy megtekintéssel kapcsolatban hívjon a hét bármely napján.

Családi ház részletei

Ár: 120 000 000 Ft
Méret: 140 négyzetméter
Azonosító: 11572955
Irodai azonosító: M314540-5063657
Cím: 140 nm-es ház eladó Érd
Telek: 419 négyzetméter
Ingatlan állapota: Épülő
Jelleg: családi ház
Építőanyag: Tégla
Fűtés jellege: Villany
Fűtés módja: Hőszivattyú
Komfort fokozat: Összkomfort
Kor: Új építésű
Szintek száma: 1 szint
Egész szobák: 4

Egyéb jellemzők

  • Garázs

Térkép


Így keressen családi házat négy egyszerű lépésben. Csupán 2 perc, kötelezettségek nélkül!

Szűkítse a családi házak
listáját
Válassza ki a megfelelő
családi házat
Írjon a hirdetőnek
Várjon a visszahívásra