Eladó családi ház Érd 114 000 000 Ft

Leírás

Csend és nyugalom Érdliget szívében – két generáció számára is ideális családi ház!

Érdligeten, egy csendes és barátságos környéken vár rád ez a 2000-ben épült, remek állapotú, önálló családi ház, amely akár két generációnak is kényelmes otthont nyújthat. Az 557 m²-es telken fekvő ingatlan nettó 177 m² hasznos alapterületével bőséges helyet biztosít mindenki számára.

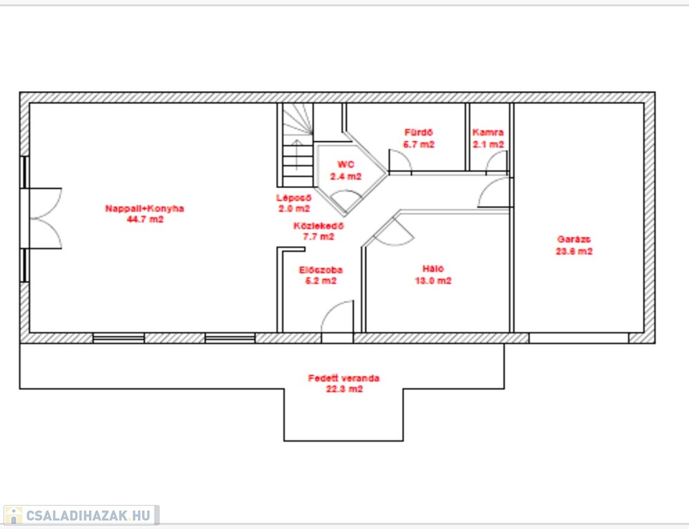
A földszinten egy tágas és világos átriumos nappali található, amely egybe van nyitva a konyhával, így tökéletes tér a közös családi időtöltéshez. Emellett itt kapott helyet egy hálószoba, egy fürdőszoba, valamint egy külön wc. A nappali nagy teraszajtaja elektromos redőnnyel van felszerelve, így a kényelem is garantált. Az egy autó számára elegendő garázs szintén elektromos ajtóval rendelkezik, ami még praktikusabbá teszi a mindennapokat.

Az emeletre felérve a galériáról letekinthetsz a nappalira, ami igazán impozáns, hiszen a belmagasság itt eléri a 6 métert. Ezen a szinten egy második nappali is található konyhával, három hálószobával és egy fürdőszobával, így a fenti lakrész akár önálló lakásként is használható. A melegvíz ellátásról itt egy villanybojler gondoskodik, míg a földszinten egy kombi gázkazán biztosítja a komfortot.

Az ingatlan modern építési megoldásokkal készült: a 30-as Porotherm téglából épült ház hőszigetelő nemesvakolattal és 15 cm Isolith szigeteléssel van ellátva a tetőtérben, így télen is remek hőmegtartó képességgel rendelkezik. A fűtést radiátoros hőleadással a gázkazán biztosítja.

Az elhelyezkedés kiváló: a közelben megtalálod a Napsugár óvodát, Spar áruházat, és a buszmegálló is csak néhány perc séta. Érd városközpontja és a vasútállomás autóval mindössze 10 perc alatt elérhető, így minden fontos helyszín könnyen megközelíthető.

Az ingatlan per-, teher-, és igénymentes, és ha hitelre lenne szükséged, abban is örömmel segítünk!

Ne habozz, keress minket bizalommal a megtekintésért!

Családi ház részletei

Ár: 114 000 000 Ft
Méret: 177 négyzetméter
Azonosító: 11418196
Irodai azonosító: H489771
Telek: 557 négyzetméter
Ingatlan állapota:
Jelleg: családi ház
Építőanyag: Tégla
Fűtés jellege: Cirkó
Fűtés módja: Gáz
Szintek száma: 2 szint
Egész szobák: 6

Egyéb jellemzők

  • Garázs
  • Terasz

Így keressen családi házat négy egyszerű lépésben. Csupán 2 perc, kötelezettségek nélkül!

Szűkítse a családi házak
listáját
Válassza ki a megfelelő
családi házat
Írjon a hirdetőnek
Várjon a visszahívásra