Eladó családi ház Érd 108 000 000 Ft

Leírás

ÉRD TUSCULANUM részén eladó tágas, 3 szintes családi ház eladó!

Eladásra kínálok Érd egyik legjobb közlekedésű, kedvelt, csendes részén, Tusculanumban, egy 167 m²-es, háromszintes, jó állapotú családi házat.

A ház 1980-ben épült, de 2016-17-ban felújították.
Elosztása ideális nagyobb család számára is!
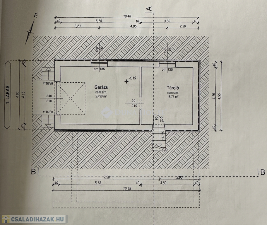
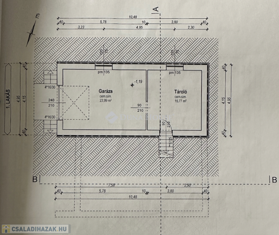
Pinceszint: garázs és többfunkciós tároló helyiség
Földszint: tágas amerikai konyhás nappali, külön szoba, kádas fürdőszoba WC-vel, előtér és gardrób
Emelet: 2 hálószoba, közlekedő, valamint zuhanyzós fürdőszoba WC-vel
Padlástér beépíthető.
A ház tágas terei, világos helyiségei, valamint praktikus elrendezése ideális otthonná teszik akár többgenerációs családnak is.ű
A telek mérete (612 m²) l
Lokáció: Tusculanum Érd egyik legkeresettebb városrésze, gyors közlekedéssel Budapest fele, közeben iskola, óvoda, boltok, buszmegálló is pár perc sétára

Amennyiben az ingatlan felkeltette érdeklődését, kérem keressen bizalommal!

Családi ház részletei

Ár: 108 000 000 Ft
Méret: 167 négyzetméter
Azonosító: 11600730
Irodai azonosító: HZ079129-5154212
Cím: Érdi 167 nm-es ház eladó
Telek: 612 négyzetméter
Ingatlan állapota:
Jelleg: családi ház
Építőanyag: Tégla
Fűtés jellege: Cirkó
Fűtés módja: Gáz
Kor: 21-50 éves
Szintek száma: Földszintes
Egész szobák: 4

Térkép


Így keressen családi házat négy egyszerű lépésben. Csupán 2 perc, kötelezettségek nélkül!

Szűkítse a családi házak
listáját
Válassza ki a megfelelő
családi házat
Írjon a hirdetőnek
Várjon a visszahívásra