Eladó családi ház Ercsi 55 000 000 Ft

Leírás

ERCSIBEN, A KELETI KÁROLY UTCÁBAN, HŐSZIVATTYÚS FŰTÉSSEL, EGYSZINTES, JÓ BELSŐ ELRENDEZÉSŰ, ÚJ ÉPÍTÉSŰ, IKER HÁZ GYÖNYÖRŰ TELEKKEL!


AZ INGATLAN CÉGNÉVEN ÉPÜL!

HŐSZIVATTYÚ MAGAS MINŐSÉGBEN!


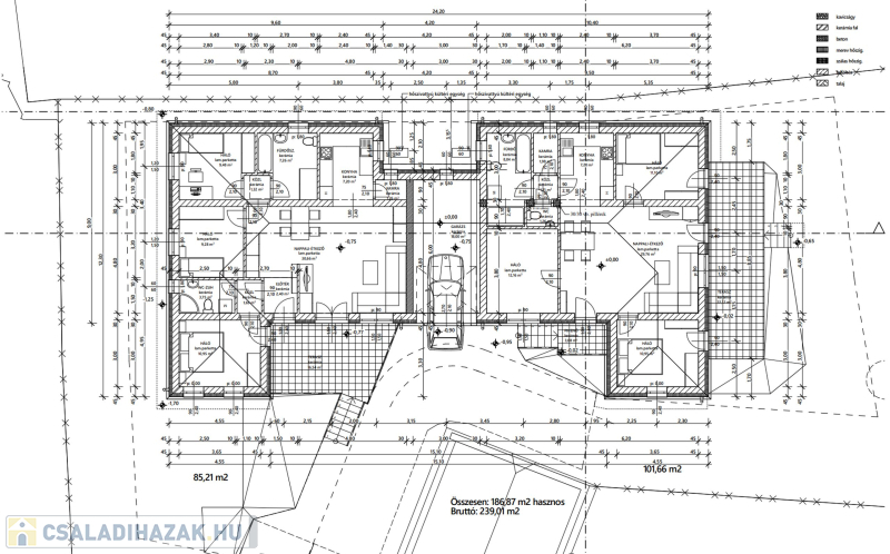
Ercsiben a Keleti Károly utcában az utca aszfaltozott, ELADÓ egy új építésű, bruttó 122 nm-es teraszos, nappali + 3 szobás, jól megtervezett szinte önálló családi ház, a hozzá tartozó kb. 500 nm-es telekkel.

Műszaki paraméterek:
Alap: vasbeton sávalap, aljzat erősítéssel. A lábazat szigeteléssel ellátott.
Az épület külső falazata 30 cm-es Bakonytherm téglából épül 15 cm hőszigeteléssel, a zárófödémen 30 cm hőszigeteléssel, a tető TERRÁN cserépfedéssel készül.

Nyílászárók: műanyag szerkezetű, bukó-nyíló kivitelben 3 rétegű üvegezéssel.
A fűtést hőszivattyú biztosítja padlófűtéssel még a garázsban is!

A beépítésre kerülő minőségi anyagoknak és minőségi kivitelezésnek köszönhetően az épület kiváló hőtechnikai paraméterek szerint épül.

A készültségi foknak megfelelően lehetőség van igény szerinti extrák beépítésére is, ebben az esetben az ár megegyezés tárgyát képezi.

Ha önnek elege van az ugyanolyan kinézetű,új építésű tömeg ingatlanokból,és a minőség kiemelten fontos számára,akkor jó helyen jár!

A kivitelező a lakás alaprajzát a belső elrendezés tekintetében,a vevők által támasztott igények mentén kész módosítani.

Várható átadás: 2023. lV. negyedév.

Megközelíthetősége és infrastruktúra jó. Iskolák, óvodák, bevásárlási lehetőségek gyalogosan pár perc alatt elérhetők.

Amennyiben az ingatlan felkeltette az érdeklődését, várom megtisztelő hívását!

Családi ház részletei

Ár: 55 000 000 Ft
Méret: 122 négyzetméter
Azonosító: 11456764
Telek: 500 négyzetméter
Ingatlan állapota: Átlagos
Jelleg: ikerház
Építőanyag: Kérdezzen rá a hirdetőtől »
Egész szobák: 4

Egyéb jellemzők

  • Csatorna
  • Garázs
  • Kábel TV
  • Melléképület
  • Parketta
  • Pince
  • Terasz

Így keressen családi házat négy egyszerű lépésben. Csupán 2 perc, kötelezettségek nélkül!

Szűkítse a családi házak
listáját
Válassza ki a megfelelő
családi házat
Írjon a hirdetőnek
Várjon a visszahívásra