Eladó családi ház Enese 83 900 000 Ft

Leírás


Kulcsrakész ház eladó Kulcsrakész ház eladó! KÖLTÖZHETŐ!

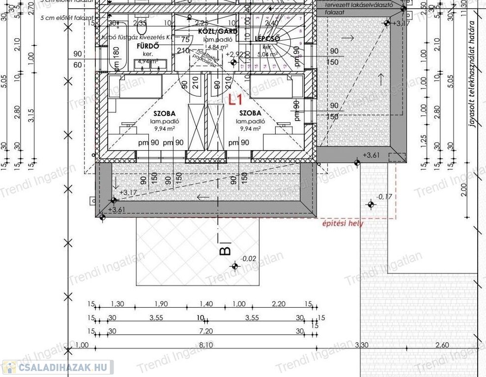
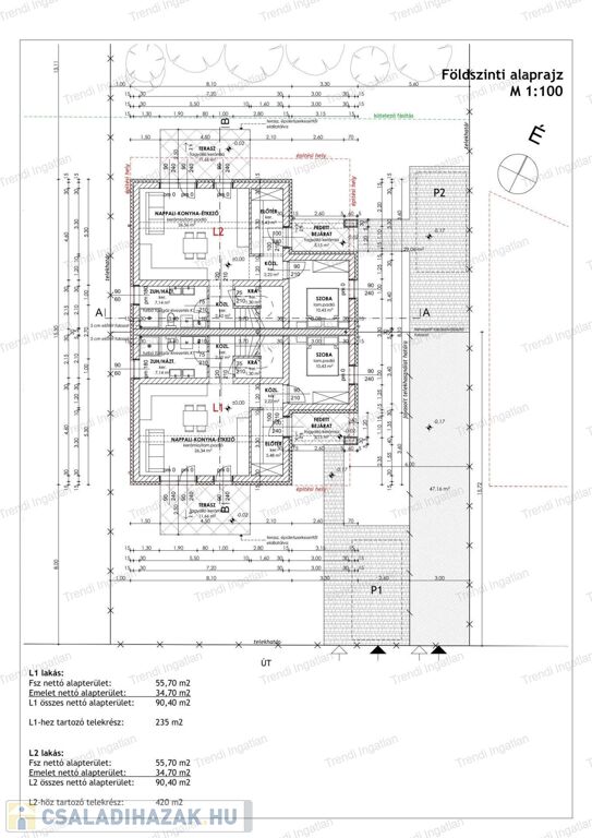
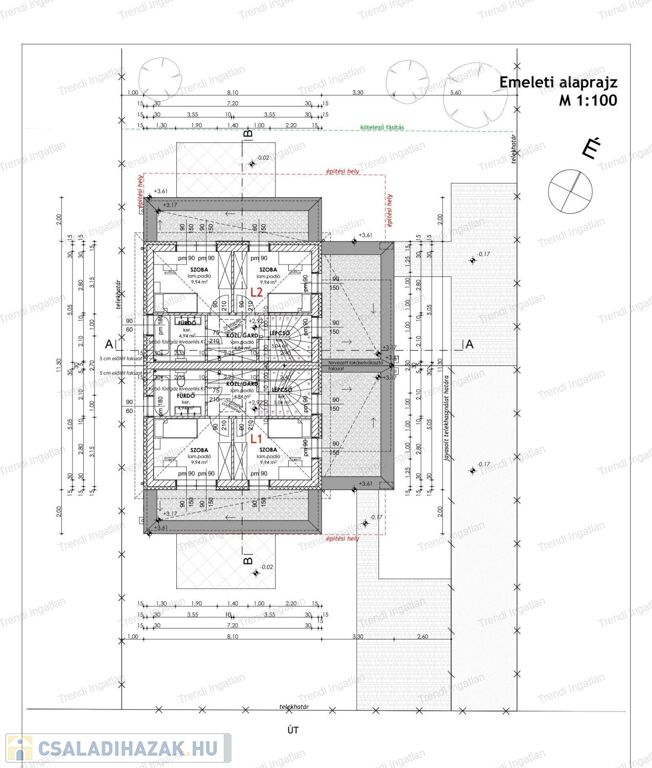
Enesén új építésű nappali + 3 szobás, 90,40 nm-es, kétszintes ikerház 235 nm-es telekrésszel kulcsrakész állapotban eladó.

Minőségi kivitelezés és kiváló belső elrendezés jellemző a házra. A földszinten amerikai konyhás nappali, szoba, zuhanyzóval és WC-vel felszerelt háztartási helyiség, közlekedő, előtér található. A nappaliból elérhető 11,66 nm-es terasz. Az emeleten 2 szoba, káddal és WC-vel felszerelt fürdőszoba, gardrób, közlekedő került kialakításra. A szobák laminált parkettával, a többi helyiség járólappal burkolt. Az ár tartalmazza a konyhabútort minőségi beépített gépekkel (sütő, főzőlap, hűtő, mikrohullámú sütő, mosogatótálca csapteleppel), a TV szekrényt, a függönyöket, a lámpákat és a nappaliban valamint az emeleten található szobákban a klímát.

A ház 30-as falazóelemből, 15 cm-es homlokzati szigeteléssel, 3 rétegű műanyag nyílászárókkal került kivitelezésre. Fűtésről kondenzációs kazán gondoskodik padlófűtéssel.

Az ingatlan kulcsrakész ára: 83.900.000 Ft.

Az ár tartalmazza a telek árát.

Kulcsrakész átadás várható ideje: 2025 november vége

Bővebb információkért forduljon hozzám bizalommal.

Hétköznap és hétvégén is várom hívását!

Díjmentes, bankfüggetlen hitelügyintézéssel állunk rendelkezésére.

A hirdetésben feltüntetett képek illusztrációk.

Családi ház részletei

Ár: 83 900 000 Ft
Méret: 90 négyzetméter
Azonosító: 11582487
Irodai azonosító: 196400826
Telek: 235 négyzetméter
Ingatlan állapota: Kitűnő
Jelleg: ikerház
Építőanyag: Tégla
Kor: Új építésű
Egész szobák: 4

Így keressen családi házat négy egyszerű lépésben. Csupán 2 perc, kötelezettségek nélkül!

Szűkítse a családi házak
listáját
Válassza ki a megfelelő
családi házat
Írjon a hirdetőnek
Várjon a visszahívásra