Eladó családi ház Dunakeszi 349 000 000 Ft

Leírás

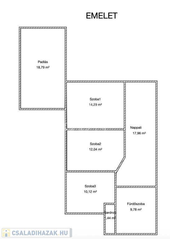
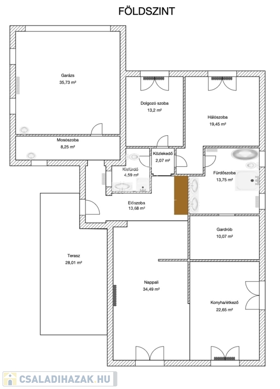
Dunakeszin kínálunk eladásra 2006-ban épült, igényesen kivitelezett, önálló családi házat, 709nm-es telken. Nagyon ízléses és egyedi kialakításának köszönhetően, élhető terek, a hálószobákhoz tartozó gardrób helyiségek, tágas fürdőszobák növelik a komfortot. A földszinten magas minőségben felszerelt konyha, nappali, két szoba, fürdőszoba-gardrób helyiség, az emeleten nappali, három szoba, fürdőszoba kapott helyet. A hangulatos kertben medence, jakuzzi és a ház alatt található borospince fokozza az otthon kényelmét. Az öntöző rendszer fúrt kútról működik, az energiahatékonyságról napelem rendszer gondoskodik.
Ajánlom azoknak akik vágynak a minden igényt kielégítő, tökéletes otthonra, csendes, szép környezetben.

Családi ház részletei

Ár: 349 000 000 Ft
Méret: 262 négyzetméter
Azonosító: 11570289
Irodai azonosító: 388088
Cím: Dunakeszi
Telek: 709 négyzetméter
Ingatlan állapota: Felújított
Jelleg: családi ház
Építőanyag: Tégla
Fűtés jellege: Egyéb
Komfort fokozat: Luxus komfort
Kor: 11-20 éves
Szintek száma: 1 szint
Egész szobák: 7

Egyéb jellemzők

  • Csatorna
  • Garázs
  • Pince
  • Terasz

Térkép


Így keressen családi házat négy egyszerű lépésben. Csupán 2 perc, kötelezettségek nélkül!

Szűkítse a családi házak
listáját
Válassza ki a megfelelő
családi házat
Írjon a hirdetőnek
Várjon a visszahívásra