Eladó családi ház Dunakeszi 164 900 000 Ft

Leírás

Prémium minőségű új építésű ikerház Dunakeszi legszebb részén, a Duna közelében! A modern hőszivattyús rendszer mellett kiemelkedő műszaki tartalom: beépített redőnyök, választható hideg-meleg burkolatok, exkluzív szaniterek, igényes beltéri ajtók és háromrétegű külső nyílászárók, hogy otthonod minden részlete tökéletes legyen.

Az építtető kivitelező cég több éves szakmai tapasztalattal és helyismerettel teremti meg a lehetőséget az új otthonok vételére Dunakeszi. Egy ház kivitelezésénél talán még fontosabb az elhelyezkedés, ezért nagyon gondosan választják meg azt a telket, amelyre elkezdenek építkezni.

A hőszivattyús fűtés és a kiemelt műszaki tartalom mellett a ház külső hőszigetelése is prémium minőségű, így az ingatlan A+ energetikai besorolású. Ennek köszönhetően a fenntartási költség minimális, miközben a kényelem maximális.

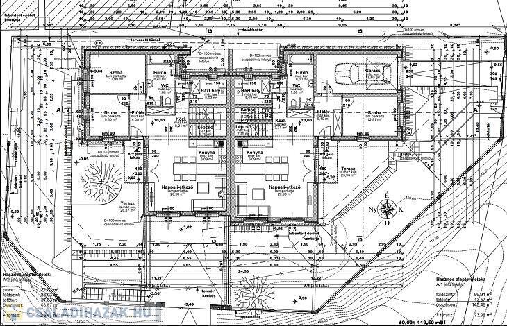
A ház alaprajzát, gondosan kellő odafigyeléssel rajzolták meg, hogy a megépítés után, nagy terek, és kihasználható szobák legyenek. A ház alatt garázs és pince lesz kialakítva.

Ez a ház nemcsak lakás – ez életstílus! Ne maradj le róla!

Bővebb tájékoztatásért, referenciákért, és a terület körbejárásához keressen minket telefonon vagy üzenetben.

Amennyiben a vásárláshoz meglévő ingatlanát kellene eladni, és vagy hitelt tervez akkor irodáink készséggel segítenek a legjobb megoldásokat megtalálni.

Családi ház részletei

Ár: 164 900 000 Ft
Méret: 149 négyzetméter
Azonosító: 11599805
Irodai azonosító: 24735
Telek: 350 négyzetméter
Ingatlan állapota: Épülő
Jelleg: családi ház
Építőanyag: Kérdezzen rá a hirdetőtől »
Fűtés jellege: Egyéb
Szintek száma: Földszintes
Egész szobák: 5

Így keressen családi házat négy egyszerű lépésben. Csupán 2 perc, kötelezettségek nélkül!

Szűkítse a családi házak
listáját
Válassza ki a megfelelő
családi házat
Írjon a hirdetőnek
Várjon a visszahívásra