Eladó családi ház Dunaharaszti 97 900 000 Ft

Leírás

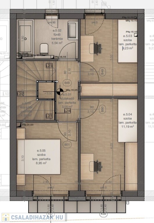
ÚJ ÉPÍTÉSŰ SORHÁZI LAKÁSOK , KIZÁRÓLAGOS HASZNÁLATÚ KERTRÉSSZEL!
Dunaharasztin Bezerédi lakóparkban ,csendes kertvárosi részén, 9 lakásos társasházban, új építésű, kétszintes, nettó 80-90 m2-es, nappali + 2 és 3 háló szobás , gardróbos társasházi lakások, felszíni gépkocsibeállóval ,terasszal ,hozzá tartozó 20m2-120m2-es kizárólagos használatú kertrészekkel 2026 év első negyedévi átadással, kulcsrakészen eladók. .A hirdetésben szereplő ingatlanhoz még a tetőtérben kizárólagos használatú 17 m2-es TÁROLÓ és 20 m2-es KIZÁRÓLAGOS HASZNÁLATÚ KERTRÉSZ is tartozik. Magas minőségű burkolatok, a hideg/meleg burkolat és a beltéri ajtók színe választható .
Fűtése 9,5 KW-os hőszivattyúkról ,padlófűtés, használati meleg víz és lakásonként 2db beltéri klíma egységek is erről üzemelnek.
Vasbeton sávalap, POROTHERM 25 N+F vázkerámia falazat 20 cm vastagságú EPS polisztirol szigeteléssel. Lakások elválasztása hanggátló 30 cm vastagságú POROTHERM Aku Z vázkerámia falakkal történik. Válaszfalak POROTHERM 10 N+F cm vastagságú vázkerámia falazóelemekből készülnek. Zárófödém: kőzetgyapot vagy fújt PUR 15 cm közötti vastagságban szarufák között.
Nyílászárók műanyag, 7 légkamrás, 3 rétegű üvegezésű ablakok külső középszürke fóliával.
Parkosított udvar, kamera előkészítés, kaputelefon kiépítés, elektromos kapu, kerti vízcsap , kizárólagos használatú tetőtéri tároló. Előkészítés elektromos autótöltéshez és napelemhez.

Magyarország piacvezető hitelközvetítője által egyedi kamatkedvezményekkel és bankfüggetlen, díjmentes hitelügyintézéssel is segítjük vásárlását.
Hívjon bizalommal.

Családi ház részletei

Ár: 97 900 000 Ft
Méret: 85 négyzetméter
Azonosító: 11560778
Telek: 20 négyzetméter
Ingatlan állapota: Kitűnő
Jelleg: sorház
Építőanyag: Kérdezzen rá a hirdetőtől »
Szintek száma: 2 szint
Egész szobák: 4

Egyéb jellemzők

  • Csatorna
  • Garázs
  • Kábel TV
  • Melléképület
  • Parketta
  • Pince
  • Terasz

Így keressen családi házat négy egyszerű lépésben. Csupán 2 perc, kötelezettségek nélkül!

Szűkítse a családi házak
listáját
Válassza ki a megfelelő
családi házat
Írjon a hirdetőnek
Várjon a visszahívásra