Eladó családi ház Dunaharaszti 90 580 000 Ft

Leírás


UTOLSÓ LAKÁS ELADÓ!



DUNAHARASZTI BEZERÉDI LAKÓPARK II. ÜTEMÉBEN ÚJ PROJKET ÉPÜL!

A MODERN megjelenésű EGYSZINTES, 3. lakásos CSAK FEDETT GÉPKOCSIBEÁLLÓVAL KAPCSOLÓDÓ sorház, UTOLSÓ (szélső) LAKÁSA KEDVEZŐ ÁRON ELADÓ!

A 3. lakás egy hatalmas 1209m2-es telken fekszik, így mindhárom ingatlannak ritkaság számba való SAJÁT TELKE van.



UTOLSÓ LAKÁS PARAMÉTEREI:

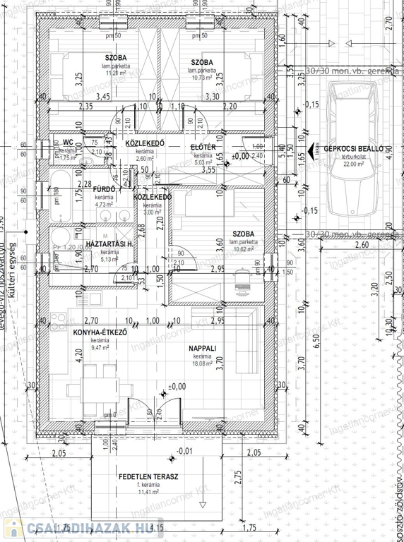
-Telek méret: 420m2

-Lakás alapterülete: 82,37m2

-Terasz: 11,41m2 (a terasz fele a lakás alapterületében beleszámolva)

-Fedett gépkocsi beálló: 22m2



A lakás elosztása miután 4 tagú család számára terveztük, minden megtalálható benn, amire szükség van:

-tágas 5,03m2-es előszoba ( 3m hosszan beépíthető gardrób szekrény lehetőségével)

-ablakkal rendelkező, külön mellékhelyiség kézmosóval felszerelve (1,75m2)

-KÜLÖN MOSÓKONYHA (5,13m2)

-2 jó méretű GYEREKSZOBA (11,21m2 és 10,73m2)

-külön elhelyezett SZÜLŐI HÁLÓ (10,62m2)

-A ház szíve a 27,55m2-es NAPPALI-KONYHA-ÉTKEZŐ

-a nappaliból elérhető 11,41m2-es terasz ami igény esetén bővíthető

MŰSZAKI ADATOK:

-KÖRÍTŐ FALAZAT: 30-as Viablokk falazóelem

- BELSŐ VÁLASZFALAK: 10 cm homlokzati hőszigetelés (Eps 80 szigetelőanyag)

-HOMLOKZATI SZIGETELÉS: 10 cm dryvit

-NYÍLÁSZÁRÓK: Veka márkájú, hő- és hangszigetelő nyílászárók - 3 rétegű üvegezéssel

FÖDÉM: fafödémes (igény esetén pakolható padlástérrel)

-FÖDÉM SZIGETLÉS: 30cm szálas szigeteléssel

- TETŐ FEDÉSE: beton cseréppel

- FŰTÉS ÉS MELEGVÍZ ELLÁTÁS Gree Technikcool 6kW-os levegő-víz hőszivattyú TELJES PADLÓFŰTÉSSEL és HMV melegvíz tároló gondoskodik.

- HŰTÉS: AZ ÁRBAN 1 darab split hűtő-fűtő klíma kerül beépítésre

- ELETROMOS HÁLÓZAT: 3×16A nappali áram + 1×25A-es H tarifás mérőóra

- ÁLMENNYEZET: Gipszkartonból készül

- ENERGETIKAI BESOROLÁS: A

- KERÍTÉS: Utcafronton épített kerítés, gondozás mentes vízszintes WPC kerítés elemekkel.



MOST ÉPÜLŐ, ÚJ ÉPÍTÉSŰ LAKÓPARK – csendes, békés környezetben épül, kifejezetten CSALÁDALAPÍTÁS ELŐTT ÁLLÓ FIATALOK RÉSZÉRE, MIUTÁN minden SÉTATÁVOLSÁGGAL ELÉRHETŐ: vonat állomáshoz, bölcsőde, óvoda, játszótér, szabadidő park, ahol futópálya, kültéri kondi terem stb., illetve a szerdai és szombati piac, és a nemsokára a lakóparkban épülő, általános iskolához



Átadás: 2026. II-III. negyedév



Az ingatlan CSOK Plusz igényeinek teljes mértékben megfelel, akár 3 gyermekre is.



További bővebb információkért illetve a megtekintés ügyében forduljon hozzám bizalommal, ha nem tudom fogadni hívását, visszahívom!

Családi ház részletei

Ár: 90 580 000 Ft
Méret: 89 négyzetméter
Azonosító: 11548116
Irodai azonosító: 107004062
Telek: 430 négyzetméter
Ingatlan állapota: Kitűnő
Jelleg: sorház
Építőanyag: Tégla
Komfort fokozat: Összkomfort
Kor: Új építésű
Egész szobák: 4

Így keressen családi házat négy egyszerű lépésben. Csupán 2 perc, kötelezettségek nélkül!

Szűkítse a családi házak
listáját
Válassza ki a megfelelő
családi házat
Írjon a hirdetőnek
Várjon a visszahívásra